Contents
WESTBRASS 493244H Illusionary Bath Waste and Overflow

Product Information
The product is a plumbing accessory manufactured by Westbrass, a company that specializes in fine decorative plumbing. The product is an Illusionary No-Hole Overflow in Sch 40 Pipe and comes with a rubber gasket, screws, PTFE tape, silicone, shoe elbow, strainer, TEE, stopper, and overflow cover. The product is available in six finishes, including PVD Polished Brass, Oil Rubbed Bronze, Polished Chrome, Powder Coated W, Satin Nickel, and Powder Coated Flat Black. The product is made of PVC material and requires a Screwdriver and Hacksaw for installation.
Product Usage Instructions
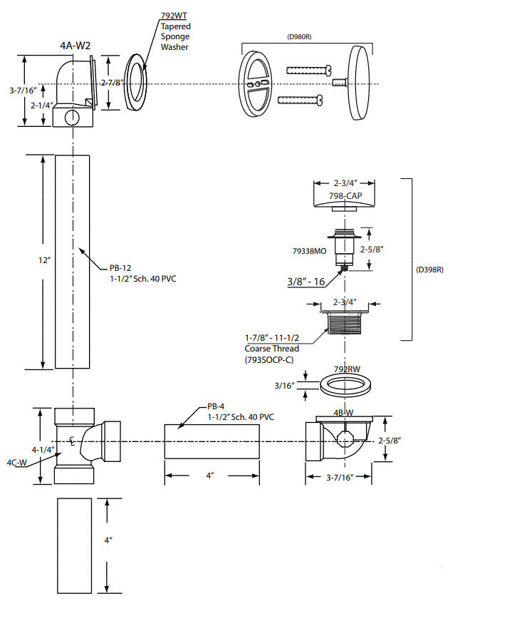
- Measure and dry fit all connections. Use tubing cutter or hacksaw to cut tubes as required.
- Place rubber gasket on overflow top elbow. Caulk with silicone.
- Wrap screws with PTFE tape or apply silicone. Attach ring to overflow with screws and draw tight.
- Place shoe elbow under tub, using rubber washer between bottom of tub and shoe elbow. Apply a thin bead of silicone between washer and tub.
- Screw in strainer through the tub into shoe elbow. Wipe off any excess silicone with a clean towel.
- Align TEE with pipes then glue in using primer and adhesive. Let dry.
- Thread in stopper into bottom shoe.
- Securely screw overflow cover into top elbow wagon wheel.
- Check for leaks.
Product Care and Maintenance
The product requires some care in use. To clean, do not allow the product to come into contact with any cleansers fortified with Soft Scrub, Dawn Liquid Soap, Palmolive or any other combined cleaners that contain certain chemical components that will dissolve and remove the finishes. To protect, an occasional application of Carnauba wax (without cleaners), like that found in Flitz Faucet Wax, Turtle Wax for Clear Coat Car Finishes or McGuire’s Premium Wax, will enhance the finishes. It is recommended to use warm water and mild soap on a soft cloth or sponge to clean the product. Avoid using any sponge with a scouring pad to clean your product. It is not necessary to rub hard to remove spots.
Tools
YOU MAY NEED

Dimensions

Installation Instructions

- Measure and dry fit all connections. Use tubing cutter or hacksaw to cut tubes as required.
- Place rubber gasket on overflow top elbow. Caulk with silicone.
- Wrap screws with PTFE tape or apply silicone. Attach ring to overflow with screws and draw tight.
- Place shoe elbow under tub, using rubber washer between bottom of tub and shoe elbow. Apply a thin bead of silicone between washer and tub.

- Screw in strainer through the tub into shoe elbow. Wipe off any excess silicone with a clean towel.
- Align TEE with pipes then glue in using primer and adhesive. Let dry.
- Thread in stopper into bottom shoe.
- Securely screw overflow cover into top elbow wagon wheel.
- Check for leaks.
CARE & MAINTENANCE
With the exception of living finishes, all Westbrass decorative finishes are protected by the strongest finish treatments available while maintaining their luxurious appearance. While some finishes are more durable than others, no finish is indestructible. Polished Chrome, Satin Nickel and PVD Polished Brass finishes are the most durable. All other finishes are electroplated; some are then coated to enhance the gloss and durability. “Living” finishes are uncoated, designed to be ex- posed to the air and other elements, with the intention to age and change in their natural beauty. All of our finishes, plated and living, require some care in use.
TO CLEAN
Do not allow your product to come into contact with any cleansers fortified with ammonia, bleach, grease-cutters or other surfactant chemicals. Soft Scrub, Dawn Liquid Soap, Palmolive or any other combined cleaners contain certain chemical components that will dissolve and remove the finish’s protective coating, and eventually the finish itself. Use only plain warm water and mild soap on a soft cloth or sponge. Avoid using any sponge with a scouring pad to clean your product. It is not necessary to rub hard to remove spots.
TO PROTECT
An occasional application of Carnauba wax (without cleaners), like that found in Flitz Faucet Wax, Turtle Wax for Clear Coat Car Finishes or McGuire’s Premium Wax, will enhance the finish lustre, reduce hard water spots and add an extra layer of protection to your finish.
WARRANTY
Finishes
All sink and tub/shower drains, strainers and other trims have a 1 year warranty in the following finishes:
- (01) PVD Polished Brass
- (12) Oil Rubbed Bronze
- 26) Polished Chrome
- (50) Powder Coated W
- (07) Satin Nickel
- (62) Powder Coated Flat Black
Other Westbrass finishes, including living finishes and other electroplated finishes carry no warranty.
Functional Warranty
The functionality of all products is warranted for a period of one year . Ceramic disc valves on any water delivery merchandise are warranted for one year. Warranties are guaranteed to the original purchaser only. Product problems attributable to abuse, misuse, improper installation, hard water, neglected maintenance or accidental damage are not covered by this warranty. Modifying the product in any way voids the warranty. The use of plumber’s putty on our products also voids the warranty. Silicone sealing compounds should be used instead. No repairs or replacements will be made under such circumstances except at customer’s expense. Liability under warranties expressed or implied is limited to repair or replacement of defective goods only. In no event will Westbrass be liable for incidental or consequential damages (such as labor charges). This warranty does not cover labor charges, whether based on breach of express or implied warranty, breach of contract, negligence or any other legal theory.
Contact
WESTBRASS
- 2429 E. Olympic Blvd., Los Angeles, CA 90021
- (213)-627-8441
- 213-627-2844
- [email protected]
- www.westbrass.com