Contents
STELPRO UGH4002 Uniwatt Ceiling Fan Heater

Product Information
The UGH Ceiling Fan Heater (Model: UGH4002) is a product manufactured by STELPRO under the UNIWATT line. It is designed to provide heating functionality along with fan ventilation.
The heater contains hot parts that generate electric arcs or sparks.
Important Safety Instructions
- Read all instructions before using this heater.
- Avoid contact with hot surfaces to prevent burns. Do not use the heater in areas where flammable liquids are present.
- Exercise caution when using the heater around children, invalids, and when leaving it unattended.
- If the heater malfunctions, disconnect power and have it inspected by a reputable electrician before reusing.
- The heater is for indoor use only. Do not use it outdoors.
- To disconnect the heater, turn off controls and power at the main disconnect panel.
- Avoid inserting foreign objects into ventilation or exhaust openings.
- Do not block air intakes or exhaust to prevent fire hazards.
- Avoid using the heater in areas with flammable vapors or liquids. Store it in a dry place when not in use.
- Use the heater strictly as described in the manual to prevent fire, electric shock, or injury.
- Ensure appropriate circuit breaker or fuse protection as per the nameplate.
- Verify that the line voltage matches the unit’s nameplate indication.
- The heater must be properly grounded.
- Installation should be done by a qualified person and connected by a certified electrician following local electrical and building codes.
- Refer to the installation section for recommended distances and positions.
- Keep electrical cords, drapery, and furnishings at least 3 ft (0.9 m) away from the front, side, and rear of the heater.
- Any modification to the heater by the installer or user may void the UL certification and make them responsible for resulting damages.
- Avoid water contact and protect the heater from splashes. Do not use it if any part has been submerged.
- Ensure that the mounting anchor can support the total weight of the unit and mounting brackets.
- When installing the heater in a ceiling, take care not to damage electrical wiring and other hidden utilities.
- During initial startup or after a long period of non-use, the heater may emit temporary odors and whitish smoke, which is normal.
For further assistance or inquiries, please contact STELPRO customer service at:
Website: www.uniwatt.ca
Email: [email protected]
Phone: 1-844-STELPRO
IMPORTANT INSTRUCTIONS
WARNING
When using electrical appliances, basic precautions should always be followed to reduce the risk of fire, electric shock and injury to persons, including the following:
- Read all instructions before using this heater.
- This heater contains hot parts that generate electric arcs or sparks. To avoid burns, do not let bare skin touch hot surfac-es. Do not use it in areas where gasoline, paint, or flammable liquids are used or stored.
- Extreme caution is necessary when the heater is used by or near a child or invalids and whenever the heater is left operating and unattended.
- Do not operate the heater after it malfunctions. Disconnect power at service panel and have heater inspected by a repu-table electrician before reusing.
- Do not use outdoors.
- To disconnect heater, turn controls off, and turn off power to heater circuit at main disconnect panel.
- Do not insert or allow foreign objects to enter any ventilation or exhaust opening in any manner.
- To prevent a possible fire, do not block air intakes or exhaust in any manner.
- A heater has hot and arcing or sparking parts inside. Do not use it in areas where gasoline, paint or flammable vapors or liquids are used or stored. Store it in a dry place when not using it.
- Use this heater only as described in this manual. Any other use not recommended by the manufacturer could cause fire, electric shock or serious injury to persons.
- Protect the heater with the appropriate circuit breaker or fuse, in accordance with the nameplate.
- Make sure the line voltage (volt) is consistent with the one indicated on the unit’s nameplate.
- This unit must be grounded.
- This heater must be installed by a qualified person and con-nected by a certified electrician in accordance with the electri-cal and building codes in effect in your area.
- Observe the distances and positions mentioned in the installa-tion section of this guide.
- All units must be installed at a minimum height of 8 ft (2.44 m) from the floor and a minimum distance of 12 in. (30 cm) from vertical surfaces or walls (see installation section). Do not allow combustible materials to come into contact with the unit and keep them at least 24 in. (61 cm) from it, as they may ignite more easily than adjacent surfaces. Furthermore, certain materials are more sensitive to heat than others, you must assure that these materials are located at a proper proximity where they can handle the heat released.
- CAUTION – High temperature, keep electrical cords, drapery, and other furnishings at least 3 ft (0.9 m.) from the front of the heater and away from the side and rear.
- If the installer or user modifies the heater, they will be held responsible for any damage resulting from this modification, and the UL certification may be voided.
- This heater must not come into contact with water and must be protected from splashes. Do not use it if any part has been submerged.
- When attaching the heater, make sure that the anchor can support the total weight of the unit plus the weight of the mounting brackets.
- When cutting or drilling into a ceiling to install the heater, make sure not to damage electrical wiring and other hidden utilities.
- When starting up the heater for the first time or after a long period, it is normal that it produces some temporary odours and whitish smoke.
Recommended heating capacity: 1.25 W/ft³ (0.03 m³). This is equivalent to 10 W/ft² (0.09 m²) for a standard ceiling height of 8 ft (2.44 m). The recommended power is usually sufficient for normal heating needs. Please note that the quality of insulation of walls and windows is a factor that influences heat loss and impacts the power required to heat a room. If necessary, refer to a special ist (in industrial and commercial buildings) who can calculate these heat losses and determine the optimal power required or consult the Stelpro website. If the power of the unit is insufficient for the size of the room, it will run continuously, causing it to age prematurely.
Note: When part of the product’s technical specifications need to be modified to improve handling or other functions, priority is given to the product’s technical characteristics. In this case, the instructions may not fully correspond to all the product functions presented. Therefore, the product and its packaging, as well as its name and illustration, may differ from those presented in this manual.
INSTALLING THE FAN HEATER
TAKE A FEW MINUTES TO READ THE FAN HEATER’S INSTALLATION GUIDE TO ENSURE AN EASY AND SAFE INSTALLATION.
WHAT’S IN THE BOX 
TOOLS AND MATERIAL REQUIRED
Two (2) No. 8 1½ in. (38 mm) round-head screws to securely attach the fan heater mounting bracket.
OPTIONAL
CONTROL AND COMPATIBILITY
This model can be controlled using:
- a MAESTRO thermostat ;
- an electronic thermostat;
- a compatible wall thermostat:
- equipped with a fan heater mode
- able to support the fan heater’s power (see nameplate).
POSITIONING THE FAN HEATER
- CAUTION: To avoid any risk of overheating and fire, leave a minimum of 24 in. (60 cm) of free space under the unit and 12 in. (30 cm) on each side of the unit.
The unit is not intended for use or storage in damp areas or areas containing flammable liquids, combus-tible materials and corrosive, abrasive, chemical or explosive products such as, but not limited to, paint, gasoline, chlorine, sawdust and cleaning products. - WARNING: Fan heater installation must be done by a certified electrician in accordance with the electrical and building codes in your area.
- You must install your heater in an open area at least 8 ft (2.44 m) from the floor and at a maximum height of 10 ft (3 m).
- Make sure that objects or furniture near the heater can withstand the heat it gives off.
- To install your fan heater, consider the following:
- Consider the location of the studs in your ceiling.
- The mounting bracket of the heater must be attached to a stud.
- Consider the location of pipes, electrical wires or other components that may be present inside the ceiling and damaged during installation.

WARNING: This product must be installed by a certified electrician according to the electrical and building codes effective in your region.
TURNING OFF THE POWER SUPPLY
- To protect yourself against the risk of electric shock, discon-nect the power supply to the cables at the electrical panel.

PREPARING THE FAN HEATER
- Remove the mounting bracket [A] underneath the unit and set it aside.

- Loosen the screw slightly and remove the cable clamp plate [B]. Set aside the cable clamp plate and pull the wires out of the junction box.

- Make sure your screwdriver is at least 6 in. (15 cm) long so that it can reach the mounting screw when it passes through the cover.

- If this is not the case, remove the unit’s cover [C] by removing the four (4) screws [D] from the perimeter. Set it aside.

DETERMINING THE POSITIONING OF POWER CABLE
STANDARD CABLE (NMD)
Note: If you are using a commercial power cable (BX), refer to section below.
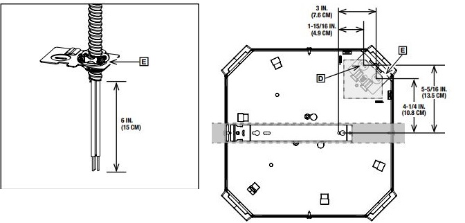
- Using the stud detector, locate the studs [A] and other structures that may be in the ceiling.
- Determine the unit’s location by following the instructions in step 1. Measure and mark the required space according to the picture shown opposite.
- If the power cable is already available, make sure it is located within the area indicated [B]. Other-wise, make an opening in the ceiling, then pull out the power cable [C] inside the same area [B].
- Plan to pull the power cable at least 16 in. (40.5 cm) out of the opening to make it easy to connect to the unit’s wires.

COMMERCIAL CABLE (BX)
If the unit is powered by a commercial cable, some additional steps are required.
- Push in one of the knock-out holes [D] in the cable clamp plate [E] with a flat screwdriver and place a cable clamp (not included) in it.
- Insert the power cable into the cable clamp, attach the cable as close as possible to the sheath and leave 6 in. (15 cm) of clearance.

Refer to the diagram opposite to plan the unit’s installa-tion and the positioning of the power cable.
ATTACHING THE MOUNTING BRACKET
- Attach the bracket [A] to the ceiling structure using two (2) screws (round head no. 8; not included).

ATTACHING THE UNIT TO THE MOUNTING BRACKET
- Locate the anchor point [A] below the unit.

- Attach the fan heater to the bracket by inserting the hook on the installation bracket [B] into the anchor point [A]. The hook is designed to support the unit during installation, leaving your hands free

CONNECTING THE ELECTRICAL WIRES
- If necessary, strip the power cable wires [A] using a cable stripper.
- Connect the wires of the power cable to those of the unit [B] according to the instructions in the diagram on the right.
- Tighten the twist-on wire connectors firmly on the wires to ensure the connection is secure.

- Place all the wires in the junction box. Replace the cable clamp plate [C], making sure to run the power cable [A] through one of the strain relief of the junction box cover. Tighten the screw [D] to hold the cover in place.

ATTACHING THE COVER
- Make sure the screw [A] at the end of the bracket is half-screwed.
- Grasp the unit firmly with both hands, as shown, and pivot it towards the ceiling.

- Press the unit firmly against the ceiling.
- Again using both hands, push the unit to the hook side of the installation bracket. Make sure the unit is stable before releasing it.

- Using a screwdriver that’s longer than 6 in. (15 cm), screw in the screw [A] to hold the fan heater securely in place.
- To cut down on vibrations, you can add three (3) No. 8 screws (not included) in the holes [B] provided for this purpose.
CAUTION: If you have removed the cover, replace it with the four (4) screws previously set aside.
RESTORING POWER
Restore power to the ceiling fan heater. Make sure it works by increasing the thermostat temperature set point until the unit starts to heat. 
CAUTION: If you are using a wall thermostat, you must switch it to fan heater mode as soon as you restore power. If the thermostat remains in Baseboard mode, the fan heater will operate intermittently and may overheat.
TROUBLESHOOTING THE FAN HEATER
- The following table lists the most common problems and alerts you may encounter with your fan heater.
- If your issue isn’t listed in this table or if the proposed solution does not solve the problem, please turn off the unit and contact our customer service team.
- WWW.STELPRO.COM [email protected] 1-844-STELPRO
| PROBLEMS/ALERTS | POSSIBLE CAUSES AND SOLUTIONS |
|
The fan heater doesn’t start after it is installed. |
• Make sure the thermostat’s setpoint is correct.
• Make sure the fan heater’s wires are connected correctly. Refer to Connecting the electrical wires section on page 8. • Make sure the circuit breaker for the heating system on the electrical panel is OFF. • If the problem persists, the thermostat may be defective. Please contact Stelpro Customer Service. |
|
The circuit breaker trips when the fan heater is switched on. |
• Make sure the fan heater’s wires are connected correctly. Refer to Connecting the electrical wires section on page 8.
• Make sure the electrical voltage supplied corresponds to that indicated on the nameplate. • Make sure that the circuit-breaker or fuse is adequate for the power required. |
|
The temperature setpoint is never reached. |
• Make sure the electrical voltage supplied corresponds to that indicated on the nameplate.
• Make sure the unit is powerful enough for the size of the room. • The unit is overheating, and the thermal protection has been activated. Make sure the unit’s air inlet and outlet are not obstructed. If the cause of the overheating is eliminated, the unit will resume operation after a few minutes. • If the fan heater is controlled by a wall thermostat, make sure it is not defective. • If none of the above solutions work, one or more of the heating elements may be defective. Contact Stelpro Customer Service. |
| The fan heater operates continuously. | • Make sure the unit is powerful enough for the size of the room.
• If the fan heater never stops, the thermostat may be defective. Contact Stelpro Customer Service. |
| The ambient temperature is too high. | • Make sure the thermostat’s setpoint is correct.
• If the problem persists, the thermostat may be defective. Contact Stelpro Customer Service. |
| The unit does not heat. | • The unit is overheating, and the thermal protection has been activated. Make sure the unit’s air inlet and outlet are not obstructed. If the cause of the overheating is eliminated, the unit will resume operation after a few minutes.
• Make sure the thermostat’s setpoint is correct. • Make sure the fan heater’s wires are connected correctly. Refer to Connecting the electrical wires section on page 8. • If the problem persists, the thermostat or a heating element may be defective. Contact Stelpro Customer Service. |
| Heating stops, but the fan continues to operate, or the fan stops, but heating continues. | If the problem persists, an internal component may be defective. Contact Stelpro Customer Service. |
| With a wall thermostat:
the fan switches on and off frequently. |
Make sure the wall thermostat is in Fan Heater mode. |
MAINTAINING THE FAN HEATER
- THE FAN HEATER’S AIR INLET AND OUTLET MUST BE CLEANED REGULARLY FOR THE WARRANTY TO BE VALID.
- WARNING: Turn off the power to the fan heater directly from the electrical panel before cleaning. Even when it is not heating, the fan heater remains powered on and can cause an electric shock.
- Dust the front panel with a soft cloth and clean it with a damp cloth only. If you use cleaning products, they could damage the fan heater.
- If the unit is in a very dusty area, use a vacuum cleaner with a dust brush to remove dust and other foreign matter from the unit.
During maintenance, never use the following:
- Metal brush or scouring pad
- Chlorine
- Cleaning products containing abrasives
- Hydrochloric-acid-based products, such as bleach
- Any other cleaning product with the following symbols:
ON-SITE INSPECTION
For on-site inspection of connections only.
- After removing the cover according to step 3.4, remove and set aside the screw [A] to acces into the junction box.

- Open the junction box by unhooking the two (2) snaps and unfolding the metal on the fold.
- Follow the same steps in reverse order to close the unit.

STELPRO LIMITED WARRANTY
- This limited warranty is offered by Stelpro Design Inc. (“Stelpro”) and applies to the following product made by Stelpro: model UGH.
Please read this limited warranty carefully. Subject to the terms of this warranty, Stelpro warrants its products and their components against defects in workmanship and/or materials for the following periods from the date of purchase: 2 years. This warranty applies only to the original purchaser; it is non-transferable and cannot be extended.
CLAIM PROCEDURE
- If at any time during the warranty period the unit becomes defec-tive, you must cut off the power supply at the main electrical panel and contact 1) your installer or distributor, 2) your service center or 3) Stelpro’s customer service department. In all cases, you must have a copy of the invoice and provide the information written on the product nameplate. Stelpro reserves the right to examine or to ask one of its representatives to examine the prod-uct itself or any part of it before honoring the warranty. Stelpro reserves the right to replace the entire unit, refund its purchase price or repair a defective part. Please note that repairs made within the warranty period must be authorized in advance in writ-ing by Stelpro and carried out by persons authorized by Stelpro.
Before returning a product to Stelpro, you must have a Stelpro authorization number (RMA). To obtain it, call the customer ser-vice department at: 1-844-STELPRO. The authorization number must be clearly written on the parcel or it will be refused.
CONDITIONS, EXCLUSIONS AND DISCLAIMER OF LIABILITY
- This warranty is exclusive and in lieu of all other representations and warranties (except of title), expressed or implied, and Stelpro expressly disclaims and excludes any implied warranty of merchantability or implied warranty of fitness for a particular purpose.
- Stelpro’s liability with respect to products is limited as provided above. Stelpro shall not be subject to any other obligations or liabilities whatsoever, whether based on contract, tort or other theories of law, with respect to goods or services furnished by it, or any undertakings, acts or omissions relating thereto. Without limiting the generality of the foregoing, Stelpro expressly dis-claims any liability for property or personal injury damages, penal-ties, special or punitive damages, damages for lost profits, loss of use of equipment, cost of capital, cost of substitute products, facilities or services, shutdowns, slowdowns, or for other types of economic loss or for claims of a dealer’s customers or any third party for such damages. Stelpro specifically disclaims all conse-quential, incidental and contingent damages whatsoever.
- This warranty does not cover any damages or failures resulting from: 1) a faulty installation or improper storage; 2) an abusive or abnormal use, lack of maintenance, improper maintenance (other than that prescribed by Stelpro) or a use other than that for which the unit was designed; 3) a natural disaster or an event out of Stelpro’s control, including, but not limited to, hurricanes, torna-does, earthquakes, terrorist attacks, wars, overvoltage, flooding, water damages, etc. This warranty does not cover any accidental or intentional losses or damages, nor does it cover damages caused by negligence of the user or owner of the product. More-over, it does not cover the cost of disconnection, transport, and installation.
- The warranty is limited to the repair or the replacement of the unit or the refund of its purchase price, at the discretion of Stelpro. Any parts replaced or repaired within the warranty period with the written authorization of Stelpro will be warranted for the remainder of the original warranty period. This warranty will be considered null and void and Stelpro will have the right to refuse any claims if products have been altered without the written authorization of Stelpro and if the nameplate numbers have been removed or modified. This warranty does not cover scratches, dents, corrosion or discoloration caused by excessive heat, chemical cleaning products and abrasive agents. It does not cover any damage that occurred during the shipping.
- Some states and provinces do not allow the exclusion or limita-tion of incidental or consequential damages and some of them do not allow limitations on how long an implied warranty lasts, so these exclusions or limitations may not apply to you. This war-ranty gives you specific legal rights and you may have other rights which vary from state to state or from province to province.
- STELPRO DESIGN INC.
- Saint-Bruno-de-Montarville, Québec, Canada, J3V 6L7
- THANK YOU FOR YOUR PURCHASE!
- NEED ASSISTANCE? CONTACT STELPRO CUSTOMER SERVICE.
- WWW.UNIWATT.CA
- [email protected]
- 1-844-STELPRO
- UNIWATT is a line of products manufactured by STELPRO.
- For more information, please contact customer service.
