Contents
Robinhood ST3103 Standard Sized Tub with Stainless Steel

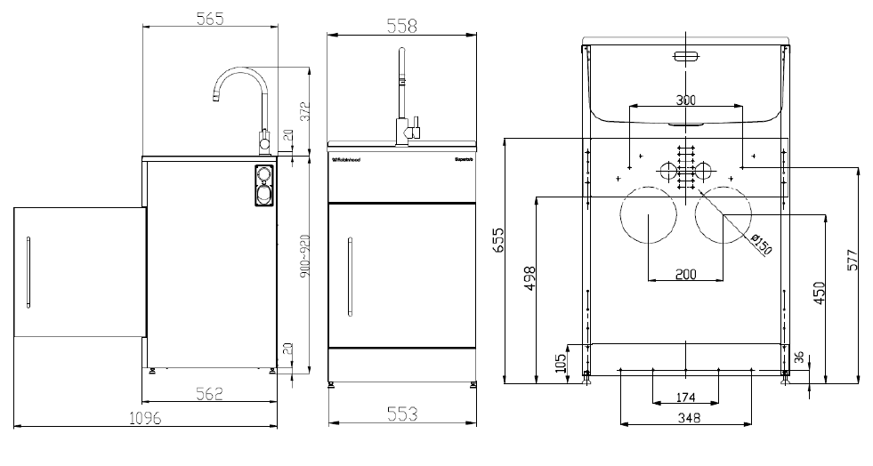
Overview

Contents of packaging
- 1 x Robinhood Supertub (incl waste system and square brushed stainless steel pole handle)
- 1 x Installation kit (incl adjustable feet and 3 way ball valves)
- 1 x Stainless Steel gooseneck tap (incl flexible hoses and mounting nut)
Pre-installation
Important:
- Please read the entire instructions before installing the laundry tub.
- Ensure the household pipes are thoroughly flushed to remove debris before connecting your laundry tub to the pipe works. To prevent foreign particles damaging the ceramic cartridge an ‘in-line’ filter is recommended to be installed prior to the mixer.
- Warranty on single lever mixer is void if the in-line filter is not fitted.
- Recommended temperature range 5° to 65°C. Maximum temperature 80°C.
- Maximum pressure 72.5 PSI (500 kPa), minimum pressure 22 PSI (150 kPa).
Regulation compliance
Comply with current Drainage and Plumbing Regulations as required by your local authority. Sanitary plumbing shall only be carried out by a Registered Plumber. All plumbing work must be done in accordance with local and national building and plumbing codes as applicable. All electrical work must be done in accordance with local and national electrical codes as applicable. In some instances this product may need to be earthed.
Determine site
Determine the most suitable position for the laundry tub. It may be used either to the left or right of the washing machine. Allow 10mm clearance between the units. Mark the position on the floor as reference.
Important safety information
This Robinhood Supertub is not intended for use by young children or infirm persons without supervision. Young children should be supervised to ensure that they do not play with the Robinhood Supertub. DO NOT use abrasive household cleaner.
Installing the Supertub
Check if the door or washing machine waste inlet needs to be changed to the opposite side before securing the unit to the wall. If needed, please see page 5-6 for instructions.
- Fit the four adjustable feet supplied to the bottom of the cabinet and adjust to align with benchtop or washing machine height. Use the lock nut to secure the feet into desired position. Tilt laundry tub slightly to assist with access. Check the top of the laundry tub with a spirit level to ensure that it is level and check that the cabinet does not “rock” confirm that the door operates correctly.

- Line up the laundry tub to the installation position and confirm there is enough space. If necessary, remove the skirting board at the required distance (560mm), this will allow the unit to sit flush against the wall. (Check with your local council for building regulations). Remove the laundry tub away from the wall.
- Connect the hot and cold 3 way ball valves from the installation kit to the mains wingbacks using suitable washers/hemp / ptfe tape.
Note: If fittings are required, standard parts are available at most plumbing supply outlets. Ensure the ¾” washing machine cap is secure and does not leak.
- Fit the tapware to the tub using the supplied fittings. Connect the two flexible hoses onto the body of the tapware from the underside; ensure that the flexible hoses are fitted to the hot and cold correctly. Hand tightened and then finished with a quarter turn only.

- Position the laundry tub and cut the house waste pipe (which should already be installed) to the exact height. The final height will depend on the waste trap dimensions.
- Fasten the laundry tub to the wall through any of the holes in the rear flanges. Alternative fastening can be achieved through the floor. Confirm that the door operates correctly.
- Connect the hot and cold from the tap ware to the 3 way ball valves; connect the waste system and the trap to the laundry tub.
- Test the laundry tub for leaks. Check the tap ware, washing machine caps and the waste system.
- Seal the laundry tub to the wall using suitable approved sealant. (Check with your local council for building regulations).
Installing the washing machine water inlet and waste outlet
Check if the door or washing machine waste inlet needs to be changed to the opposite side before securing the unit to the wall. If needed, please see page 5-6 for detailed instructions.
- Cold water washing machine required, identify cold water 3 way ball valve confirm that the valve is shut horizontally and remove the ¾” cap and seal. (Keep the cap in a safe location in case you need to remove the washing machine later). Feed the cold water hose from the washing machine through the white plastic washing machine waste inlet to the 3 way ball valve, confirm the seal is okay and then connect them together.
- Hot water not required, then checks the cap only and make sure it is tight and that the 3 way ball valve is in the off position.
- Hot water washing machine required, identify the cold water 3 way ball valve confirm that the valve is shut horizontally and then remove the ¾” cap and seal. (Keep the cap in a safe location in case you need to remove the washing machine later). Feed the hot water hose from the washing machine through the white plastic washing machine waste inlet to the 3 way ball valve, confirm the seal is ok then and connect them together.
- Washing machine waste hose connection through the white plastic washing machine waste inlet and make sure that the hose is as far down the hose as possible and then to prevent the washing machine waste hose from coming loose use the cable tie from the installation kit to fasten the hose firmly to the white plastic washing machine waste connector. (see next page for picture).
Important: Ensure the washing machine outlet hose is correctly fitted at both ends and that the spring clips are firmly in place to prevent leakage.
Operating Instructions
Operating the washing machine by adjusting 3 way ball valves
- To use the washing machine from the mains water supply, simply turn the 3 way ball valves quarter turn valve on. (Shown as above)
- To isolate the washing machine from the mains water supply, simply turn the 3 way ball valves quarter turn off. This will isolate the washing machine from the mains water supply but still allow water to flow through the laundry tub tap. (Shown as above)
Operating the Stainless Steel gooseneck tap
The tap is operated in conjunction with the Hot and Cold (H&C) indicators on the tap handle.
Changing the door from right to left opening
Please follow below instructions:
- Open the door to its most open position. Unscrew the two screws in the bottom left hand corner. From inside the unit pull the hinge pin downwards to release the door.
- Manoeuvre the door to allow removal from the Laundry tub.
- Unscrew the two screws in the top left hand corner. From inside the unit pull the hinge pin upwards.
- Insert the hinge pin in the bottom right hand location and secure with two screws.
- Turn door around. Locate the door on the bottom right pin. Sing the door fully open and insert the hinge pin in the top right location and push down to locate in the door.
- Secure with two screws. Check operation of the door.
Changing the door from right to left
Installing the handle
Please follow below instructions:
Changing the washing machine inlet from right to left
The washing machine outlet waste hose can be connected to either side of the Robinhood Supertub.
- On the outside of the laundry tub, remove the screws from the white plastic washing machine waste inlet and the white plastic blanking plate.
- On the inside of the laundry tub, remove the clip from the white plastic washing machine waste inlet and black flexible hose, move the white plastic part to the other side of the laundry tub
- Reconnect the washing machine flexible hose to the left hand side replace the clip and ensure good seal.
- On the outside of the laundry tub secure the white plastic washing machine waste inlet with six screws.
- On the opposite side of the laundry tub secure the white plastic blanking plate with six screws
Cleaning and maintenance
Powder coated surfaces must not be cleaned with abrasive or chemical cleaners. To keep the Robinhood Supertub looking its best, wipe regularly with a damp soft cloth. A mild soap and water solution may be used to remove stubborn dirt. Under no circumstances should harsh detergents (including chemical cleaners) such as bleach, scourers or any abrasive cleaner be used as these products may irreparably damage the surfaces of the Robinhood Supertub.
NB. Their use will render the warranty void.
Warranty Certificate (New Zealand)
Terms and Conditions
The following conditions apply in respect of the warranty given in this certificate:
- Monaco Corporation Limited (“Monaco”) warrants the following Robinhood products against manufacturing defects and faulty materials, under normal use and subject to the exclusions in this certificate, for a period of:
- Uniduct – 12 months from date of original purchase for domestic use.
- Supertub – 5 years on stainless bowl, 24 months on Tap, Cabinet and other components from the date of original purchase for domestic use.
- Ironing centre – 12 months from date of original purchase for domestic use.
- Waste disposal – 24 months from date of original purchase for domestic use.
“Original purchase”, when used in this certificate, means purchase by the customer directly from Monaco or one of its approved suppliers.
- This warranty is limited to the repair or replacement, at our option, within the warranty period of any component part which we at our discretion determines to contain faulty materials or a manufacturing defect in breach of this warranty. This warranty is subject to terms and conditions set out in this certificate.
- The warranty only applies within New Zealand.
- The customer must produce the original invoice or other purchase documentation as proof of the original purchase date.
Warranty exclusions
- The warranty does not apply where, in Monaco’s opinion:
- The defect is caused by misuse, wear and tear, dirt, fire or accidental damage.
- The product has been repaired or serviced by an unauthorised person.
- The product was not installed in accordance with our instructions.
- The product was purchased overseas or was not designed for use in New Zealand.
- The product was not used, cleaned or cared for in accordance with our instructions.
- The product was used outdoors.
- All Robinhood rangehoods are suitable for indoor use only, and not suitable over BBQs or charcoal cookers designed for outdoor use.
- In addition, this warranty does not extend to damage or defects which in our opinion, directly or indirectly arise from or are due to: Exposing the product to acidic or corrosive materials or chemicals such as dyes, solvents, denture cleaner or acetone; Using inappropriate household cleaning products such as abrasive cream or powder cleansers, furniture polish, bleach, mentholated spirits, drain cleaners, sugar soap, metal pads and strongly alkaline or acidic cleaners; Heat damage, including from washing the product at high temperatures; Impact or mishandling the product, including the impact caused by objects scraped along, thrown or dropped on the product surface or excessive weight being placed on the product; Structural or support changes in or affecting the building or the application where the product has been installed; Failure to clean or maintain the product as recommended; or Any other causes specified in the product information as being excluded from this warranty.
- Variations with the colour or gloss within the product or any ageing or fading of colour, shine or gloss level over time are not not covered by this warranty. The warranty does not cover visual imperfections or blemishes in the surface and edges of the product that were not brought to your supplier’s attention at the time you inspected the product.
- Costs incurred on installation or removal of a product, or any reinstallation of a product, or any associated costs, are not covered by this warranty.
- Monaco will not be liable for consequential or indirect loss or damage whatsoever and however arising out of or in connection with the supply, performance or removal of the product, including (but not limited to) loss of profit, loss of revenue, loss of contract, loss of goodwill or increased cost of workings, even if due to the negligence of Monaco or any of its approved suppliers, employees or agents.
- Charcoal filters and light bulbs are not covered by this warranty
- This warranty and the statements contained in this certificate or other documents given to you do not exclude, restrict or modify the application of any term implied into this warranty by statute, provided that (to the extent any statutory provision permits Monaco to limit its liability for a breach of an implied condition or warranty) Monaco’s liability for such breach is limited to the payment of the cost of replacing the product, repairing the product or acquiring an equivalent product.
- Subject to clause 5, our obligations under this warranty are limited to those set out in this certificate, and this warranty is expressly instead of all other warranties, express or implied, including any implied warranty of merchantability or fitness for a particular purpose and notwithstanding any course of dealing between the parties or custom and usage in trade to the contrary.
Should warranty service be required, please contact us:
Phone: (09) 415 6000
Fax: (09) 415 7400
Email: [email protected]
Website: www.robinhood.co.nz
Terms and conditions are subject to change without notice