Contents
PROJECT SOURCE F330 Omaha Unfinished Cabinet Fill Strip
Product Information
The product is a measuring guide designed to assist customers in accurately measuring their space for remodeling projects. It provides step-by-step instructions on creating drawings and gathering the necessary information for the design process. The guide includes sections on floor plan drawing, wall elevation drawings, construction details, appliances, and photography.
It also provides important notes about measuring for renovations, including the use of inches for measurements, rounding down for walls and openings, and rounding up for appliances. The guide emphasizes the use of metal measuring tapes for accuracy and recommends recording dimensions in inches.
Helpful tips are provided on properly measuring the space, locating windows and doors, measuring doors and windows, recording measurements, locating range hoods, outlets, switches, water and utility lines, and 220-volt outlets.
Product Usage Instructions
- Start by using a metal measuring tape to accurately measure your space in inches. Record all dimensions on your drawings.
- Locate windows and doors by measuring from the wall to the outside edge of the trim.
- Measure the width and height of each door and window, including the trim.
- Record the width of the window sill.
- If you have an existing range hood vent or over-the-range microwave, note its location on your drawing. Specify if it exhausts back into the room or has ducts that go outside.
- Locate outlets and switches by measuring horizontally to the center of the wall plate and vertically from the floor.
- Mark the center line location of the sink, water lines, drains, gas lines, and heating/air conditioning vents.
- Show any 220-volt outlets on your drawing if you have an electric stove or any other appliances that require them.
Remember to double-check your measurements for accuracy and use a metal measuring tape to avoid stretching and measuring errors. The drawings should be recorded in inches, not feet and inches, as cabinets and appliances are measured in inches.
MEASURING YOUR SPACE
Accurate measuring is a critical step in the remodeling process. delays and costly overruns. Obtaining a professional measurement of your space is highly recommended – talk to your designer for more details. Before your designer can begin to design your new space and help you select your cabinetry and appliances, they will need to know the size of your space and the important construction details. This guide walks you through the 5 easy steps to create a drawing and provide the information necessary for your kitchen designer to start the design process.
IMPORTANT NOTES ABOUT MEASURING FOR RENOVATIONS
Measure in INCHES
Cabinets and appliances are measured in inches, so your drawings should be recorded in inches, not feet and inches.
Example: 138-1/8-in, NOT 11-ft 6-1/8-in
For walls and openings, ROUND DOWN When you measure ceilings, walls and openings, round down to the nearest 1/8-in.
Example: 138-1/8-in, NOT 138-3/16-in
For appliances, ROUND UP When you measure appliances round up to the nearest inch.
Example: 34-in, NOT 33-11/16-in

Recording your measurements
We’ve provided arach paper to help with vour final drawings. It is much more important to record accurate dimensions, rather than draw your room to scale. Be sure to write the actual dimensions on your drawings for all the elements in your space.

USE ONLY METAL MEASURING TAPES
Cloth or plastic tapes may stretch, causing measuring errors. Standard construction materials are measured in inches. Use a imperial tape measure and record your dimensions in inches, not feet and inches.
MEASURING TIPS
Here are helpful tips on how to properly measure your space and record the correct window, door and drawings. Always double-check your measurements

Locate windows and doors
Measure from the wall to the outside edge of the trim on all your doors and windows.
- Locate outlets and switches:
Measure horizontally to the center of the wall plate, and vertically from the floor as shown - Locate water and utility lines:
Mark the center line location of the sink, water lines, drains, gas lines and heating/air conditioning vents.
220-volt outlets
Be sure to show any 220 volt outlets on your drawing. Do you have an electric stove? Then you’ll have a 220 volt outlet for your stove. Your outlet may not look exactly like the example shown here, but it will look different from standard 110 volt outlets.Be sure to show any 220 volt outlets on your drawing. Do you have an electric stove? Then you’ll have a 220 volt outlet for your stove. Your outlet may not look exactly like the example shown here, but it will look different from standard 110 volt outlets.
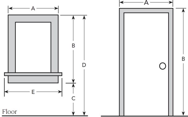
Measuring doors and windows
Your designer needs to know the exact location of windows and doors, as well as the size of each opening (including the trim) in order to plan your new space. Record all of the measurements:

- A. Width, including trim
- B. Height, including trim
- C. Distance from floor
- D. From floor to top of window
- E. Width of the window sill
Range hoods
If you have an existing range hood vent or over the range will be microwave, note the location on your drawing. Specify if it exhausts back into the room, or if it has ducts that went to outside.

IMPORTANT:
Be sure to write the measurements on your drawings!
Most grid paper is to scale, but your designer won’t know what size your space is unless you write down the dimensions.
CREATING WALL ELEVATION DRAWINGS
Elevation drawings are a straight-on view of each wall, with all the features measured vertically and horizontally, placing them on the wall space. This helps your designer locate your new cabinets and appliances along your walls.
Start with the sink wall, go clockwise from there
Start measuring your room with the sink wall. Label this wall A. Then go clockwise around your room, labeling the walls B, C, and D.
Draw a rough sketch
Start by drawing a rough sketch (or two!) of each wall on a separate sheet of paper.
Measure the width of the wall
Measure the full width of each wall, beginning in the left corner. Check the width at two locations, 6 inches above smallest dimension.
Measure the height of the wall
Measure the full height of each wall, beginning in the left corner. Check the height at two other locations. Use the smallest dimension.
Locate the openings
Measure to the outside edge of the trim. Then measure from the outside trim edge to the next opening, or to the far wall. Follow our measuring tips to capture all the important details about windows and doors.
Locate fixtures and utilities
Measure horizontally to the center of outlets, switches water lines and other utilities. Also measure the distance of the items from the floor. If there are HVAC wall vents, mark their location and size. Follow our measuring tips for accuracy.
Transfer measurements to grid
Transfer all of your measurements to the grid pages in this guide. Label your drawings Wall A, Wall B, Wall C and Wall D. Then begin the floor plan drawing.
If your space is L-shaped or has a bump-out area, you can still draw an elevation view straight-on. Just use a vertical line to show where the wall comes forward.
- If your floor plan looks like this drawing.
- Your elevation view will look like this drawing.
Always double. check vour measurements! The total of vour wall segments should eaual vour overall lenath.
CONSTRUCTION DETAILS
ENTRANCES AND ACCESS
To make sure your new products fit through doorways into your space, record the actual openings for doors and hallways.
- Entry Door: inches
- Interior Door 1: inches
- Interior Door 2: inches
- Hallway: inches
Is there a basement or crawl space under the room that provides access to plumbing and heating ducts?
- Yes
- No
Soffits
A soffit, also called a bulkhead, is a wall section that is built out at the ceiling level, usually in the area above wall cabinets.
Does the room have soffits?
- Yes
- No
If yes please fill out two dimensions in the diagram to the right.
Do you plan to keep the existing soffits?
- Yes
- No
Will the soffits have recessed lighting after the renovation?
- Yes
- No
WARNING:
Soffit typically contains electrical and plumbing elements that can’t be relocated. Consult a professional on your remodel.
APPLIANCES
PHOTOGRAPHY
Take photos of your space and share them with your kitchen designer. Label your photos to match your walls: A, B, C, D.
- Straight-on views of each wall: A (the sink wall), B, C, D (go clockwise around the room).
- Photos of soffits or other construction details.
- Close-ups of anything unusual in your space: air vents, plumbing or gas lines, entrances or access notes