
M673LD3 / M673L3
GEM Series Sound Enclosure
Assembly Instructions

Northern Lights
4420 14th Avenue NW
Seattle, WA 98107
Tel: 206-789-3880
Fax: 206-782-5455
Copyright ©2020 Northern Lights, Inc.
All rights reserved. Northern Lights™, and the Northern Lights logo are trademarks of Northern Lights, Inc.
Printed in U.S.A.
LIT NO.: L821 9/21

____________________________________
Corporate Headquarters
4420 14th Avenue NW
Seattle, WA 98107
Tel: 206-789-3880
Fax: 206-782-5455
Alaska Branch Office
1200 West International
Airport Road
Anchorage, AK 99519
Tel: 907-562-2222
Fax: 907-563-1921
Southeastern U.S.A.
1419 W Newport Center Dr
Deerfield Beach, FL 33442
Tel: 954-421-1717
Fax: 954-421-1712
East Coast Branch
15 Aegean Dr.
Suite 4
Methuen MA 01844
Tel: 978-475-7400
Fax: 978-475-7745
Gulf Branch
19 Veterans Memorial Blvd.
Kenner, LA 70062
Tel: 504-360-2180
Toll Free: 800-843-6140
M673L3/LD3 GEM Sound Enclosure
|
ITEM # |
DESCRIPTION | ADE P/N | QTY |
NOTES |
|
1. |
Junction box bridge cover assembly |
06-78029 |
1 |
|
|
2. |
Rear panel assembly |
06-08024 |
1 |
|
|
3. |
Non-service side valence assembly |
06-08012 |
1 |
|
|
4. |
Service side valence assembly |
06-08023 |
1 |
|
|
5. |
Front lower valence assembly |
06-08014 |
1 |
|
|
6. |
Non-service side panel assembly |
06-08013 |
1 |
|
|
7. |
Front panel assembly |
06-08016 |
1 |
|
|
8. |
Seal bar assembly |
06-08029 |
1 |
|
|
9. |
Top panel assembly |
06-08028 |
1 |
|
|
10. |
Service side panel assembly |
06-78010 |
1 |
|
|
11. |
Sound shield wire harness |
22-72026 |
1 |
|
|
12. |
M8 x 12 18-8, S/S button head screw |
12-70013 |
2 |
|
|
13. |
M8 x 20 18-8, S/S hex head cap screw |
12-00776 |
2 |
|
|
14. |
M8 flat washer, S/S |
15-11000 |
2 |
|
|
15. |
M8 lock washer, S/S |
15-00705 |
4 |
|
|
16. |
Grommet edging |
44-70034 |
15” |
|
|
17. |
Front lower valence cut-out insert sound foam |
55-08003 |
1 |
|
|
18. |
45° Elbow fitting, 1/4 NPT x 1/4-45T |
21-50054 |
2 |
SPECIFICATIONS
| Enclosure: | |
|
Length (OA) |
28.5 in (724 mm) |
| Assembled weight (shield only) |
34 lbs (15.4 kg) |
| Assembled weight (with generator set) |
405 lbs (184 kg) |
Prior to assembly, inspect all components for damage. Report any damage to the shipping company. Check the packing fist in the back of this manual to be sure all parts are included.
Note: The generator set features a single point lifting eye. However, the generator may still possess original factory lifting points, which will need to be loosened and rotated down, until they are below the highest point on the engine. Be sure to retighten those bolts before moving on.
Select a mounting location in accordance with the guidelines in the IM1000 Installation Manual. The generator set most typically be mounted on a rigid, flat surface above a strong structure, such as the vessel’s stingers, to minimize vibration transference to the hull.
Note that the generator set is designed for single side service. When viewed from the rear, the right hand side is the service side and should be exposed for easy maintenance access.
Install the generator set in the vessel as near to a level attitude as possible. Ensure that the enclosure’s left hand side and rear at the recommended distances (15 inches recommended, 4 inches minimum) horn the vessel’s bulkheads.
AVOID POSMONING THE ENCLOSURE INTO CORNERS WITH OVERHEAD BLOCKED TO REDUCE CHANCE OF INTAKE/EXHAUST AIR RECIRCULATION OUTSIDE THE SHIELD

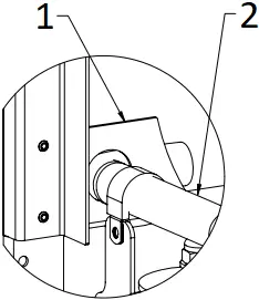
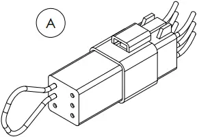
STEP 1.
INSTALL BRIDGE COVER (ITEM #1) SO IT IS PRESSED FIRMLY AGAINST JUNCTION BOX AND HELD IN PLACE BY SOUND FOAM

JUNCTION BOX BRIDGE COVER ASSY
ITEM #1
- SOUND FOAM
- FOAM SEAL STRIP

DETAIL A
- SNORKEL PORT
- SNORKEL HOSE
STEP 2.
VERIFY THAT SNORKEL HOSE ALIGNS WITH SNORKEL HOSE PORT. FEED HOSE UNTIL THE BEND IS THROUGH THE SNORKEL PORT.
You may encounter some resistance as the rear panel comes info contact with the air intake snorkel hose. Note that the rear panel has a small hole in the vicinity of the intake snorkel (Snorkel port.) Guide this hose to that it is inserted within the panel hole, ensuring that the hose will install without adjustment at the retaining clamp.
When making the intake air hose connection, it is important to ensure that the hose is not kinked or bent in such a way as to restrict the engine’s intake airflow. The arrangement is designed to allow the hose to follow it’s natural path when property installed info the rear panel. Some adjustment is possible by loosening either bolt of the snorkel hose’s supporting bracket. Be sure to retighten any loosened bolts.

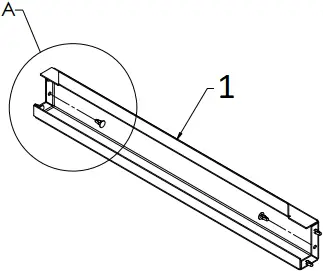
DETAIL B
SCALE 1 : 1
- REAR PANEL ASSY
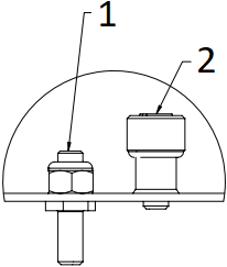
ITEM #2 - M8 BUTTON HEAD SCREW
ITEM #12, QTY: 2
M8 LOCK WASHER
ITEM #15, QTY: 2
STEP 3.
INSTALL REAR PANEL ASSY (ITEM #2).
MOUNT REAR PANEL TO THE BASE FRAME WITH M8 BUTTON HEAD SCREW (ITEM #12) AND LOCK WASHER (ITEM #15). USE 5MM HEX WRENCH AND TIGHTEN WITH HAND TOOLS ONLY.
NOTES:
- FOR GENERATOR CONNECTION TO THE VESSEL, SEE PAGE 9.
- FOR SOUND SHIELD WIRE HARNESS INSTALLATION, SEE PAGE 10.

- FUEL MANIFOLD –
REMOVE HEX PLUGS AND REPLACE WITH TWO (2) NPT X 1/4-45T 45 DEGREE ELBOWS (ITEM #18) PRIOR TO INSTALLING SIDE VALENCE

SIDE VIEW, SHOWN WITH ELBOWS AND VALENCE INSTALLED


DETAIL A

DETAIL B
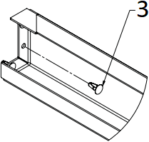
- NON-SERVICE SIDE VALENCE ASSY
ITEM #3 - SERVICE SIDE VALENCE ASSY
ITEM #4 - PRE-INSTALLED NYLON BUMPER/RIVETS
- RIVET HOLES ON REAR PANEL
STEP 4.
INSTALL LOWER SIDE VALENCES (ITEM #3 & #4). GUIDE PRE-INSTALLED NYLON BUMPER/RIVETS INTO CORRESPONDING HOLES IN REAR PANEL. PUSH FIRMLY TO SNAP INTO PLACE,
NOTES:
IF NYLON RIVES DISPLACE, USE A LONG SCREWDRIVER WITH WIDE FLAT BLADE AGAINST RIVET HEAD AND PUSH BACK INTO POSITION.

- FRONT LOWER VALENCE ASSY
ITEM #5
STEP 5.
INSTALL FRONT LOWER VALENCE (ITEM #5).
ALIGN NYLON RIVETS IN BOTH LOWER SIDE VALENCES TO CORRESPONDING HOLES IN FRONT LOWER VALENCE AND PUSH TOGETHER. SECURE WITH M8 HEX CAPSCREW (ITEM #13), M8 LOCKWASHER (ITEM #15) AND M8 FLAT WASHER (ITEM #14) TO THE TOP OF THE BASE FRAME.

DETAIL C
M8 HEX CAPSCREW, ITEM #13, QTY: 2
M8 FLATWASHER AND LOCK WASHER
ITEM #14 & #15, QTY: 2 EACH

- NON-SERVICE SIDE PANEL ASSY
ITEM #6
DETAIL A

DETAIL B DETAIL C
- FRONT LOWER VALENCE CUT-OUT INSERT SOUND FOAM, ITEM #17
- THUMB SCREW “A”
- THUMB SCREW “B”
STEP 6.
INSTALL FRONT LOWER VALENCE CUT-OUT INSERT SOUND FOAM (ITEM#17).
PEEL OFF THE ADHESIVE BACKING PAPER ON THE SOUND FOAM, AND ATTACH SOUND FOAM TO THE BASE FRAME BY PUSHING IT THROUGH THE CORRESPONDING HOLE IN FRONT LOWER VALENCE.
STEP 7.
INSTALL NON-SERVICE SIDE PANEL (ITEM #6).
NON-SERVICE SIDE PANEL ATTACHES TO REAR PANEL AND LOWER VALENCE WITH THUMBS “A” AND “B”. WITH PANEL IN PLACE, USE THUMB SCREW “A” TO RETAIN SIDE PANEL, APPLY DOWNWARD PRESSURE AS YOU TURN THUMB SCREW “B” TO ENGAGE THE CAPTIVE NUTS INSIDE THE LOWER VALENCE.

- FRONT PANEL ASSY
ITEM #7 - FRONT LOWER VALENCE ASSY
ITEM#5

DETAIL A DETAIL B
- BOTTOM PINS
- BOTTOM THUMB SCREW “A”
- SIDE THUMB SCREW “A”
STEP 8.
INSTALL FRONT PANEL ASSEMBLY (ITEM #7).
POSITION FRONT PANEL ON TOP OF FRONT LOWER VALENCE. NOTE THE PINS IN THE BOTTOM OF THE FRONT PANEL ALIGN TO HOLES IN THE LOWER VALENCE. ENGAGE AND SECURE WITH THUMB SCREW “A” ON THE SIDE AND ON THE BOTTOM.

- SEAL BAR ASSY
ITEM #8

DETAIL A
- THUMB SCREW “A”
STEP 9.
INSTALL SEAL BAR ASSEMBLY (ITEM #8).
LOCATE BAR TO CORRESPONDING HOLES AND SECURE WITH THUMB SCREW “A”. HAND TIGHTEN FIRM AND DO NOT USE TOOLS.

- TOP PANEL ASSY
ITEM #9
STEP 10.
INSTALL THE TOP PANEL ASSEMBLY (ITEM #9).
NOTE THAT THE PANEL HAS LOCATING PINS PRE-INSTALLED.
ALIGN THESE WITH THE CORRESPONDING HOLES ON THE TOP OF THE FRONT AND REAR PANEL ASSMBLIES.
NOTES:
OPEN LATCHES BY TURNING THE LEVER 90° BEFORE MOUNTING TO SOUND SHIELD. THE RING LATCHES ARE FACTORY PRE-SET BUT OCCASIONALLY REQUIRE SOME ADJUSTMENT. SEE LATCH ADJUSTMENT SECTION (PAGE 12) FOR DETAIL.

- SERVICE SIDE PANEL ASSY
ITEM #10 - NYLON RETAINER
STEP 11.
INSTALL THE SERVICE SIDE PANEL ASSY (ITEM #10).
GUIDE THE NYLON RETAINER INTO THE CORRESPONDING SLOTS ON LOWER VALENCE.

GENERATOR CONNECTIONS
Install connections for exhaust, AC power leads, DC control panel leads, battery and water through holes in the rear panel as shown and described below:
A. Connect the generator set 1-1/2″ exhaust outlet to the exhaust system of the vessel through hole A.
B. Connect the AC output leads from the generator set to the vessel’s power distribution panel through hole B.
C. Connect the battery leads to the generator set through hole C.
D. Connect the sea water pump to the vessel’s water inlet. Push a 3/4″ hose from the vessel’s sea water strainer through hole D to the sea water pump inlet fitting.
E. Connect the DC control harness to the engine harness plug. Pass the harness and plug through hole E.
F. Connect the vessel’s fuel lines using Coast Guard approved rubber fuel hoses to the fuel manifold located on the service side valence (Section F).
See Page 3 – Forward fitting is 1/4″-45T fuel suction. Aft fitting is 1/4″-45T fuel return

- 1/4-45T
FUEL RETURN - 1/4-45T
FUEL RETURN - 3/8-NPT
OIL SUMP DRAIN
SOUND SHIELD WIRE HARNESS INSTALLATION

- SHIPPED LOOSE SOUND SHIELD WIRE HARNESS
STEP 1.
CONNECT SOUND SHIELD WIRE HARNESS TO EMERGENCY STOP SWITCH AND LEAK ALARM LIGHT AS SHOWN IN DETAIL A AND DETAIL B.
STEP 2.
INSTALL FLOAT SWITCH TO THE CORRESPONDING BRACKET ON THE BASE FRAME. BE SURE TO CHECK THE LEAK ALARM LIGHT BY LIFTING UP THE FLOAT AFTER GENERATOR SET IS CONNECTED TO STARTER BATTERY
PRE-INSTALLED EMERGENCY STOP SWITCH

DETAIL A
- RED LEAD
PRE-INSTALLED LEAK ALARM LIGHT

DETAIL B
- RED LEAD (+)
- BLACK LEAD (-)
FLOAT SWITCH

DETAIL C
- BASE FRAME FLOAT SWITCH BRACKET
- FLOAT
NOTES:
LEAK ALARM LIGHT WILL NOT OPERATE IF POLARITY IS SWITCH.
APPEARANCE MAY VARY.
STEP 3.
A. LOCATE AND IDENTIFY THE ENGINE WIRE HARNESS.
B. REMOVE THE ENGINE WIRE HARNESS PLUG, AND
C. CONNECT E-STOP /LEAK HARNESS TO THE ENGINE WIRE HARNESS.

STANDARD ENGINE HARNESS CONNECTOR WITH PRE-INSTALLED END PLUG

ENGINE HARNESS CONNECTOR WITH THE END PLUG REMOVED
- END PLUG
- ENGINE WIRE HARNESS CONNECTOR
SHIPPED LOOSE SOUND SHIELD WIRE HARNESS

- E-STOP SWITCH
- LEAK ALARM LIGHT
- TO BE CONNECTED TO ENGINE WIRE HARNESS
- FLOAT SWITCH
FOR APPLICATIONS WITH A SIPHON BREAK:
Reference the plumbing diagram in the mounting and exhaust sections of the IM1000 installation manual.
Knock-out the marked section as shown below prior to installing Non-Service Side Panel Assy (ITEM #6) and Front Panel Assy (ITEM #7). Install the Grommet Edging (ITEM #16) on the knocked out perimeter.
GENERATOR SETS WITH WET EXHAUST THAT ARE INSTALLED NEAR OR BELOW THE VESSEL’S WATER LINE MUST USE A SIPHON BREAK TO PREVENT BACKFLOW OR WATER INTO THE ENGINE. THIS BLACKFLOW CAN RUIN AN ENGINE AND POSSIBLY SINK THE VESSEL.
- Disconnect the hose from seawater pump output and from the robber elbow on the expansion tank. Install two lengths of 3/4″ hose.
- Pass the seawater pump output hose through the knock-out section. The hose from expansion tank must be located below the other hose in the same knock-out section.
- For more information. see the “Exhaust’ section og the IM 1000. Installation manual is included with the generator set.
Start the generator set and run under load to check for leaks of fuel. water. or exhaust gas.

- KNOCK-OUT SECTION FOR VENTED LOOP OPTION
RING LATCH GRIP ADJUSTMENT INSTRUCTIONS

SOUND FOAM OMITTED FOR VIEW CLARITY
- LATCH PAWL
- PAWL SLOT
- SOME MODELS USE THIS SURFACE TO LATCH
- LATCH SHAFT
- BOTTOM NUT
- STAR WASHER
- TOP NUT
ALL LATCHES ARE PRE-ADJUSTED FROM FACTORY. IN THE EVENT A LATCH REQUIRES ADJUSTMENT, FOLLOW THESE STEPS:
- NOTE THE INTERFERENCE, OR REASON WHY THE LATCH PAWL WILL NOT ENGAGE THE PAWL SLOT. IF PAWL HITS SLOT BRACKET OR SHELF IT MUST BE MOVED TO ALLOW PAWL TO ROTATE INSIDE SLOT.
- LATCH PAWL SHOULD OPERATE WITHIN SLOT FREELY WHEN LATCH HANDLE ROTATES ON REMOVAL.
- WITH LATCH IN CLOSED POSITION, (LATCH PAWL POINTING TOWARDS SLOT, LOOSEN THE BOTTOM NUT. TURN TOP NUT TO CHANGE POSITION OF PAWL AND THEN RE-TIGHTEN THE BOTTOM NUT. ENSURE THE NUT IS FULLY TIGHT BEFORE OPERATING THE LATCH.
- AN IDEAL LATCH CONDITION IS WHEN THE PAWL SWINGS INTO POSITION ON CLOSING, PULLS UP AND ENGAGES THE TOP OF THE SLOT WITH INCREASING RESISTANCE. WHEN THE LATCH RING IS FULLY DEPRESSED THERE SHOULD BE FIRM COMPRESSION OF PANEL PERIMETER SEAL.
- IF YOU CAN LIFT UP A CORNER OF THE TOP PANEL AND SEE A SPACE, THE LATCH IS NOT TIGHT ENOUGH.
PACKING LIST
ITEM #1

JUNCTION BRIDGE COVER ASSY
06-78029, QTY: 1
ITEM #2

REAR PANEL ASSY
06-08024, QTY: 1
ITEM #3

NON-SERVICE SIDE VALENCE ASSY
06-08012, QTY: 1
ITEM #4

SERVICE SIDE VALENCE ASSY
06-08023, QTY: 1
ITEM #5

FRONT LOWER VALENCE ASSY
06-08014, QTY: 1
ITEM #6

NON-SERVICE SIDE PANEL ASSY
06-08013, QTY: 1
ITEM #7

FRONT PANEL ASSY
06-08016, QTY: 1
ITEM #8

SEAL BAR ASSY
06-08029, QTY: 1
ITEM #9

TOP PANEL ASSY
06-08028, QTY: 1
ITEM #10

SERVICE SIDE PANEL ASSY
06-78010, QTY: 1
ITEM # 11

SOUND SHIELD WIRE HARNESS
22-72026, QTY: 1
ITEMS IN THIS BOX ARE ENLARGED FOR DETAIL
|
ITEM # 12 ITEM # 13 ITEM # 14 ITEM # 15 ITEM # 16 ITEM #17 |
ITEM #18

1/4-45T 45° ELBOW FITTNG
21-50054, QTY 2
Packed By : ____________________________
Date : __________________
LIT NO.: L821 9/21


