Contents
NEXUS 21 CL-65e Professional Grade Flip Down TV Lifts

Safety Information
WARNINGS:
- Do not use this product for any application other than those specified by Nexus 21.
- Do not exceed the weight capacity. This can result in serious personal injury or damage to the equipment. It is the installer’s responsibility to ensure that the total combined weight of all attached components does not exceed that of the maximum figure stated.
- Follow all technical specifications and instructions during the installation.
- Only use attachments/accessories specified by the manufacturer.
- Close supervision is necessary when this system is being used by, or near, children, or disabled persons.
- It is the responsibility of the installer to warn all potential users of the dangers of interfering with the machine during operation.
- Read all technical instructions fully before installation and use. It is the installer’s responsibility to ensure that all documentation is passed on to the users and read fully before operation.
- Failure to provide adequate structural strengthening, prior to installation can result in serious personal injury or damage to the equipment.
- Risk of electric shock. Do not attempt to open the Control Box.
- To reduce risk of fire or electric shock, do not expose parts to rain or other liquids.
- Protect the power cord from being walked on or pinched.
- Keep all documentation.
- Heed all warnings.
- Clean only with a dry cloth.
- Refer all service questions to Nexus 21 if the system does not operate normally.
Safety Notice: You are about to suspend a heavy load above your ceiling. Please be aware that you are responsible for the construction and mounting of the frame which will hold the lift system and the TV. You are also responsible for making sure your frame is strong enough (must be able to support at least 1000 lbs.), and that the lift system and your frame are safely secured above your ceiling. Failure to securely mount your frame to the structure of the building, and/or failure of your frame to support the lift system, can cause severe injury and/or property damage. If you are not qualified to perform the installation of the system, or if you are not sure if you are qualified, do not attempt to install it. If you are not an experienced professional, please hire one to perform this installation.
Disclaimer: Nexus 21 disclaims any liability for modifications, improper installations, or installations over the specified weight range. Nexus 21 will not be liable for any damages arising out of the use of, or inability to use, Nexus 21 products. Nexus 21 bears no responsibility for incidental or consequential damages. This includes, but is not limited to, any labor charges for the servicing of Nexus 21 products performed by anyone other than Nexus 21.
Nexus 21 intends to make this and all documentation as accurate as possible. However, Nexus 21 makes no claim that the information contained herein covers all details, conditions or variations, nor does it provide for every possible contingency in connection with the installation or use of this product. The information contained in this document is subject to change without prior notice or obligation of any kind. Nexus 21 makes no representation of warranty, expressed or implied, regarding the information contained herein. Nexus 21 assumes no responsibility for the accuracy, completeness, or sufficiency of the information contained in this document.
Parts List

Installation Hardware Pack Contents
- (16) #10 – 32 x 1-1/4” FHMS
- (16) #8 x 1-1/4” BHWS Square Drive
- (16) #8 ID ¾” OD Flat Washer
- (16) #10 – 32 Self-Tapping Flat Head Screws
- (4) #8 x ¾” FHWS
- (4) 3/8” x 2.5” Lag Bolt
- (4) 3/8” Flat Washer
- (1) Assorted TV Hardware Pack
- (1) 14” Long T-Handle
- (1) 5/16 Hex 6” Long L-Key
10-Year Full Replacement Warranty
Nexus 21 products are manufactured to the highest standards of quality and we are proud to provide the industry’s longest, most comprehensive warranty: 10 years of full-replacement coverage.*
Nexus 21’s dedicated product-support specialists are ready to assist you with any questions. We ask that our specialists be consulted before any repairs or modifi cations are attempted, as these may void the product warranty.
How It Works
- Step 1: If you experience any problem with a Nexus 21 system, call our Product-Support Team at 1-480-306-5462.
- Step 2: We’ll guide you through some of our basic troubleshooting procedures to help identify any issues. The majority of reported issues are resolved with us on the fi rst call without a need for replacement parts or systems.
- Step 3: In the event that you do need a replacement part or system, we’ll ship it to you right away, along with a prepaid UPS return shipping label and a package for the defective part or system to be returned to our office. Nexus 21 will cover the shipping cost of the replacement part or system within the continental United States and Canada (excludes Hawaii, Alaska, and Puerto Rico). Shipping costs for replacement parts or systems shipped internationally will be covered up to a value of $50. Any additional shipping costs, including applicable duties and taxes, are the responsibility of the customer or receiving party.
The Details: Nexus 21 warrants all systems to be free from defects in material and workmanship from the date of purchase until the end of the coverage period (shown below). The warranty includes all parts, motorized components, electronics and metal parts. If a Nexus 21 system or part proves to be defective in material or workmanship during the expressed warranty period, Nexus 21 will replace it free of charge. If the exact original purchase product is not available (due to upgraded designs or discontinuation of a model), the defective product will be replaced with a similar product of equal or greater value. The replacement will then be covered by the balance of the time remaining on the customer’s original warranty. A Nexus 21 product-support representative will determine whether a part or an entire system should be replaced.
*Coverage periods for the warranty are as follows: Residental and Hotel Use
- All Nexus 21 motorized products (except Apex): 10 years
- Apex Motorized Wall Mount: 5 years
Commercial and Educational Use
- All Nexus 21 motorized products (except Apex): 5 years
- Apex Motorized Wall Mount: 3 years
The Nexus 21 full-replacement warranty does NOT cover: any product on which the serial number has been defaced, modified or removed; damage, deterioration or malfunction resulting from accident, misuse, neglect, power surges, fi re, water, lightning or other acts of nature; unauthorized product modification; failure to follow manufacturer’s recommended installation instructions supplied with the Nexus 21 system; repair or attempted repair by anyone not authorized by Nexus 21; causes external to the product such as electric power fluctuations or failure; use of supplies or parts not meeting Nexus 21 specifications or any other cause which does not relate to a product defect.
PLEASE NOTE: In order for any warranty claim to be covered fully under the outlined policy we will require the name, company name or contact information for the original purchaser of the product to qualify the claim. If the information requested cannot be supplied to us or located on file, replacement parts or systems may not be covered under warranty.
Return Policy
Within 30 Days of Delivery: Customers may return a Nexus 21 product(s) for any reason within 30 days of the date it is received for a full refund of the purchase price. Shipping charges associated with your order are not eligible for refund.
To initiate a product-return request, please review the following conditions:
- The product must be unused and complete. Full or partial assembly of the product may void eligibility for return.
- The product must be returned in its original packaging to ensure it is not damaged during shipping.
- Customers must call Nexus 21 and speak with a representative to initiate a return request.
- All returns are subject to an inspection process by a member of Nexus 21 Product Support before a refund is issued.
- Please allow a minimum of 2 weeks from the date the return is received for a refund to be processed.
- Any Nexus 21 product that is received back and deemed unfi t for resale or restock upon inspection due to installation or shipping damage will not be eligible for a full refund.
- Customers are responsible for shipping charges to send the product back to us.
- All returns must be processed back to the original form of payment used in the purchase of the item(s).
Nexus 21 ships each product encased in custom die-cut foam, which is purpose-engineered for vibration dampening to reduce any risks of shipping damage. It is mandated that all product returns be shipped back to Nexus 21 in their original packaging. If you do not have the original packaging, please contact Nexus 21 Product Support at 1-480-306-5462. A new set of packaging materials can be requested and the cost will be deducted from the refund amount.
After 30 Days Returns received 30-60 days after the product has been delivered are not eligible for a full refund of the purchase price. All returns accepted back during this time frame will be subject to a restocking fee of 25% of the original purchase price.
The following conditions apply to any returns received within this stated timeframe:
- The product must be unused and complete. Full or partial assembly of the product may void eligibility for return.
- The product must be returned in its original packaging to ensure it is not damaged during shipping.
- Customers must call Nexus 21 and speak with a representative to initiate a return request.
- All returns are subject to an inspection process by a member of Nexus 21 Product Support before a refund is issued.
- Please allow a minimum of 2 weeks from the date the return is received for a refund to be processed.
- Any Nexus 21 product that is received back and deemed unfi t for resale or restock upon inspection due to installation or shipping damage will not be eligible for a full refund.
- Customers are responsible for shipping charges to send the product back to us.
- All returns must be processed back to the original form of payment used in the purchase of the item(s).
Nexus 21 ships each product encased in custom die-cut foam, which is purpose-engineered for vibration dampening to reduce any risks of shipping damage. It is mandated that all product returns be shipped back to Nexus 21 in their original packaging. If you do not have the original packaging, please contact Nexus 21 Product Support at 1-480-306-5462. A new set of packaging materials can be requested and the cost will be deducted from the refund amount.
Nexus 21 will not accept return requests past 60 days of the product being delivered.
To initiate a Return follow the steps listed below:
- Step 1: Call 1-888-981-9919 and request to return your product(s).
- Step 2: Your Account Manager will provide you with a link to a form for you to fill out digitally.
- Step 3: Arrange shipment of the product to our office. Emailing the tracking information to [email protected] can expedite the process.
Once your product is received, please allow up to 2 weeks for us to inspect and process your return. You will receive a confirmation email indicating that your return has been successfully processed. Refunds may take 5 – 10 business days depending on your issuing bank.
Installation
The combined weight of the TV + Flip-Down Panel + Cables/Components cannot exceed 100 lbs.

- Raise your system into the ceiling and fasten it to your trusses, joists, all-thread, etc. using either of the mounting methods shown above.
Important Note: Do not lift the system from the Inner Frame (shown in red) as this will cause damage to the motors.
- Connect the Power Cord to the Control Box and lower the Lift System by pressing the “Down” button on the Wired Backup Switch. If necessary, press “Up” at any time to stop. Ensure the Wired Backup Switch remains accessible at all times during and after installation. If necessary the Wired Backup Switch can be extended using a coupler and standard CAT Cable.
Note: You can move the position of the Control Panel by removing the (4) Phillips Screws from it and swapping the Motor Cables in ports 1 & 2.
Paneling & Cable Management
The combined weight of the TV + Flip-Down Panel + Cables/Components cannot exceed 100 lbs.

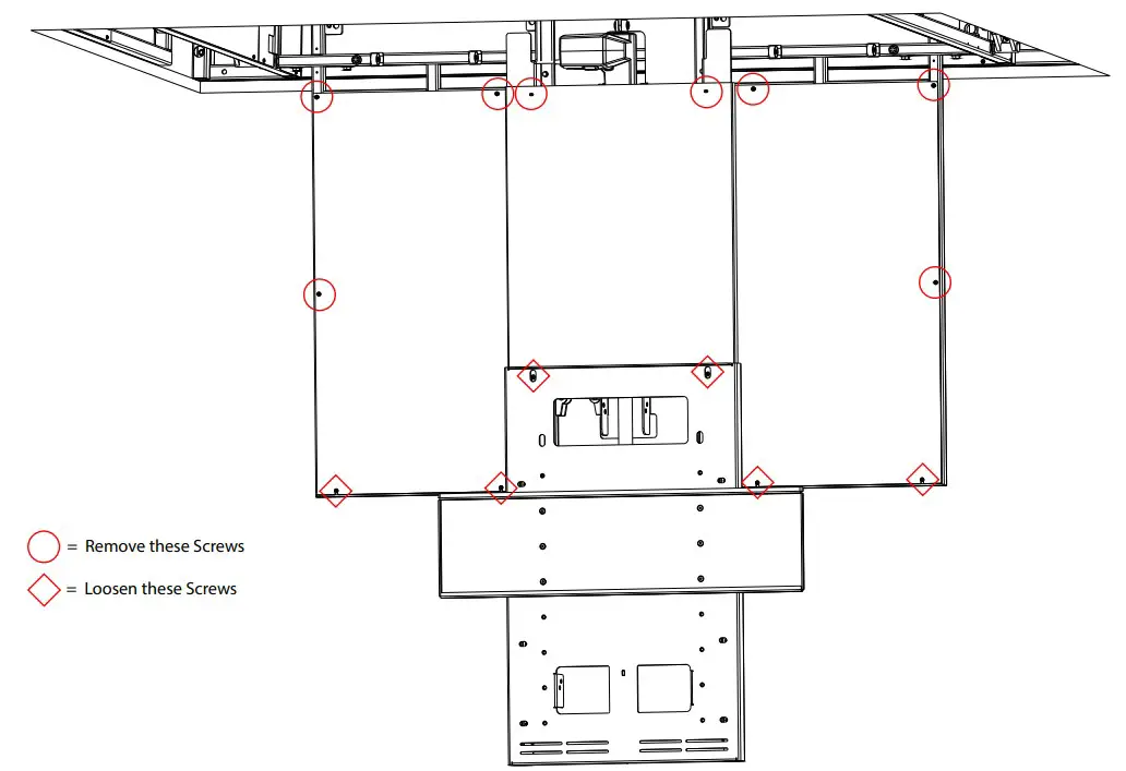
Remove the (4) Phillips Screws below the Cable Cover, then loosen the top (4) Phillips Screws and slide the Cable Cover up and off.
Note: Leave the top (4) Phillips Screws in place, do not remove them as they will help relocate the Cable Cover when you put it back on.

Using the image above, remove the screws indicated by a circle and loosen the screws indicated by a diamond, then slide each of the panels up to remove them.
Note: If you are unable to access these screws, press and hold the “Down’ button on the Wired Backup Switch for 5 seconds to initialize the system.

Align your Flip-Down Panel with the Top of the Sub-Frame, center it, then fasten it to the Sub-Frame using either of the mounting methods listed below:
Through-Bolt: Mount your Flip-Down panel using (12) #10-32 x 1.25” FHMS Screws to through-bolt it to the Sub-Frame from the back side.
Wood Screw: Mount your Flip-Down panel to the Sub-Frame using (12) #8 x 1.25” BHWS Screws & (12) ¾” Flat Washers from the front side.

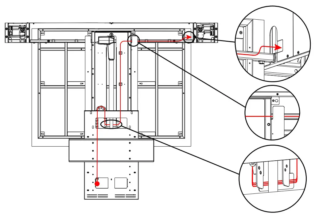
Route your cables along the path indicated in the image above. Several Cable Straps are provided along the way to secure your cables in place.
Note: If needed, your cables can also be routed to the left side of the lift system by passing the cables behind the Actuator and through the other side.

Ensure you have enough cable slack to connect your AV Cables then replace the (3) Cover Panels followed by the Cable Cover.
Note: The Cable Cover must go on last. Replacing it first will obstruct the placement of the other panels
TV Mounting
The combined weight of the TV + Flip-Down Panel + Cables/Components cannot exceed 100 lbs.

Attach the Vertical Mounting Bars to the back of your TV using the provided Assorted TV Hardware Pack.
Place the Screen Locks into one of the three hooks on each of the Vertical Mounting Bars and secure them by tightening both Philips Screws.
Note: 3 sets of hooks are available on the Vertical Mounting Bars to allow adjustment to the Vertical Position of your TV

Adjust the vertical position of your Screen Back Plate, hang your TV on the it, then connect all AV cables ensuring enough slack is available. Once the cables are connected, center your TV, then secure it to the Screen Back Plate by tightening the Hex Screw on the Screen Locks.
Important Note: The bottom of your TV must be above the bottom of the Sub-Frame to ensure no damage occurs to your TV.
Adjustments & Fine Tuning
The combined weight of the TV + Flip-Down Panel + Cables/Components cannot exceed 100 lbs.

- Raise the system into the ceiling to determine whether your Flip-Down Panel is too high or too low, then fully lower the system.
- Loosen but do not remove the Socket Cap Screws, then use the Fine Adjustment Screws to adjust the position of your Flip-Down Panel. Test the position of the Flip Down Panel by raising the system. This may take several attempts.
- When your panel is flush, tighten the Socket Cap Screws.
Note: The Fine Adjustment Screws must be adjusted equally; Repeat these steps until your panel is flush with the surrounding ceiling.

Size your Trim Panels or bring the surrounding ceiling in, so there is a 1/4” gap between them and the Flip-Down Panel.

Your installation is now complete, reference the documentation contained in your lift system controls for information regarding Controls and Integration.
