nectre N900 Wood Freestanding Instruction Manual

Contents
IMPORTANT INFORMATION
The unit must be installed according to all manufacturers’ instructions included in this manual. The manufacturer is not liable for installations that do not meet the requirements outlined in this manual.
Most building regulatory authorities in Australia require any wood heater installation to comply with Installation Standard AS/NZS 2918. Different states and councils may have varying regulations. Check local building regulations before installing the appliance.
All Nectre wood heaters have been tested to ensure they will meet the appropriate safety standard requirements if the instructions in this manual are followed. As the safety and emissions performance can be affected by altering the appliance, no modifications are allowed without written permission from the manufacturer.
WE RECOMMEND THAT THE INSTALLATION OF YOUR NECTRE WOOD HEATER BE CARRIED OUT BY A QUALIFIED INSTALLER.
WARNING: THE APPLIANCE AND FLUE SYSTEM SHALL BE INSTALLED IN ACCORDANCE WITH AS/NZS 2918 AND THE APPROPRIATE REQUIREMENTS OF THE RELEVANT BUILDING CODE OR CODES.
ANY MODIFICATION OF THE APPLIANCE THAT HAS NOT BEEN APPROVED IN WRITING BY THE TESTING AUTHORITY IS CONSIDERED TO BE IN BREACH OF THE APPROVAL GRANTED FOR COMPLIANCE WITH AS/NZS 2918 APPENDIX B
CAUTION: MIXING OF APPLIANCE OR FLUE-SYSTEM COMPONENTS FROM DIFFERENT SOURCES OR MODIFYING THE DIMENSIONAL SPECIFICATION OF COMPONENTS MAY RESULT IN HAZARDOUS CONDITIONS. WHERE SUCH ACTION IS CONSIDERED, THE MANUFACTURER SHOULD BE CONSULTED IN THE FIRST INSTANCE.
CAUTION: CRACKED AND BROKEN COMPONENTS, EG. GLASS PANELS OR CERAMIC TILES, MAY RENDER THE INSTALLATION UNSAFE
FREE STANDING INSTALLATION
POSITIONING THE OPEN FIREPLACE
Review the necessary clearances specified in this section before considering where to position the open fireplace.
Also check the practicability of installing the flue system in relation to any obstructing roof beams before positioning the open fireplace.
The clearance distances can only be reduced if the surrounding walls are made of non-combustible material such as stone, brick or concrete. If non-combustible material, distance can be reduced to 100 mm. Alternatively, shielding of the wall(s) can reduce clearances (refer to next section for more detail).
The height of the open fireplace firebox above the floor can affect the minimum distance the floor protector must extend out in front as well as the materials it is constructed from.
OPTIONAL FREE STANDING BASE
The N900 Free Standing model can be purchased with an optional base cabinet, floor clearances for this configuration should be followed as per specification.
To fit N900 Free Standing Model to base, using lifting straps position the heater on top of the base and align exterior of heater with base.

STANDARD INSTALLATION
Dimensions given in the table and image below represent the minimum clearance (in millimetres) to combustible materials
- A = Side clearance
- B = Rear clearance
- C = Minimum floor protector depth from opening
- D = Minimum clearance to ceiling above

CORNER INSTALLATION
Dimensions given in the table and image below represent the minimum clearance (in millimetres) to combustible materials.
- C = Minimum floor protector depth from door opening
- D = Minimum clearance to ceiling above
- E = Corner clearance

CLEARANCE DIMENSIONS
| Model | A | B | C | D | E |
| Free Standing | 500 | 100 | 500 | 1300 | 25 |
| Free Standing with Base | 500 | 100 | 300 | 1300 | 25 |
FLOOR PROTECTOR
Unless the open fireplace will be standing on a heat resistant floor such as concrete slab with slate or tiles, it will be necessary to provide a floor protector.
The minimum required overall dimensions for the floor protector are shown in the previous section.
The construction and dimensions of the floor protector depends on the height of the open fireplace firebox above the floor:
450mm or greater above the floor (including being installed on base cabinet) – floor protector constructed from minimum 5mm thick non-combustible material with a thermal conductivity not greater than 0.33W/m °K, equivalent to compressed fibre cement sheet. The floor protector must extend not less than 200mm either side of the firebox opening (1285mm min. overall width), and not less than 300mm forward from the front of the open fireplace, extending beneath the appliance, and not less than 75mm behind (1000mm min. overall depth).
Less than 450mm above the floor – two options:
- a) Skamotec 225 board – 50mm thick board, extending not less than 200mm either side of the firebox opening (1285mm min. overall width), and not less than 500mm forward from the front of the open fireplace, extending beneath the appliance, and not less than 75mm behind (1200mm min. overall depth).
- b) Ventilated floor protector – two sheets of 15mm thick compressed fibre-cement sheet with a 1mm thick sheet of steel between them, spaced off the floor with 25mm high non-combustible spacers such as RHS square tubing, or equivalent, with a minimum ventilation of 2500mm2 at each end between the spacers. Minimum dimensions overall as above – 1285mm wide x 1200mm deep extending not less than 500mm in front of the openfireplace.
Non-combustible tiles may be laid over the top of either floor protector.
REDUCING CLEARANCES TO COMBUSTIBLES
If it is necessary to install a heater closer to a combustible surface than the stated requirements in this installation manual, it must be done in accordance with Australian Standard AS/NZS 2918:2018 Section 3, Tables 3.1 & 3.2.
Shield Construction: The shield shall be constructed from a heat resistant material. The shield must be fixed to the surface that requires protection and NOT the heater.
The Standard allows three options to reduce stated clearances.
ingle layer of continuous material with Minimum Air Gap of 12mm — Clearance Factor = 0.40
Single layer of continuous material with Minimum Air Gap of 25mm — Clearance Factor = 0.30
Two spaced layers of continuous material with Minimum Air Gaps of 12mm + 12mm — Clearance Factor = 0.20
The shielding must be open at the top and bottom (vented) to allow a continuous air flow. It is this air flow that keeps the surface requiring protection cool. Fixings should not impede this air flow.
The shielding needs to go far enough along and up the wall so that the original side and rear required clearances are not compromised. As the flue is now closer to the wall the shielding should also protect the wall from the flue pipe
Example
The side wall clearance for a heater is 750mm.
A 12mm gapped shield on the wall with a factor of 0.40.
Calculate: 750mm x 0.40 = 300mm. This is the new side wall minimum clearance.
The shielding needs to be large enough so that none of the original clearances of 750mm are compromised.
INSTALLING THE FLUE
The flue system used when installing the open fireplace MUST comply with the current installation standard AS/NZS 2918.
Full instructions on the installation of the flue will be supplied with the flue kit. These MUST be adhered to, including the minimum exit height from the top of the floor protector being not less than 4.6m, and the minimum exit height above the roof line of roof ridge as detailed in the AS/NZS 2918.
The flue kit is supplied with the freestanding open fireplace. Note that this flue kit is different to the one supplied with the Built-in model of N900. They are not interchangeable.
The freestanding flue kit consists of:
- 4 x 900mm lengths of 8 inch stainless steel active flue
- 1 x 900mm length of 10 inch, slotted stainless steelouter casing with an external rear heat shield fitted, painted black
- 1 x 900mm length of 10 inch stainless steel outer casing with an internal rear heat shield painted black
- 2 x 900mm lengths of 10 inch stainless steel outer casing
- 2 x 900mm lengths of 12 inch galvanised steel outer casing
- 1 x 12 inch ceiling drop box with 5000mm2 ventilation
- 1 x ceiling flange
- 1 x stainless steel flue cowl for 8 inch flue
- 1 x angle support brackets
- Installing 8 inch active flue – the first length of 8 inch stainless steel flue inserted into the spigot of the appliance can be differentiated by the other three lengths by a larger crimp and swage at one end. Install the remaining three lengths of 8 inch flue as normal.
- 10 inch outer casing with external shield – the first length of outer casing, resting on top of the appliance, is the slotted length with the external heat shield. Orientate the outer casing so that the external shield is closest to the rear wall.
- 10 inch outer casing with internal shield – the second length of outer casing, inserted into the first length, is the one with the internal heat shield. Orientate the secondlength of outer casing so that the internal shield is closest to the rear wall.
- Additional black-painted 10 inch outer casing – depending on the height of the ceiling above the appliance, it may be necessary to order an additional length of 10 inch stainless steel outer casing painted black so that it may extend into the ceiling drop box
All other aspects of the flue kit must be installed in accordance with AS/NZS 2918.
BUILT-IN INSTALLATION
NOTE: Receiver for fan remote control must be fitted before installing the appliance. Refer to section 3.6 Fitting Receiver for Remote Control for more detail.
Refer to this section for clearance requirements and instructions if the heater is to be in a built-in installation.
A licensed accredited installer should install all wood heaters. vPlease ask your retailer to locate an installer.
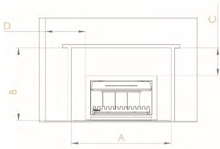
CLEARANCES TO COMBUSTIBLE MATERIALS
The table below gives minimum clearances (in mm) from the appliance to combustible materials. All dimensions are from the surfaces on the outer box of the appliance (see diagram in in following section Enclosure Construction). Internal clearances are within the enclosure, and external clearances are outside the enclosure (inside the area to be heated)
| Description | Clearance |
| A (Rear Internal) | 80 |
| B (Side Internal) | 40 |
| C (Above internal) | 200 |
| D (Ceiling Internal) | 1200 |
| E (Side Wall External) | 550 |
| F (Ceiling External) | 1200 |
ENCLOSURE CONSTRUCTION (WITH MINIMUM CLEARANCES)
The following drawing shows the construction of an enclosure, with minimum clearances for the appliance to be installed (as tested in accordance with AS/NZS 2918 Appendix B).
- The frame is constructed of 90x45mm timber, displayed as dashed lines.
- The cladding on the front wall must be a non-combustible material with a minimum thickness of 10mm.
- If the cladding is greater than 10mm thick, the front edge of the outer “skin” on the appliance can be adjusted by loosening the screws and the narrow cover on top and sides can be slid back sufficient to allow for the greater thickness material to recess behind the front facia of the appliance.
- The firebox can be installed on 50mm thick Skamotec 225 board with overall dimensions of 1000mm wide by 600mm deep.
- If installed 250mm or more above the floor, the firebox can be installed on two 15mm thick compressed fibre cement sheets with overall dimensions of 900mm wide by 480mm deep extending back from the inside face of the front of the enclosure, supported on a timber structure beneath as shown in the following diagram.
- If installed at ground level, the firebox must be installed on the same construction material as the floor protector in front of the firebox, and extend to the rear of the firebox cabinet.
Note: Additional supports should be used to support the weight of the heater, zero clearance box and flue system. These have not been shown in the drawing.



NOTE: If using 30mm cement sheet beneath appliance, this area must be clear of any combustibles beneath for a minimum of 250mm below. Otherwise, appliance must be installed on 50mm thick Skamotec 225 or ventilated hearth – refer to section 3.4
ENCLOSURE VENTILATION
The enclosure must be ventilated. Vents with a minimum total free area of 14,700mm² must be fitted at the top, and a minimum total free area of 29,400mm2 at the bottom.
The purpose of the vents is to allow cooler air to be drawn into the enclosure through the bottom vent, and warm air out through the top vent via natural convection back into the room.
Ensure that adequate ventilation from the lower vents can get past the open fireplace cabinet.
The upper air vents must not be installed any lower than 200mm from the internal ceiling of the enclosure.

FLOOR PROTECTOR (HEARTH)
The dimensions of the floor protector are dependent on the height above the floor at which the heater is installed.
- Base of the firebox is 450mm or more above the floor – Floor protector must extend a minimum of 300mm in front of the firebox opening, and 200mm either side of the opening. It must be constructed from a minimum 5mm thick non-combustible material with a thermal conductivity not greater than 0.33W/m °K, equivalent to compressed fibre cement sheet.
- Base of firebox less than 450mm above the floor – Floor protector must extend a minimum 500mm in front of the firebox opening, and 200mm either side of the opening. It must be constructed from one of two options:
- a) Skamotec 225 board – 50mm thick
- b) Ventilated floor protector – two sheets of 15mm thick compressed fibre-cement sheet with a 1mm thick sheet of steel between them, spaced off the floor with 25mm high non-combustible spacers such as RHS square tubing, or equivalent, with a minimum ventilation of 2500mm2 at each end between the spacers
Non-combustible tiles may be laid over the top of either floor protector option.
The floor protector can be larger than the minimum dimensions given here if desired.
Note that if the firebox is less than 250mm above the floor, the floor beneath the firebox within the enclosure must be protected with the same material construction as the floor protector in front of the enclosure.
INSTALLING THE FLUE
The flue system used when installing the open fireplace MUST comply with the current installation standard AS/NZS 2918.
Full instructions on the installation of the flue will be supplied with the flue kit. These MUST be adhered to, including the minimum exit height from the top of the floor protector being not less than 4.6m, and the minimum exit height above the roof line of roof ridge as detailed in the AS/NZS 2918.
The flue kit is supplied with the built-in open fireplace. Note that this flue kit is different to the one supplied with the freestanding model of N900. They are not interchangeable.
The Built-in flue kit consists of:
- 5 x 900mm lengths of 8 inch stainless steel active flue
- 1 x 900mm length of 10 inch, slotted stainless steel inner casing
- 4 x 900mm lengths of 10 inch stainless steel inner casing
- 1 x 900mm length of 12 inch, slotted galvanised steel outer casing
- 4 x 900mm lengths of 12 inch galvanised steel outer casing
- 1 x stainless steel flue cowl for 8 inch flue
- 1 x angle support brackets
- Installing 8 inch active flue – the first length of 8 inch stainless steel flue inserted into the spigot of the appliance can be differentiated by the other lengths by a larger crimp and swage at one end. Install the remaining lengths of 8 inch flue as normal.
- 10 inch slotted inner casing – the first length of inner casing, resting on top of the appliance, is the slotted length, installed with the ventilation slots at the bottom. Install the remaining inner casing as normal.
- 12 inch slotted outer casing – the first length of outer casing, resting on top of the appliance, is the slotted length, installed with the ventilation slots at the bottom. Install the remaining outer casing as normal.
All other aspects of the flue kit must be installed in accordance with AS/NZS 2918.
FITTING RECEIVER FOR REMOTE CONTROL
The receiver for the remote control will be supplied packaged inside the firebox.
- Remove the packaging.
- On the rear of the appliance is a bracket protruding from the centre of the rear surface.
- Connect the two plugs from the receiver to the two plugs on the rear of the appliance.
- Locate and insert the tab on the fan receiver assembly in the slot at the bottom of the protruding bracket.
- Insert the supplied M6 screw through the hole in the top of the receiver assembly, thread the spacers over the screw, and then fasten the screw to the nutsert at the top of the bracket. Tighten until firm.

REAR VIEW OF RECEIVER INSTALLATION
POWER SUPPLY FOR FAN
It may be desirable to provide a power point in the cavity under the heater for connecting the fan in the heater. If the cavity under the heater will not be accessible once the heater is installed (such as through a removable vent) then ensure an extension cord long enough to reach out of the front of theopening is lying in the base of the cavity.
When connecting the lead from the fan to the extension cord, it is suggested to tape the connection together. This is to prevent separation if the remote receiver or fan requires removal and the lead needs to be pulled through.
MASONRY INSTALLATION
NOTE: Receiver for fan remote control must be fitted before installing the appliance. Refer to section 3.6 Fitting Receiver for Remote Control for more detail
Refer to this section for clearance requirements and vinstructions if the heater is to be in a masonry installation.
CLEARANCES TO COMBUSTIBLE MATERIALS
The dimensions given in the table and image below represent the minimum clearance (in millimetres) to combustible materials, such as a mantelpiece with columns, when installed in a non-combustible fireplace.
| Description | Clearance |
| A (Width between mantelpiece columns) | 1335 |
| B (Height to mantelpiece from hearth) | 1400 |
| C (Height to mantelpiece from appliance) | 750 |
| D (Distance to side wall) | 550 |
Note – mantelpiece clearance can be reduced by installing a heat shield beneath it in accordance with AS/NZS 2918.

FLOOR PROTECTOR (HEARTH)
The minimum dimensions and construction materials for the floor protector when installed in a masonry fireplace are the same as for a Built-In installation. Refer to section 3.4 Floor Protector (Hearth) for details.
INSTALLING THE FLUE
If the appliance is installed in a masonry fireplace with masonry chimney, the flue must be installed in accordance with AS/NZS 2918.
If the chimney is not masonry and is constructed wholly or partly from combustible material, it must be installed with the manufacturer-supplied Built-In flue kit.
Any gaps between the 8 inch active flue and the flue spigot on the appliance should be filled with either stove cement designed for this purpose or high temperature cloth tape.
INSTALLING THE FIREBOX INTERNALS
- Open spark arrestor and remove the box of bricks, grate and damper handle from inside the fireplace.
- Bricks are placed in the retainer in a vertical orientation. Angle top edge of the brick towards the back of the firebox and slot under the retainer, allowing the bottom of the brick to sit on the horizontal lower shelf.
- With the bricks installed, place the toothed grate lip in the front of the firebox with the Nectre logo on the left side facing out. Place the left and right halves of the grate into the fireplace with the front and rear edges resting on the grate lip and rear shelf respectively.
- Slide the ash tray in underneath the grate lip, pushed back as far as it will go, close the spark arrestor

TECHNICAL DRAWINGS
- FREE STANDIN

- FREE STANDING WITH BASE

- BUILT-IN / INSERT

Support
Glen Dimplex Australia Pty Ltd
8 Lakeview Drive,
Scoresby Victoria 3179
Australia
T: 1300 556 816 | F: 1800 058 900
General and Sales Enquiries: [email protected]
Technical Service: [email protected]
www.glendimplex.com.au
