Contents
MAYTAG P8SE Air Conditioner Packaged

Product Information
Specifications
- Certification: California Title 24, Part 6
- Compliance: Low Leak and FDD requirements
- Model Number: 562533 / 563209
- Package Equipment Models: 2-5T Convertible Package Units AC, HP or Gas Electric
- Form Number: 212E-0714 (New)
Installation Instructions:
Before You Begin
Inspect the economizer for shipping damage and ensure you have all the correct parts listed below:
- 1 Economizer Assembly with Filter installed
- Upper Adaptor Panels (Refer to Table 1 on Page 2)
- 1 Side Adaptor Panel
- 1 Outdoor Air Hood (Attached to Economizer)
- 1 Hardware Package
Optional Accessory Kits
- CO2 Sensor Kit, Wall Mount (920317)
- CO2 Sensor Kit, Duct Mount (920318)
- Differential Enthalpy Kit (922431)
- HP Isolation Relay Kit (for older heat pump models) (922598)
- Power Exhaust Kit (547842, 555578)
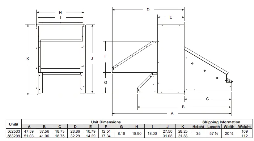
Unit Dimensions:
| Unit# | A | B | C | D |
|---|---|---|---|---|
| 562533 | 47.59 | 37.56 | 18.73 | 28.86 |
| 563209 | 51.03 | 41.06 | 18.75 | 32.29 |
Shipping Information
- Height: 35 inches
- Length: 109 inches
- Width: 112 inches
- Weight: 35 pounds
Product Usage Instructions
- Step 1: Shutdown unit and disconnect from electrical power.
Before starting the installation process, make sure to shut down the unit and disconnect it from the electrical power source to ensure safety. - Step 2: Remove the return access panel.
Using the provided screws, carefully remove the return access panel and set aside for later use. - Step 3: Install the side panel.
- Take caution not to puncture the coil tubing.
- Align the holes on the side panel with the tab on the return side of the divider wall.
- Secure the side panel in place using the provided self-tapping screw.
- Step 3a: Optional – Install additional accessory kits.
If you have purchased any optional accessory kits such as the differential enthalpy control or DCV (CO2) sensor, follow the instructions provided with the kit and refer to the product’s technical service literature for installation guidelines.
- Step 4: Install the economizer.
- Attach only the left and right side mounting screws to secure the economizer in place.
- Make sure the economizer rails sit flush on the return air opening lip.
- Use caution not to tear the insulation on the unit’s side wall or floor.
- Refer to the attached wiring diagram for proper wiring connections.
FAQ:
- Q: What certifications does this product meet?
A: This product is certified to meet California Title 24, Part 6 Low Leak and FDD requirements. - Q: Are there any optional accessory kits available for this product?
A: Yes, there are several optional accessory kits available including CO2 Sensor Kits (Wall Mount and Duct Mount), Differential Enthalpy Kit, HP Isolation Relay Kit (for older heat pump models), and Power Exhaust Kit. Please refer to the installation instructions for more information. - Q: What are the dimensions and weight of this product?
A: The dimensions and weight of the product vary depending on the model. Please refer to the specifications section for detailed information. - Q: How should I handle the installation process safely?
A: Before starting the installation, make sure to read all instructions carefully. Disconnect electrical power to the unit before servicing to avoid electrical shock. Improper installation, adjustment, alteration, service, or maintenance can cause injury or property damage. If you need assistance or additional information, consult a qualified installer or service agency.
Package Unit Modulating Economizer
Installation Instructions
- This product is certified to meet California Title 24, Part 6
- Low Leak and FDD requirements
Downflow Unit
Warning
- Recognize this symbol as an indication of Important Safety Information!
- Read all instructions prior to installation.
- Disconnect electrical power to the unit before servicing.
- Failure to do so can cause electrical shock resulting in personal injury or death.
- Improper installation, adjustment, alteration, service or maintenance can cause injury or property damage.
- Refer to this manual. For assistance or additional information consult a qualified installer or service agency.
INSTALLATION INSTRUCTION
Note
Reference Unit Technical Service Literature for application requirements.
Before You Begin:
Inspect economizer for shipping damage and correct parts with list below.
- 1 – Economizer Assembly w/ Filter installed
- Upper Adaptor Panels (See Table 1 on Page 2)
- 1 – Side Adaptor Panel
- 1 – Outdoor Air Hood (Attached to Economizer)
- 1 – Hardware Package
- 1 – Mixed Air Sensor (MAS)
- 1 – Mixed Air Sensor Wiring Harness
- 2 – 8″ Wire Tie
- 3 – #10 x 16 x ½” Self-Tapping Screws
- 13 – #10 x 16 x ½” Type A Screws
Note: For rooftop or other installations that requires the economizer to be lifted or hoisted, always lift economizer with the supplied packaging in place to prevent damage from lifting and rigging equipment.
Optional Accessory Kits
- CO2 Sensor Kit, Wall Mount (920317)
- CO2 Sensor Kit, Duct Mount (920318)
- Differential Enthalpy Kit (922431)
- HP isolation relay kit (older heat pump models) (922598) Power Exhaust Kit (547842, 555578)


- Step 1:
Shutdown unit and disconnect from electrical power. - Step 2:
Remove the return access panel. (Save screws.) - Step 3:
Using CAUTION not to puncture coil tubing, align holes and place the tab on the side panel on the return side of divider wall and secure with self-tapping screw provided.- Step 3a: (Optional)
Install differential enthalpy control and DCV (CO2) sensor according to that kit’s instructions. (See products technical service literature.)
- Step 3a: (Optional)
- Step 4:
Install economizer in unit, attaching only left and right side mounting screws. Ensure economizer rails sit flush on return air opening lip. Use CAUTION not to tear insulation on unit side wall or floor. (Use screws that were removed in Step 2.) (See wiring diagram attached.) - Step 5:
Screw side panel in place. - Step 6:
Remove economizer top pan and face panels. Locate unit economizer plug (S1) in return air compartment (top right corner). Remove jumper wire and zip tie it to economizer wiring harness. Connect economizer plug (P1) to unit plug (S1). Inspect all wiring and linkage connections for security and proper operation. Secure all loose wires with a 6” wire tie. Ensure that wires are protected from all sharp edges, inadvertent grounding, and will not become entangled with filter or moveable vanes.- Step 6a (Optional)
If installed, make sure differential enthalpy control and DCV (CO2) sensor wiring connections are made in accordance with that kit’s instructions.
- Step 6a (Optional)
- Step 7:
Remove unit blower access panel and install mixed air sensor in appropriate location (as shown in Figure 4) with two #10 Type A screws provided and then make electrical connection. Replace blower access panel. - Step 8:
Return power to unit, Setup and configure economizer.(See Appendix A on page 5) - Step 9:
Install appropriate upper close-off panel and replace face panel and top panel and secure with screws (See Table 1). Ensure all mounting screws, panels, and doors are installed.

Note to Installer
- When this economizer is used in conjunction with heat pumps, unit WHITE wire from economizer plug pin #7 MUST be relocated from defrost control board “T1” to low voltage terminal board “A1”.
- When this economizer is used with any 2-5 ton package unit (Gas/Electric, A/C, or Heat Pump) WITHOUT A COMMERCIAL THERMOSTAT, the GREEN wire from economizer plug pin #1 MUST be relocated from low voltage terminal board “G” to low voltage terminal board “R” to force dampers to remain in minimum position 100 percent of the time, while in heating mode, to meet the minimum fresh air requirements. When used in conjunction with a commercial thermostat, see Note 2 on wiring diagram.
- Some older 2-5T package heat pumps may not be equipped with a reversing valve isolation relay, required for use with economizers that have a Jade control system. Nordine kit #922598 is required for these applications.

MAINTENANCE
Return Air Filter Replacement is recommended every 30 days. (16 x 16 x 1)
- Step 1:
Remove economizer face panel and side screws of top pan. - Step 2:
Slide filters out (2) and replace with new filters. - Step 3:
Re place face panel and se cure all screws.
Fresh air filter cleaning is recommended every 3 months.
- Step 1:
Remove lower section of fresh air hood to access washable filters. (4 screws) - Step 2:
Remove filters (2) and clean with water and a mild detergent. - Step 3:
Taking note of “Air Flow Direction” marking on filter frame, reinstall the filters and fresh air filter access cover, se curing all screws.
User Interface
The user interface consists of an LCD display and a 4-button keypad on the front of the Economizer module. The LCD is a 16 character by 2 line dot matrix display.
Power Up Cycle
All setpoints and advanced settings are restored after any power loss (a power loss is assumed if voltage falls below 18 Vac). Normal operation is restored when power returns above 18 Vac.
Initial Menu Display
On initial startup, Honeywell displays on the first line and Economizer W7220 on the second line. After a brief pause, the revision of the software appears on the first line (second line is blank). It then displays W7220 on the first line and STATUS on the second line.
Keypad
The four navigation buttons illustrated in Figure 7 are used to scroll through the menus and menu items, select menu items, and to change parameter and configuration settings.
Using the Keypad with Menus
To use the keypad when working with menus:
- Press the
button to move to the previous menu. - Press the
button to move to the next menu. - Press the
button (Enter) to display the first item in the currently displayed menu. - Press the
button (Menu up) to exit a menu’s item and return to the list of menus.
Using the Keypad with Set tings and Parameters
To use the keypad when working with Setpoints, System and Advanced Settings, Checkout tests, and Alarms:
- Navigate to the desired menu.
- Press the
button (Enter) to display the first item in the currently displayed menu. - Use the
and
buttons to scroll to the desired parameter. - Press the
button (Enter) to display the value of the currently displayed item. - Press the
button to increase (change) the displayed parameter value. a - Press the
button to decrease (change) the displayed parameter value. a - Press the
button to accept the displayed value and store it in non-volatile RAM. - When the value is accepted, CHANGE STORED is displayed on the LCD.
- Press the
button (Enter) to return to the current menu parameter. - Press the
button (Menu Up /Exit) to return to the previous menu.
a When values are dis played, pressing and holding the
or
but ton causes the dis play to automatically increment.
Menu Structure
The following tables illustrate the complete hierarchy of menus and parameters for the JADE™ Economizer system.
The Menus in display order are:
- STATUS
- SETPOINTS
- SYSTEM SETUP
- ADVANCED SETUP
- CHECKOUT
- ALARMS
IMPORTANT
- Your menu parameters may be different depending on your configuration.
- For example if you do not have a DCV (CO2) sensor, then none of the DCV parameters appear and only MIN POS will display. If you have a CO2 sensor, the DCV MIN and DCV
- MAX will appear AND if you have 2 speed fan DCV MIN (high and low speed) and DCV MAX (high and low speed will appear).
SETUP AND CONFIGURATION
Before being placed into service, the JADE™ Economizer module must be setup and configured for the installed system. Use the System Setup menu, the Advanced Setup menu (if necessary), and the Setpoints menu to accomplish this.
Time-out and Screen saver
When no buttons have been pressed for 10 minutes, the LCD displays a screen saver, which cycles through the Status items. Each Status items displays in turn and cycles to the next item after 5 seconds.
STATUS MENU
| Parameter | Parameter Default Value | Parameter Range and Increments | Notes |
| ECON AVAIL | NO | YES/NO | YES = economizing available; the system can use Outdoor Air for free cooling when required. |
| ECONOMIZING | NO | YES/NO | YES = Outdoor Air being used for 1st stage cooling. |
| OCCUPIED | NO | YES/NO | YES = OCC signal received from space thermostat or unitary controller. YES = 24 Vac on terminal OCC No = 0 Vac on terminal OCC. |
| HEAT PUMP | COOL | COOL/HEAT | Displays COOL or HEAT when SYSTEM is set to heat pump (non-conventional) |
| COOLY1-IN | OFF | ON/OFF |
|
| COOL Y1-OUT | OFF | ON/OFF | Cool Stage 1 Relay Output to stage 1 mechanical cooling (Y1-OUT terminal). |
| COOL Y2-IN | OFF | ON/OFF |
|
| COOL Y2-OUT | OFF | ON/OFF | Cool Stage 2 Relay Output to mechanical cooling (Y2-OUT terminal). |
| MA TEMP | _ _._ºF | -40 to 150ºF | Displays value of measured mixed air from MAT sensor. Displays -.- if not connected, short, or out-of-range. |
| DA TEMP | _ _._ºF | -40 to 150ºF | Displays when Discharge Air Sylk Bus sensor is connected and displays measured discharge air temperature. Displays -.-°F if sensor sends invalid value, if not connected, short or out-of-range. |
| OA TEMP | _ _._ ºF | -40 to 140ºF | Displays measured value of outdoor air temperature. Displays -°F if sensor sends invalid value, if not connected, short or out-of-range. |
| OA HUM | _ _% | 0 to 100% | Displays measured value of outdoor humidity from OA Sylkbus sensor. Displays -% if not connected, short, or out-of-range. |
| RA TEMP | _ _._ºF | 0 to 140ºF | If field installed Dual Enthalpy sensor is connected, displays measured value of return air temperature. Displays -°F if sensor sends invalid value, if not connected, short or out-of-range. |
| RA HUM | _ _% | 0 to 100% | If field installed Dual Enthalpy sensor is connected, displays measured value of return air humidity. Displays -% if sensor sends invalid value, if not connected, short or out-of-range. |
| IN CO2 |
_ _ _ ppm |
“0 to 2000 (3500) ppm” | If field installed CO2 sensor is connected, displays value of measured CO2. Invalid if not connected, short or out-of-range. May be adjusted in Advanced menu by Zero offset and Span. |
| DCV STATUS | n/a | n/a | If field installed CO2 sensor is connected, displays ON if above setpoint and OFF if below setpoint. |
| DAMPER OUT | _ _% | 0 to 100% | Displays output position to the damper actuator. When used with Honeywell communicating actuator the damper out is in XX.X% |
| ACT POS. | n/a | 0 to 100% | Displays actual position of actuator. |
| ACT COUNT | n/a | 1 to 65,535 | Displays number of times actuator has cycled. 1 Cycle equals 180° of movement in any direction. |
| ACTUATOR | n/a | OK/Alarm | Displays Error on ALARM MENU if voltage or torque is below actuator range. |
| EXH1 OUT | OFF | ON/OFF | Output of EXH1 terminal. Displays ON when damper position reaches programmed percentage setpoint. ON = 24 Vac Output; OFF = No Output. |
| EXH2 OUT | OFF | ON/OFF | Output of AUX1 O terminal Displays ON when damper position reaches programmed percentage setpoint ON = 24 Vac Output, OFF = No Output; displays only if AUX1 O = EXH2 |
| ERV | OFF | ON/OFF | Output of AUX1 O terminal, ON = 24 Vac Output, OFF = No Output; displays only if AUX1 O = ERV |
| MECH COOL ON | 0 | 0, 1, or 2 | Displays number of mechanical cooling stages that are active. |
| FAN SPEED | n/a | LOW/HIGH | Displays speed of fan on a 2-speed fan unit |
| W (HEAT IN) | n/a | ON/OFF | Displays status of heat on a 2-speed fan unit. |
When values are displayed, pressing and holding the
or
button causes the display to automatically increment.
SETPOINTS MENU
| Parameter | Parameter Default Value | Parameter Range and a Increment | Notes |
| MAT SET | 53ºF | 38 to 70ºF; increment by 1 | The economizer will modulate the OA damper to maintain the mixed air temperature at the setpoint. |
| LOW T LOCK | 32ºF | -45 to 80ºF; increment by 1 | Setpoint determines outdoor temperature when the mechanical cooling cannot be turned on. Commonly referred to as the Compressor lockout. At or below the setpoint the Y1-O and Y2-O will not be energized on the controller. |
| DRYBLB SET | 63ºF | 48 to 80ºF;
increment by 1 |
Setpoint determines where the economizer will assume outdoor air temperature is good for free cooling; e.g.; at 63 ºF setpoint unit will economizer at 62 ºF and below and not economize at 64 ºF and above. There is a a 2 ºF deadland. |
| ENTH CURVE | ES3 | ES1, ES2, ES3, ES4, or ES5 | Does not display if a field installed Dual Enthalpy kit is connected. Enthalpy boundary “curves” for economizing using single enthalpy comparison between outdoor air enthalpy and setpoint. |
| DCV SET | 1100 ppm | 500 to 2000 ppm increment by 100 | Displays ONLY if field installed CO2 sensor is connected. Setpoint for Demand Control Ventilation of space. Above the setpoint, the OA dampers will modulate open to bring in additional OA to maintain a space ppm level below the setpoint. |
| MIN POS | 2.8 V | 2 to 10 Vdc | Displays ONLY if a CO2 sensor is NOT connected. |
| With 2-speed fan units MIN POS L (low speed fan) and MIN POS H (high speed fan) settings are required. Default for MIN POS L is 3.2V and MIN POS H is 2.8V | |||
| VENTMAX | 2.8 V | 2 to 10 Vdc | Displays only if a field installed CO2 sensor is connected. Used for Vbz (ventilation max cfm) setpoint. VENTMAX is the same setting as MIN POS would be if you did not have the CO2 sensor. |
| 100 to 9990 cfm increment by 10 | If OA, MA, RA and CO2 sensors are connected and DCV CAL ENABLE is set to AUTO mode, the OA dampers are controlled by CFM and displays from 100 to 9990 cfm. | ||
| 2 to 10 Vdc | With 2-speed fan units VENTMAX L (low speed fan) and VENTMAX H (high speed fan) settings are required. Default for VENTMAX L is 3.2V and VENTMAX H is 2.8V. | ||
| VENTMIN | 2.25 V | 2 to 10 Vdc | Displays only if field installed CO2 sensor is connected. Used for Va (ventilation min cfm) setpoint. This is the ventilation requirement for less than maximum occupancy of the space. |
| 100 to 9990 cfm increment by 10 | If OA, MA, RA and CO2 sensors are connected and DCV CAL ENABLE is set to AUTO mode, the OA dampers are controlled by CFM and displays from 100 to 9990 cfm. | ||
| 2 to 10 Vdc | With 2-speed fan units VENTMIN L (low speed fan) and VENTMIN H (high speed fan) settings are required. Default for VENTMIN L is 2.5V and VENTMIN H is 2.25V. | ||
| b ERV OAT SP | 32ºF | 0 to 50ºF; increment by 1 | Only when AUX1 O = ERV |
| EXH1 SET | 50% | 0 to 100%; increment by 1 | Setpoint for OA damper position when exhaust fan 1 is powered by the economizer. With 2-speed fan units Exh1 L (low speed fan) and Exh1 H (high speed fan) settings are required. Default for Exh1 L is 65% and Exh1 H is 50%. |
| EXH2 SET | 75% | 0 to 100%;
increment by 1 |
|
- a When values are displayed, pressing and holding the
or
button causes the display to automatically increment. - b ERV Operation: When in Cooling mode AND the conditions are NOT OK for economizing – the ERV terminal will be energized. In the Heating mode the ERV terminal will be
energized when the OA is below the ERV OAT setpoint in the setpoint menu.
SYSTEM SETUP MENU
| Parameter | Parameter Default Value | Parameter Range and a Increment | Notes |
| INSTALL | 01/01/2011 | Display order = MM/DD/YY. Setting order = DD, MM, then YY. | |
| UNITS DEG | ºF | ºF or ºC | Sets economizer controller in degrees Fahrenheit or Celsius. |
| EQUIPMENT | CONV | CONV HP | CONV = conventional. HP O/B = Enables Heat Pump mode. Use AUX2 I for Heat Pump input from thermostat or controller. |
| AUX2 I | N/A | Shutdown (SD) Heat (W1) HP(O)
HP(B) |
|
| FAN TYPE | 1 speed | 1 speed/
2 speed |
Sets economizer controller for operation of 1 speed or 2 speed supply fan. The controller does not control the fan but positions the OA and RA dampers to the heating or cooling mode.
NOTE: 2-speed fan option also needs Heat (W1) pro-grammid in AUX 2 In. |
| FAN CFM | 5000cfm | 100 to 15000 cfm; increment by 100 | This is the capacity of the RTU. The value is found on the label from the RTU manufacturer. The cfm of the fan is only used with DCV CAL ENABLE AUO |
| AUX1 OUT | NONE | NONE ERV EXH2 SYS |
|
| OCC | INPUT | INPUT or ALWAYS | When using a setback thermostat with occupancy out (24 Vac), the 24 Vac is input “INPUT” to the OCC terminal. If no occupancy output from the thermostat then change program to “ALWAYS” OR add a jumper from terminal R to OCC terminal. |
| FACTORY DEFAULT | NO | NO or YES | Resets all set points to factory defaults when set to YES. LCD will briefly flash YES and change to NO but all parameters will change to factory default values. |
ADVANCE SETUP MENU
| Parameter | Parameter Default Value | Parameter Range and a Increment | Notes |
| MA LO SET | 45ºF | 35 to 55ºF increment by 1º | Temp to activate Freeze Protection (close damper or modulate to MIN POS if temp falls below set value) |
| FREEZE POS | CLO | CLO MIN | Damper position when freeze protection is active (closed or MIN POS). |
| CO2 ZERO | 0 ppm | 0 to 500 ppm increment by 10 | Displays only if field installed CO2 sensor is connected. CO2 ppm level to match CO2 sensor start level. |
| CO2 SPAN | 2000 ppm | 1000 to 3000 ppm; increment by 50 | Displays only if field installed CO2 sensor is connected. CO2 ppm span to match CO2 sensor; e.g.; 500-1500 sensor output would be 500 CO2 zero and 1000 CO2 span. See note on page 6 for C7632 CO2 sensor. |
| STG3 DLY | 2.0h | 0 min, 5 min, 15 min, then 15 min intervals. Up to 4h or OFF | Delay after stage 2 for cool has been active. Turns on 2nd stage of mechanical cooling when economizer is 1st stage call and mechanical cooling is 2nd stage call. Allows three stages of cooling, 1 economizer and 2 mechanical. OFF = no Stage 3 cooling. |
| SD DMPR POS | CLO | CLO OPN | Indicates shutdown signal from space thermostat. When controller receives 24 Vac input on the SD terminal in conventional mode, the OA damper will open if programmed for OPN and OA damper will close if programmed for CLO. All other controls, e.g., Y1-O, Y2-O, EXH1, etc. will shut off. |
| DCVCAL ENA | MAN | MAN (manual) AUTO | Turns on the DCV automatic control of the dampers. Resets ventilation based on the RA, OA and MA sensor conditions. Requires all sensors (RA, OA, MA and CO2).
This operation is not operable with a 2-speed fan unit. |
| MAT T CAL | 0.0 F° | +/-2.5F° | Allows for the operator to adjust for an out of calibration mixed air temperature sensor. |
| OAS T CAL | 0.0F° | +/-2.5F° | Allows for the operator to adjust for an out of calibration outdoor air temperature sensor. |
| OAS H CAL | 0% RH | +/-10% RH | Allows for the operator to adjust for an out of calibration outdoor air humidity sensor. |
| RA T CAL | 0.0F° | +/-2.5F° | If field installed Dual Enthalpy sensor is connected, allows for the operator to adjust for an out of calibration temperature sensor. |
| RA H CAL | 0% RH | +/-10% RH | If field installed Dual Enthalpy sensor is connected, allows for the operator to adjust for an out of calibration humidity sensor. |
| DA T CAL | 0.0 F° | +/-2.5F° | Allows for the operator to adjust for an out of calibration Discharge Air Sylk Bus temperature sensor. |
| 2SP FAN DELAY | 5 Minutes | 0 to 20 minutes in 1 minute increments. | When in economizing mode this is the delay for the high speed fan to try to satisfy the call for second stage cooling before the first stage mechanical cooling is enabled. |
CHECKOUT MENU c
| Parameter | Parameter Default Value | Parameter Range and a Increment | Notes |
| DAMPER VMIN-HS | n/a | n/a | Positions damper to VMIN position |
| DAMPER VMAX-HS | n/a | n/a | Positions damper to VMAX position. |
| DAMPER VMAX-LS | With 2-speed fan units the damper will position to VMAX low speed fan. | ||
| DAMPER OPEN | n/a | n/a | Positions damper to the full open position. Exhaust fan contacts enable during the DAMPER OPEN test. Make sure you pause in this mode to allow for exhaust contacts to energize due to the delay in the system. |
| DAMPER CLOSE | n/a | n/a | Positions outside air damper to the fully closed position. |
| CONNECT Y1-O | n/a | n/a | Closes the Y1-O relay (Y1-O). See CAUTION on below |
| CONNECT Y2-O | n/a | n/a | Closes the Y2-O relay (Y2-O). See CAUTION on below |
| CONNECT AUX1-O | n/a | n/a | Energizes the AUX1-O output. If AUX1-O setting is:
|
| CONNECT EXH1 | n/a | n/a | Closes the power exhaust fan 1 relay (EXH1) |
- b When values are displayed, pressing and holding the p or q button causes the display to automatically increment.
- ERV Operation: When in Cooling mode AND the conditions are NOT OK for economizing – the ERV terminal will be energized. In the Heating mode the
- c ERV terminal will be energized when the OA is below the ERV OAT setpoint in the setpoint menu.
- After 10 minutes without a command or mode change, the controller will change to normal operation.
CHECK OUT
- Inspect all wiring connections at the Economizer module’s terminals, and verify compliance with the installation wiring diagrams.
- For checkout, review the Status of each configured parameter and perform the Checkout tests.
- Note: See “Interface Overview” on page 5. for information about menu navigation and use of the keypad.
WARNING:
- Electrical Shock Hazard.
- Can cause severe injury, death or property damage. Disconnect power supply before beginning wiring or making wiring connections, to prevent electrical shock or equipment damage.
- If any wiring changes are required, first be sure to remove power from the Economizer module before starting work. Pay particular attention to verifying the power connection (24 Vac).
Power Up
After the module is mounted and wired, apply power.
Power Up Delay
Upon power up (or after a power outage or brownout), the W7220 controller module begins a 5 minute power up delay before enabling mechanical cooling.
Power Loss (Out age or Brown out)
- All setpoints and advanced settings are restored after any power loss or interruption.
- Note: If power goes below 18 Vac, the W7220 controller module assumes a power loss and the 5 minute power up delay will become functional when power returns above 18 Vac.
- All settings are stored in non-volatile flash memory.
Status
Use the Status Menu to check the parameter values for the various devices and sensors configured.
Check out Tests
Use the Checkout Menu to test the damper operation and any configured outputs. Only items that are configured are shown in the Checkout menu.
To perform a Checkout test:
- Scroll to the desired test in the Checkout menu using the
and
buttons. - Press the
button to select the item. - RUN? appears on the display.
- Press the
button to start the test. - The unit pauses and then displays TEST RUNNING.
- Press the button
(Menu up) to end the test (e.g. turn off the relay). Test stops automatically after 10 minutes without a command or mode change, and will resume normal operation.
The checkout tests can all be performed at the time of installation or any time during the operation of the system as a test that the system is operable.
CAUTION
Equipment damage may result.
Be sure to allow enough time for compressor startup and shutdown between checkout tests so that you do not short-cycle the compressors.
ALARM MENU
| Parameter | Parameter Default Value | Parameter Range and a Increment | Notes |
| MA T SENS ERR | n/a | n/a | Alarms display only when they are active. The menu title “ALARMS (_)”includes the number of active alarms in parenthesis (). |
| CO2 SENS ERR | n/a | n/a | |
| OA T SENS ERR | n/a | n/a | |
| DA ENTHL ERR | n/a | n/a | |
| SYS ALARM | n/a | n/a | When AUX1 O is set to SYS and there is any alarm (e.g., failed sensors, etc.), the AUX1 O terminal has 24 Vac out. |
| ACT UNDER V | n/a | n/a | Voltage received by Actuator is above expected range |
| ACT OVER V | n/a | n/a | Voltage received by Actuator is below expected range |
| ACT STALLED | n/a | n/a | Actuator stopped before achieving commanded position |
a When values are displayed, pressing and holding the p or q button causes the display to automatically increment.
Alarms
- The Economizer module provides alarm messages that display on the 2-line LCD.
- NOTE: Upon power up, the module waits 60 minutes before checking for alarms. This allows time for all the configured devices (e.g. sensors, actuator) to become operational. The exception is the MA sensor which will alarm immediately.
- If one or more alarms are present and there has been no keypad activity for at least 5 minutes, the Alarms menu displays and cycles through the active alarms. You can also navigate to the Alarms menu at any time.
Clearing Alarms
Once the alarm has been identified and the cause has been removed (e.g. replaced faulty sensor), the alarm can be cleared from the display. To clear an alarm, perform the following:
- Navigate to the desired alarm.
- Press the button.
- ERASE? displays.
- Press the button.
- ALARM ERASED displays.
- Press the button (Menu Up/Exit) to complete the action and return to the previous menu.
NOTE: If an alarm still exists after you clear it, it redisplays within 5 seconds.
SEQUENCE OF OPERATION
| Dry Bulb Operation No DCV (CO2 sensor) – 1 Speed Fan. | ||||||||
| DCV | OA Good to economize? | Y1-I | Y2-I | FAN SPD | Y1-O | Y2-O | Occupied | Unoccupied |
| None | No | Off | Off | High | 0-v/Off | 0-v/Off | MIN POS | Closed |
| On | Off | High | 24-v/On | 0-v/Off | MIN POS | Closed | ||
| On | On | High | 24-v/On | 24-v/On | MIN POS | Closed | ||
| None | Yes | Off | Off | High | 0-v/Off | 0-v/Off | MIN POS | Closed |
| On | Off | High | 0-v/Off | 0-v/Off | MIN POS to Full-Open | Closed to Full-Open | ||
| On | On | High | 24-v/On | 0-v/Offa | MIN POS to Full-Open | Closed to Full-Open | ||
With stage 3 delay (STG3 DLY) in Advanced setup menu can turn on 2nd stage of mechanical cooling Y2 –O after the delay if the call for Y1-I and Y2-I have not been satisfied.
| Dry Bulb Operation With DCV (CO2 sensor) – 1 Speed Fan. | ||||||||
| DCV | OA Good to economize? | Y1-I | Y2-I | FAN SPD | Y1-O | Y2-O | Occupied | Unoccupied |
| Below CO2 set | No | Off | Off | High | 0-v/Off | 0-v/Off | VENTMIN | Closed |
| On | Off | High | 24-v/On | 0-v/Off | VENTMIN | Closed | ||
| On | On | High | 24-v/On | 24-v/On | VENTMIN | Closed | ||
| Yes | Off | Off | High | 0-v/Off | 0-v/Off | VENTMIN | Closed | |
| On | Off | High | 0-v/Off | 0-v/Off | VENTMIN to Full-Open | Closed to Full-Open | ||
| On | On | High | 24-v/On | 0-v/Offa | VENTMIN to Full-Open | Closed to Full-Open | ||
| Above CO2 set | No | Off | Off | High | 0-v/Off | 0-v/Off | VENTMIN to VENTMAX | Closed |
| On | Off | High | 24-v/On | 0-v/Off | VENTMIN to VENTMAX | Closed | ||
| On | On | High | 24-v/On | 24-v/On | VENTMIN to VENTMAX | Closed | ||
| Yes | Off | Off | High | 0-v/Off | 0-v/Off | VENTMIN to VENTMAX | Closed | |
| On | Off | High | 0-v/Off | 0-v/Off | VENTMIN to Full-Open | Closed to Full-Open | ||
| On | On | High | 24-v/On | 0-v/Offa | VENTMIN to Full-Open | Closed to Full-Open | ||
With stage 3 delay (STG3 DLY) in Advanced setup menu can turn on 2nd stage of mechanical cooling Y2 –O after the delay if the call for Y1-I and Y2-I have not been satisfied.
| Enthalpy Operation No DCV (CO2 sensor) – 1 Speed Fan. | ||||||||
| DCV | OA Good to economize? | Y1-I | Y2-I | FAN SPD | Y1-O | Y2-O | Occupied | Unoccupied |
|
None |
No |
Off | Off | High | 0-v/Off | 0-v/Off | MIN POS | Closed |
| On | Off | High | 24-v/On | 0-v/Off | MIN POS | Closed | ||
| On | On | High | 24-v/On | 24-v/On | MIN POS | Closed | ||
| None | Yes | Off | Off | High | 0-v/Off | 0-v/Off | MIN POS | Closed |
| On | Off | High | 0-v/Off | 0-v/Off | MIN POS to Full-Open | Closed to Full-Open | ||
| On | On | High | 24-v/On | a
0-v/Off |
MIN POS to Full-Open | Closed to Full-Open | ||
With stage 3 delay (STG3 DLY) in Advanced setup menu can turn on 2nd stage of mechanical cooling Y2 –O after the delay if the call for Y1-I and Y2-I have not been satisfied.
| Enthalpy Operation With DCV (CO2 sensor) – 1 Speed Fan. | ||||||||
| DCV | OA Good to economize? | Y1-I | Y2-I | FAN SPD | Y1-O | Y2-O | Occupied | Unoccupied |
|
Below set |
No | Off | Off | High | 0-v/Off | 0-v/Off | VENTMIN | Closed |
| On | Off | High | 24-v/On | 0-v/Off | VENTMIN | Closed | ||
| On | On | High | 24-v/On | 24-v/On | VENTMIN | Closed | ||
| Yes | Off | Off | High | 0-v/Off | 0-v/Off | VENTMIN | Closed | |
| On | Off | High | 0-v/Off | 0-v/Off | VENTMIN to Full-Open | Closed to Full-Open | ||
| On | On | High | 24-v/On | 0-v/Offa | VENTMIN to Full-Open | Closed to Full-Open | ||
|
Above set |
No | Off | Off | High | 0-v/Off | 0-v/Off | VENTMIN to VENTMAX | Closed |
| On | Off | High | 24-v/On | 0-v/Off | VENTMIN L to VENTMAX | Closed | ||
| On | On | High | 24-v/On | 24-v/On | VENTMIN H to VENTMAX | Closed | ||
| Yes | Off | Off | High | 0-v/Off | 0-v/Off | VENTMIN L to VENTMAX | Closed | |
| On | Off | High | 0-v/Off | 0-v/Off | VENTMIN to Full-Open | Closed to Full-Open | ||
| On | On | High | DELAY (b)
24-v/On |
a
0-v/Off |
VENTMIN to Full-Open | Closed to Full-Open | ||
With stage 3 delay (STG3 DLY) in Advanced setup menu can turn on 2nd stage of mechanical cooling Y2 –O after the delay if the call for Y1-I and Y2-I have not been satisfied.
| Dry Bulb Operation No DCV (CO2 sensor) – 2 Speed Fan. | ||||||||
| DCV | OA Good to economize? | Y1-I | Y2-I | FAN SPD | Y1-O | Y2-O | Occupied | Unoccupied |
| None | No | Off | Off | Low | 0-v/Off | 0-v/Off | MIN POS L | Closed |
| On | Off | Low | 24-v/On | 0-v/Off | MIN POS L | Closed | ||
| On | On | High | 24-v/On | 24-v/On | MIN POS H | Closed | ||
| None | Yes | Off | Off | Low | 0-v/Off | 0-v/Off | MIN POS L | Closed |
| On | Off | Low | 0-v/Off | 0-v/Off | MIN POS L to Full-Open | Closed to Full-Open | ||
| On | On | High | b DELAY 24-v/On | a 0-v/Off | MIN POS H to Full-Open | Closed to Full-Open | ||
- With stage 3 delay (STG3 DLY) in Advanced setup menu can turn on 2nd stage of mechanical cooling Y2 –O after the delay if the call for Y1-I and Y2-I
have not been satisfied. - b With 2SP FAN DELAY (Advanced Setup Menu) when in the economizing mode there is a delay for the high speed fan to try to satisfy the call for second
stage cooling by turning on the fan to high and opening the OA damper 100% before the first stage mechanical cooling is enabled.
| Dry Bulb Operation With DCV (CO2 sensor) – 2 Speed Fan. | ||||||||
| DCV | OA Good to economize? | Y1-I | Y2-I | FAN SPD | Y1-O | Y2-O | Occupied | Unoccupied |
| Below set | No | Off | Off | Low | 0-v/Off | 0-v/Off | VENTMIN L | Closed |
| On | Off | Low | 24-v/On | 0-v/Off | VENTMIN L | Closed | ||
| On | On | High | 24-v/On | 24-v/On | VENTMIN H | Closed | ||
| Yes | Off | Off | Low | 0-v/Off | 0-v/Off | VENTMIN L | Closed | |
| On | Off | Low | 0-v/Off | 0-v/Off | VENTMIN L to Full-Open | Closed to Full-Open | ||
| On | On | High | 24-v/On | 0-v/Offa | VENTMIN H to Full-Open | Closed to Full-Open | ||
| Above set | No | Off | Off | Low | 0-v/Off | 0-v/Off | VENTMIN L to VENTMAX | Closed |
| On | Off | Low | 24-v/On | 0-v/Off | VENTMIN L to VENTMAX | Closed | ||
| On | On | High | 24-v/On | 24-v/On | VENTMIN H to VENTMAX | Closed | ||
| Yes | Off | Off | Low | 0-v/Off | 0-v/Off | VENTMIN L to VENTMAX | Closed | |
| On | Off | Low | 0-v/Off | 0-v/Off | VENTMIN L to Full-Open | Closed to Full-Open | ||
| On | On | High | b DELAY 24-v/On | a
0-v/Off |
VENTMIN H to Full-Open | Closed to Full-Open | ||
- With stage 3 delay (STG3 DLY) in Advanced setup menu can turn on 2nd stage of mechanical cooling Y2 –O after the delay if the call for Y1-I and Y2-I
have not been satisfied. - b With 2SP FAN DELAY (Advanced Setup Menu) when in the economizing mode there is a delay for the high speed fan to try to satisfy the call for second
stage cooling by turning on the fan to high and opening the OA damper 100% before the first stage mechanical cooling is enabled.
| Enthalpy Operation No DCV (CO2 sensor) – 2 Speed Fan. | ||||||||
|
DCV |
OA Good to economize? |
Y1-I |
Y2-I |
FAN SPD |
Y1-O |
Y2-O |
Occupied |
Unoccupied |
|
NO CO2 SENSOR |
No |
Off | Off | Low | 0-v/Off | 0-v/Off | MIN POS L | Closed |
| On | Off | Low | 24-v/On | 0-v/Off | MIN POS L | Closed | ||
| On | On | High | 24-v/On | 24-v/On | MIN POS H | Closed | ||
|
Yes |
Off | Off | Low | 0-v/Off | 0-v/Off | MIN POS L | Closed | |
| On | Off | Low | 0-v/Off | 0-v/Off | MIN POS L to Full-Open | Closed to Full-Open | ||
|
On |
On |
High |
b
DELAY 24-v/On |
a
0-v/Off |
MIN POS H to Full-Open |
Closed to Full-Open |
||
- With stage 3 delay (STG3 DLY) in Advanced setup menu can turn on 2nd stage of mechanical cooling Y2 –O after the delay if the call for Y1-I and Y2-I
have not been satisfied. - b With 2SP FAN DELAY (Advanced Setup Menu) when in the economizing mode there is a delay for the high speed fan to try to satisfy the call for second
stage cooling by turning on the fan to high and opening the OA damper 100% before the first stage mechanical cooling is enabled.
| Dry Bulb Operation With DCV (CO2 sensor) – 2 Speed Fan. | ||||||||
| DCV | OA Good to economize? | Y1-I | Y2-I | FAN SPD | Y1-O | Y2-O | Occupied | Unoccupied |
| Below set | No | Off | Off | Low | 0-v/Off | 0-v/Off | VENTMIN L | Closed |
| On | Off | Low | 24-v/On | 0-v/Off | VENTMIN L | Closed | ||
| On | On | High | 24-v/On | 24-v/On | VENTMIN H | Closed | ||
| Yes | Off | Off | Low | 0-v/Off | 0-v/Off | VENTMIN L | Closed | |
| On | Off | Low | 0-v/Off | 0-v/Off | VENTMIN L to Full-Open | Closed to Full-Open | ||
| On | On | High | 24-v/On | 0-v/Offa | VENTMIN H to Full-Open | Closed to Full-Open | ||
| Above set | No | Off | Off | Low | 0-v/Off | 0-v/Off | VENTMIN L to VENTMAX | Closed |
| On | Off | Low | 24-v/On | 0-v/Off | VENTMIN L to VENTMAX | Closed | ||
| On | On | High | 24-v/On | 24-v/On | VENTMIN H to VENTMAX | Closed | ||
| Yes | Off | Off | Low | 0-v/Off | 0-v/Off | VENTMIN L to VENTMAX | Closed | |
| On | Off | Low | 0-v/Off | 0-v/Off | VENTMIN L to Full-Open | Closed to Full-Open | ||
| On | On | High | b
DELAY 24-v/On |
a
0-v/Off |
VENTMIN H to Full-Open | Closed to Full-Open | ||
- With stage 3 delay (STG3 DLY) in Advanced setup menu can turn on 2nd stage of mechanical cooling Y2 –O after the delay if the call for Y1-I and Y2-I
have not been satisfied. - b With 2SP FAN DELAY (Advanced Setup Menu) when in the economizing mode there is a delay for the high speed fan to try to satisfy the call for second
stage cooling by turning on the fan to high and opening the OA damper 100% before the first stage mechanical cooling is enabled.
| Single Enthalpy and Dual Enthalpy High Limit Curves | |||||||
| Enthalpy Curve | Temp.
Dry-Bulb (°F) |
Temp.
Dewpoint (°F) |
Enthalpy (btu/lb/da) | Point P1 | Point P2 | ||
| Temp. °F | Humidity %RH | Temp. °F | Humidity %RH | ||||
| ES1 | 80.0 | 60.0 | 28.0 | 80.0 | 36.8 | 66.3 | 80.1 |
| ES2 | 75.0 | 57.0 | 26.0 | 75.0 | 39.6 | 63.3 | 80.0 |
| ES3 | 70.0 | 54.0 | 24.0 | 70.0 | 42.3 | 59.7 | 81.4 |
| ES4 | 65.0 | 51.0 | 22.0 | 65.0 | 44.8 | 55.7 | 84.2 |
| ES5 | 60.0 | 48.0 | 20.0 | 60.0 | 46.9 | 51.3 | 88.5 |
| HL | 86.0 | 66.0 | 32.4 | 86.0 | 38.9 | 72.4 | 80.3 |
Enthalpy Settings
- When the OA temperature, enthalpy and dew point are below the respective setpoints, the Outdoor Air can be used for economizing. Fig. 18 shows the new single enthalpy boundaries in the W7220. There are 5 boundaries (setpoints ES1 through ES5), which are defined by dry bulb temperature, enthalpy and dew point.
- Refer to Table above for the ENTH CURVE setpoint values.
- To use enthalpy the W7220 must have a C7400S Sylkbus sensor for OA. The W7220 calculates the enthalpy and dew point using the OA temperature and humidity input from the OA sensor. When the OA temperature, OA humidity and OA dew point are all below the selected boundary, the economizer sets the economizing mode to YES, economizing is available.
- When conditions are above the selected boundary, the conditions are not good to economize and the mode is set to NO.
- Figure ## shows the 5 current boundaries. There is also a high limit boundary for differential enthalpy. The high limit boundary is ES1 when there are no stages of mechanical cooling energized and HL when a compressor stage is energized.
- The table above provides the values for each boundary limit.
Two-Speed Fan Operation
The later versions of the W7220 Jade controller have the capability to work with a system using a 2-speed supply fan The W7220 does not control the supply directly but uses the following input status to determine the speed of the supply fan and controls the OA damper to the required position.
| State | Fan Speed |
| OCC | Low |
| Y1 | Low |
| Y2 | High |
| W | High |
- The W (heating mode) is not controlled by the W7220 but it requires the status to know where to position the OA damper for minimum position for the fan speed.
- The 2 speed fan delay is available when the system is programmed for 2 speed fan (in the System Setup menu item). The 2 speed fan delay is defaulted to 5 minutes and can be changed in the Advanced Setup menu item. When the unit has a call for Y1 In and in the free cooling mode and there is a call for Y2 In, the 2-speed fan delay starts and the OA damper will modulate 100% open, the supply fan should be set to high speed by the unit controller. After the delay one of two actions will happen:
- The Y2 In call will be satisfied with the damper 100%open and fan on high speed and the call will turn off
OR - If the call for additional cooling in the space has not been satisfied then the first stage of mechanical cooling will been abled through Y1 Out or Y2 Out.

- Economizer with Sylk Bus sensors for enthalpy configuration with a Honeywell MS3103J or MS3105J communicating actuators.

| HARNESS ENDS AT P1 | COMPONENT CODE Nordyne# Honeywell# Description
|
WIRE COLOR CODE
|
Revision | Change | Date | ||
![]() ![]() |
|||||||
Notes:
|
DOWNFLOW ECONOMIZER # 562533 / 563209 PACKAGE EQUIPMENT MODELS 2-5T CONVERTIBLE PACKAGE UNITS AC, HP OR GAS ELECTRIC | ||||||
| Date: February 18, 2015 | |||||||
| Supersedes: | |||||||
| Drawn by: MGL | |||||||
| Unit #: 47-366-06 | |||||||
| Diagram#: 4736606W | |||||||
| Approved by: | |||||||


