luminii SD-3-XX-SO-15-XX Stenos Downlight
Contents
Important Instructions
Please read all instructions prior to installation and keep for future reference!
- PRODUCT TO BE INSTALLED BY A QUALIFIED ELECTRICIAN.
- USE ONLY WITH CLASS 2 POWER UNIT
- 24 VOLTS DC
- SUITABLE FOR WET LOCATIONS
- AIRTIGHT PER ASTM E283
- COVERED CEILING MOUNT ONLY
- TYPE IC, INHERENTLY PROTECTED
- FOR CANADA, VAPOR BARRIER MUST BE SUITABLE FOR 90° C
- ACCESS ABOVE CEILING REQUIRED
Retrofit Plate installation
Note: Retrofit installations are ideal for re-modeling existing ceiling structure.
- Once the desired location is determined, place the retrofit plate onto ceiling. Followed by fastening screws into the plate holes. If aligning multiple retrofit plates to a surface, use the alignment tabs as a guide to help keep things aligned.
- Using a spiral saw (cutout tool) or utility knife trace the inside rectangle shape. Followed by knocking out that section. Then remove and discard the retrofit plate.
- Run the fixture lead wires through the cutout slot, to the remote power supply. Reference power supply instruction for additional information.
- Rotate the fixture spring clips into the top position, to allow fixture to slide through the cutout slot. Followed by carefully releasing spring clips and push the fixture completely into the slot. If necessary make any surface or paint imperfection prior to installation.
Note: For WET locations add a small amount of silicone sealant all along the inside of the recessed flange.
- Rotate the fixture spring clips into the top position, to allow fixture to slide through the cutout slot. Followed by carefully releasing spring clips and push the fixture completely into the slot. If necessary make any surface or paint imperfection prior to installation.
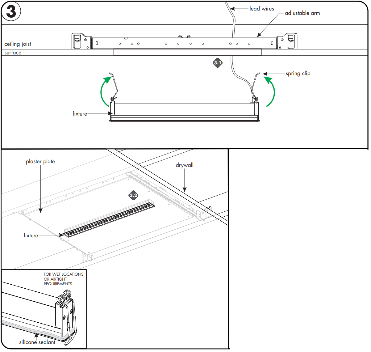
Plaster Frame Hanger Bar Plate Installation
Note: Plaster frame plate installation are ideal for new construction installs.
- Align the plaster plate adjustable arms to the ceiling joist, followed by fastening a screw to each arm. The adjustable arms can be spread apart from 16.0” to 24.0”. If aligning multiple plaster plates to a surface, use the alignment tabs as a guide to help keep things aligned.

Note: Prior to surface installation, run all remote power supply wires to the cable hook, located on the back of plaster frame plate. For easy access afterwards. - Install the 1/2” – 5/8” surface to the ceiling joist.
- Using a spiral saw (cutout tool) or utility knife cut around the plaster plate trim. Followed by knocking out that surface section.
- Run the fixture lead wires through the cutout slot, to the remote power supply. Reference power supply instruction for additional information.
- Rotate the fixture spring clips into the top position, to allow fixture to slide through the cutout slot. Followed by carefully releasing spring clips and push the fixture completely into the slot. If necessary make any surface or paint imperfection prior to installation.
Note: For WET locations add a small amount of silicone sealant all along the inside of the recessed flange.
- Rotate the fixture spring clips into the top position, to allow fixture to slide through the cutout slot. Followed by carefully releasing spring clips and push the fixture completely into the slot. If necessary make any surface or paint imperfection prior to installation.
Installing Lens Accessories
- A.1 Optional lens accessories can simple snap into fixture head to secure.
- A.2 If needed: lens accessory can be removed by inserting the flat prybar in between the endcap & the fixture head. Followed by carefully prying out the accessory.
- A.3 If needed: lens accessory can be removed by inserting the flat screwdriver in between the endcap & the fixture head.
Followed by carefully prying out the accessory

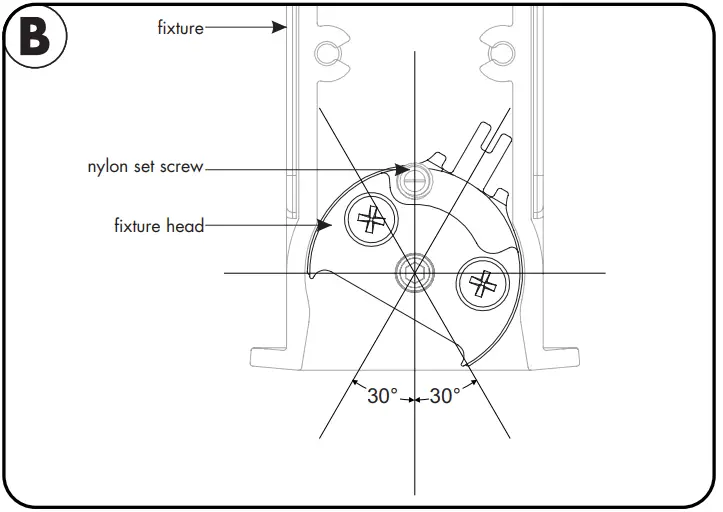
Aiming Fixture Head
- B.1 If necessary fixture head beam angle is adjustable! Carefully push on the edge of the head to either side, fixture head can rotate 30° in either direction. Once head is adjusted to the desired angle, fixture head stays in place.

Note: If fixture head locked in position slightly loosen the nylon set screws to adjust. Once beam angle is achieved, tighten nylon set screw to secure the position.
Customer Service
7777 Merrimac Ave
Niles, IL 60714
T 224.333.6033
F 224.757.7557
[email protected]
www.luminii.com
