LG RBA008K0A00 ESS Home 8 Storage System Battery

Contents
Important Information
Please read the Installation Manual carefully before installing, operating, or servicing this product.
LG ESS Home 8 requires an Internet connection and registration via the LG ThinQ® service. These conditions are mandated for important firmware updates to secure customer safety.
For the latest ESS documents and full Limited Warranty, visit: https://www.lg.com
Important Safety Instruction
IMPORTANT: This product should not be used for any purpose other than the purpose described in the installation manual.
DANGER
indicates a hazardous situation that will result in death or serious injury if the instruction is not followed.
- Do not open the door. There are no user serviceable parts inside. Service may be performed only by trained service provider.
- Risk of electric shock from energy stored in capacitor. Do not remove the door until 10 minutes after disconnecting all sources when service needed.
- Electric shock hazard. Do not touch uninsulated wires when the product cover is removed.
- Do not disconnect, disassemble, or repair to avoid injuries, electric shock or burns.
- There is a high possibility of electric shock or serious burns due to the high voltages in the ESS.
- The AC cables are high voltage. Risk of death or serious injury due to electric shock.
- This product poses potential danger such as death or serious injury by fire, high voltages, or explosion if appropriate precautions are not read, fully understood, and followed.
- Do not place or install flammable or potentially explosive objects near the product or in explosive atmospheres.
- Do not charge or discharge arbitrarily. It may lead to fault, electric shock, or burns.
- Do not damage the unit in any manner, such as by dropping, deforming, impacting, cutting, or spearing with a sharp object. It may cause electrolyte leakage or fire.
- Breakdown of the unit may cause electrolyte leakage or flammable gas generation.
- If electrolytes leak, avoid contact with eyes, skin, or clothes. In event of accidental contact, flush with water and seek medical help immediately.
- Do not place near open flame or incinerate. It may lead to fire or explosion.
- Keep the unit away from moisture or liquid. Do not touch or use the product if liquids have been spilled on it.
- Keep out of reach of children or animals.
- Electrical installations must be done in accordance with local standards, national electrical safety standards, and the manufacturer’s instructions.
- The battery system is a bidirectional source of voltage. The battery circuit breaker and inverter must both be off before working in the wiring box.
- Disconnect each circuit individually before servicing. Both AC and
DC voltage sources are terminated inside this equipment. - Do not dispose of batteries in a fire. The batteries may explode.
- Do not open or assemble while product is working
WARNING
Indicates a potentially dangerous situation. Death or serious injury may result if appropriate precautions are not taken.
- A potentially hazardous circumstance such as excessive heat or electrolyte mist may occur due to improper operating conditions, damage, misuse and/or abuse.
- The contents included in this box are the ESS and its accessories.
The total weight is very heavy. Serious injury may occur due to the weight of the package containing the ESS and accessories.
Therefore, special care must be taken in handling. Make sure to use the handle lift to deliver and install the package. - Do not open or damage batteries. Released electrolyte is harmful to the skin and eyes. It may be toxic.
- Do not place heavy objects on this product. It may cause deformation or fracture.
- Do not place any kind of objects on top of the product during operation.
- All work on the ESS must be carried out by trained service providers only.
- Electrical installations must be done in accordance with the local and national electrical safety standards.
- Wear rubber gloves and protective clothing (including protective glasses and boots) when working on the ESS.
- To reduce the risk of fire, do not connect to an AC load center (circuit breaker panel) with multiwire branch circuits connected.
CAUTION
Indicates a situation where damage or injury may occur. If it is not avoided, minor injury and/or damage to property may result.
- Before testing electrical parts inside the system, there is a minimum of a 10 minute standby period to completely discharge the system.
- Do not use any damaged, cracked, or frayed electrical cables or connectors. Protect the electrical cables from physical or mechanical abuse, such as being twisted, kinked, pinched, closed in a door, or stepped on. Periodically examine the electrical cables of your product. If the appearance indicates damage or deterioration, discontinue use of this product and have the cables replaced with an exact replacement part by a qualified personnel.
- Ensure that you connect the earth ground wire to prevent possible electric shock. Do not try to ground the product by connecting it to telephone wires, lightning rods, or gas pipes.
- Do not put the product or components in water or liquid.
- Make sure that there are no water sources, such as faucets or sprinklers, near the installation site.
- Do not block any ventilation openings. Ensure reliable operation of the product and protect it from overheating. Do not block any openings by placing objects on this product.
- The metal enclosure may heat to a high temperature during operation.
- The product must be disposed of according to local regulations.
- If the ESS is not operated for a long time, the battery may be overdischarged.
- Do not step on the product or the product package. The product may be damaged.
- Batteries may present a risk of electrical shock and high shortcircuit current. The following precautions should be observed when working on the ESS system include:
a) Remove watches, rings, and other metal objects.
b) Use tools with insulated handles.
c) Wear rubber gloves, boots, and glasses.
d) Do not lay tools or metal parts on top of the system. - In the event of fault, the system must not be restarted. Product maintenance and repairs must be performed by trained service providers.
- If a system fault occurs immediately after starting the system, check the error code on the Smart Energy Box (SE Box) display and follow the solution described in the manual.
INFO
Indicates a risk of possible damage to the product.
- This product is intended for residential use only and is not intended for use in industrial Purposes.
- The System consists of Home 8 and SE Box. They must be installed together and it will not work when installing unauthorized components to the system.
- The unit is designed to feed power to the public grid only. Do not connect the unit to a generator as connecting the power to external devices could result in serious damage to the equipment.
- LG ESS Home 8 requires an Internet connection and registration via the LG ThinQ® service. These conditions are mandated for important firmware updates to secure customer safety.
- For the latest ESS documents and full Limited Warranty, visit: https://www.lg.com
- If the S/W version is not up to date during installation, update the S/W using a FAT32 formatted USB storage device. When the SE Box is connected to Ethernet through a LAN cable after normal operation, it is automatically updated to the latest S/W version.
- Handling of batteries should be performed or supervised by a trained service provider.
- The battery does not discharge when the load is under a certain level.
- To prevent network problems, check the “Network Settings” before installation.
- Do not store or place any objects on top of or against the unit. It may cause serious malfunction or other problems.
- Never use any solvents, abrasives, or corrosive materials to clean this unit.
- Under backup operation, whether the battery SoC is higher than 90% or the ESS needs to reduce the charging power, the ESS may reduce the solar power generation.
- If the battery SoC is too low during backup operation during a power outage, the system operates as follows.
- Even though the PV system is equipped, the system will not supply power to the home load. However, the system can charge the battery from the PV system first and then supply power to the home again if the battery SoC is sufficiently charged.
- If the PV system is not equipped, the system cannot supply power to the home load and the system will go into sleep mode.
Contact
If there are any errors occurred, you can check it on Home 8 LED Indicators or HMI Display of SE Box.
Please check Error Code by referring to installation manual or user manual.
If you have any technical problems or questions, contact the installation company or LGEUS.
LG Electronics ESS Service
ATTN: Electro-Tech Services, Inc. 19481 SAN JOSE AVE. CITY OF INDUSTRY CA 91748
833-940-5010
[email protected]
Using LG ThinQ® Applications (For User)
INFO
- To use the LG ThinQ® Application, the SE Box must be connected to the Internet.
- For more information, please refer to the Installation Manual or the User Manual.
- Download ‘LG ThinQ®’ application in the Google® Play Store or Apple® App Store® on a mobile phone.
- Registering the system Create an account and sign in. > Select [Add a Device] > [Select Device] > Select [ESS Home].
- On your SE Box display, press [
] > [Settings] > [General Settings]. - Set the [Soft AP] option to [Active] state.
Installation Location

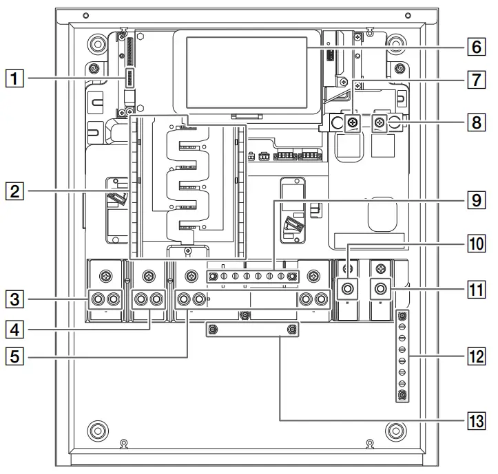
Part Names
Connection parts (Home 8)
- DIP switches
- AC power terminals (L1, Neutral, L2) (CN_GRID)
- Communication terminal block (to another Home 8) (CN_PCS)
- Communication terminal block (to the SE Box) (CN_ATS)
- Ground terminal (Protective Earth terminal, AC Power)
- Ground terminal (Protective Earth terminal, Communication)
- Battery fuse
- Battery circuit breaker

WARNING
The battery packs and harness contain high voltages. Risk of death or serious injury due to electric shock. Before working on any Home 8 wiring, make sure the Home 8 battery circuit breaker is set to OFF.

Connection Parts (SE Box)
- Communication terminal (to Home 8) (CN1000)
- Panelboard
- Backup load terminals (L1)
- Backup load terminals (L2)
- Neutral terminals for grid and load
- HMI (Human Machine Interface) display
- Grid terminal (L2)
- Grid terminal (L1)
- Neutral terminals for Home 8 and PV inverter
- Non-backup load terminals (L2)
- Non-backup load terminals (L1)
- Ground terminals for grid and load
- Ground terminals for Home 8 and PV inverter

Minimum Clearance

Floor Standing Wall Support
WARNING
- It is important to ensure that the drilling locations are not located on any electrical wiring or plumbing inside the wall.
- Align both bracket positions correctly. If the bracket positions are not correct, the Home 8 may not be mounted properly.
- The Home 8 must be installed on the floor with a wall support due to its heavy weight.
- The system must be installed according to NFPA 855.
- Place the wall bracket on a wall.
INFO
- The following images are for reference. For the safe installation the installers have to assess whether additional fixing is required
- The Weight of Home 8 is 163kg (359 lbs), and SE Box is 25 kg (55 lbs). The wall must contain blocked studs that can bear the weight or can be of masonry or other suitable structure.

- Affix the wall bracket to the wall with screws or anchors.
Align the upper and lower brackets so that they are straight vertically.

- Hang the Home 8 on the wall bracket using the lift.
Then rotate the legs to bring the Home 8 level with the floor.

- Install a conduit as needed and attach the conduit fitting to the inlet of the wiring compartment.

Mounting the SE Box
- Place the SE Box on a wall which meets every installation conditions and clearance requirement.

- Fix the SE Box with 4EA screws and anchors with O-rings in each position.
Before fastening the screws, place the supplied O-rings on the screws.

Service Equipment Preparation (If Required)
- Assemble N-GND bonding busbar on Neutral and Ground terminals.

- Install a compatible main breaker by fastening the 2 nuts.

Wiring Connection between the SE Box and Home 8
- Connect the conduit to the SE Box.
The following is an example of possible conduit installation. Depending on the site, the required conduits and the knockout position of the SE box may vary.

WARNING
- Before starting the wiring, make sure the circuit breaker of the Home 8 is OFF.
- If the circuit breaker is ON, death or serious injury may occur due to electric shock.
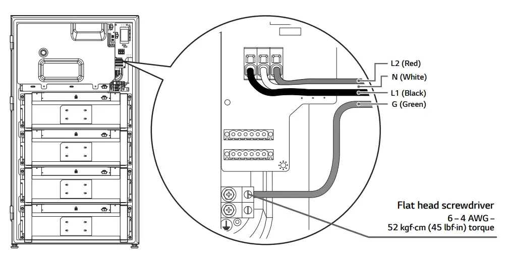
- Pass the 6-conductor communication cable and the AC power conductors through the conduit.

- Strip off the AC power conductors (L1, L2, Neutral, and Ground) on both the Home 8 and SE Box sides as shown in the figure below.

- Connect the AC conductors to the corresponding terminals and connect the AC power ground.

- On the Home 8 side, strip the 6-conductor communication cable and wind up the communication wires and drain wire using insulation tape as shown in the figure.
When taping the communication wire, wrap the remaining wire and cover it with insulation tape.
Connect the 6-conductor communication wires to the communication terminal block as shown.

- On the SE Box side, strip the 6-conductor communication cable as shown in the figure.

- Plug the green terminal block into the communication socket and Connect the drain wire to the lower ground terminal.

- Set the terminating resistor for CAN communication by using a DIP switches.

- Install a 40A circuit breaker to make an electrical connection between the Home 8 and SE Box.

- Connect the AC conductors to the corresponding terminals.

- Insert the communication wires into the 6-position connectors.

Grid and Load Connections
- Connect the grid conductors (L1, L2, Neutral, and Ground) to grid terminals.

- Connect the home load conductors (L1, L2, Neutral, and Ground) to the SE Box backup load terminals.

- Connect the non-backup load conductors (L1, L2, Neutral, and Ground) from the non-backup panel to the SE Box non-backup load terminals.

Connect to PV Inverter
- Install the circuit breaker for the PV inverter.

- Pass the PV L1 cable from the PV inverter through the 200 A CT.

- Connect CT Harness to CT and terminal block.

- Plug the terminal block into the connector and tighten the screws.

- Arrange the power cables and fasten them using a cable tie.

- Ethernet Connection

Installation Completion
- Remove the panels of SE Box safety cover on the circuit breaker installed positions and install the SE Box safety cover.

- Switch the battery circuit breaker on.

- Fasten the screws on the right side of the Home 8.

- Switch the main circuit breaker for the SE Box to the ON position and wait until the main screen appears on the HMI display. It will take about 30 seconds.
- Switch the circuit breaker for the Home 8 to the ON position.
- Switch the circuit breaker for the PV inverter to the ON position (if equipped).
- Press the POWER button and press and hold the BLACK START(6s) button for more than 6 seconds until you hear a “click.” If the SoC level is shown on the LED display of the Home 8, the booting process has been completed normally.

EnerVu Settings (Installer Only)
In a browser, visit the LG EnerVu website at https://na.enervu.lg-ess.com.
INFO
To use the EnerVu web monitoring system, the ESS system must be registered through the LG ThinQ® application first.
Wiring Diagram

- Field Wiring

- Internal Wiring

- Terminal Block

- Communication Wiring

- Protective Earth

- Connector

