Contents
Lamborghini H-2 SP -2 B Bollitori Tanks Speicher Ballons

Product Information
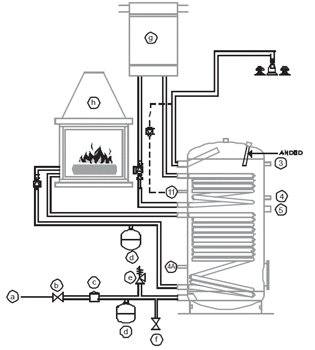
The iXwater H-2 SP-2 B is a domestic hot water system designed for residential use. It features a water exchanger with upper and lower pipe coils for efficient heat transfer. The system includes a thermometer, thermostat, and electric heater for temperature control. It has a blind connection for fasting and a cold water inlet for water supply. The maximum working pressure for the sanitary and heating functions is 10 bar.
Product Usage Instructions
- Installation and Commissioning:
- Before starting, check the hydraulic seal of the connections and hatches.
- Apply a torque of 20 Nm for handhole inside the tank.
- Dimensioning of the Expansion Tank:
- In systems with sanitary re-circulation rings, consider the volume of water in the pipes.
- Choose the appropriate size of the expansion vessel based on the minimum and maximum values provided in the table.
- Product Maintenance:
- For warranty claims, report defects within 8 days of detection using the enclosed warranty form or in writing.
This manual is an integral part of the tank and must be delivered to the installer/user together with it. The manual must be kept in a safe place near the tank. In case of transfer or sale of the tank, this user and installation manual must be transferred together with it. The user and the installer are required to read this manual carefully in order to comply with the technical instructions for safety and correct operation of the appliance. Failure to comply with the instructions below will invalidate all legal and contractual warranty rights. The installation, commissioning,maintenance and deactivation of the equipment must be performed by a qualified technician qualified for the profession. Correct installation and periodic maintenance interventions guarantee a long life for the storage tank.
DIAGRAM

| N° | CONNECTOR TYPE | MODEL | |
| 300 ÷500 | 800 | ||
| 1 | Domestic hot water outlet | 1″ | 1″1/2 |
| 2 | Anode | 1”1/4 | 1”1/2 |
| 3 | Thermometer -Feeler | 1/2” | 1/2” |
| 4 | Thermostat | 1/2″ | 1/2″ |
| 5 | Thermostat | 1/2″ | 1/2″ |
| 6 | Blind connection for fasting | 1/2” | 1/2” |
| 7 | Cold water inlet | 1” | 1”1/4 |
| 8 | Lower water exchanger outlet | 1” | 1”1/4 |
| 9 | Water exchanger inlet | 1” | 1”1/4 |
| 10 | upper pipe coil outlet | 1″ | 1″1/4 |
| 11 | Re-circulation | 1/2” | 1” |
| 12 | upper pipe coil inlet | 1″ | 1″1/4 |
| 13 | Domestic hot water inlet | 1″ | 1″1/4 |
| 14 | Electric heater | 1” 1/2 <-> Ø180 | 1” 1/2 <-> Ø180 |
INSTALLATION INSTRUCTIONS, COMMISSIONING AND MAINTENANCE
What follows is determinant for the warranty validity.
- The installation and commissioning must:
- Be executed by a qualified installer.
- Be provided, where necessary, with a pressure water reducing in entrance.
- Be provided with a safety valve according to the technical datas of the boiler.
- Provide expansion vessels connected at a maximum distance of one meter from the tank (see the measuring board of the expansion vessel) proportioned to the boiler’s dimensions (the size shall be checked by an expert).
- Provide washing of the lines before commissioning, any impurities or processing chips present in the hydraulic system can cause corrosion and permanently contaminate the tank.
- Be provided with filters upstream of the tank to avoid the deposit of heavy particles or processing residues inside the tank.
- Before starting, check the hydraulic seal of the connections and hatches. Apply a torque of 20 Nm for handhole hatches and 40 Nm for manhole to the hatch screws. If some leakage occurs check the assembly of the expansion vessels.
- Install the boiler in a technical room providing suitable drainage in case of possible liquid leaks from the tank.
- Do not switch on any heat source connected to the tank until it is guaranteed to fill it completely.
- In case of use on the system of materials other than those of the tank, provide for the dielectrical insulation of the different parts. The equipotential ground connection must be made both for the tank and for the pipes connected to it and must be suitably checked in compliance with the regulations in force.
- Make sure and arrange that, for the purpose of preventing contamination of the domestic water and altering the anti-freezing mixture of the solar circuits, the pressure of the exchanger is always lower than the pressure of the accumulation, also through automatic control of the differential pressure between the circuits primary and secondary.
- In case of danger of freezing, the tank and the exchanger must be heated or completely emptied. Even if the tank is not used for a long time, empty the tank, in fact the prolonged stagnation of water in the tank favors internal corrosion and the proliferation of bacteria and microorganisms.
- The temperature of the boiler inside must always be under 95°C (70°/80°C for the SMALVER/SMALTECH models).
- In order to avoid corrosion, the anodes must be inspected after each 12 months. However, where the water is particularly aggressive, the inspections must be done each 6 months; if the anode diameter in any section is less than 22 mm, it must be replaced, if covered with limestone is to be cleaned.
- The water Langelier Index at the operating temperature, must range from “0” to “+0,4”, hardness within 10°F and 20°F, maximum concentration of chlorides 70 mg/l, minimum conductivity 150 microS/cm.
DIMENSIONING OF THE EXPANSION TANK
In equipments with sanitary re-circulation rings the volume of the water in the pipes is to be taken into account.


The tanks are produced according to the basic EEC Directives 2014/68/UE (P.E.D.) for the pressure equipments, as in the art. 4.3.

- Aqueduct
- Check valve
- Pressure reduction
- Expansion tank
- Safety valve
- Drain cock
- Heat pump

- Aqueduct
- Check valve
- Pressure reduction
- Expansion tank
- Safety valve
- Drain cock
- Heat pump
- Thermo fireplace
The costruction’s company guarantees his own products which are supplied with identification code. Claims for faults must happen in 8 days in writing or through the guarantee-card, with the approval by our point of sale. In case of contestations, after our examination of the defect and their causes, the guarantee consists in the repairing by loco or in the substitution of the product, free of freight-charge, upon restitution of the item with manufacturing defect. The installation costs are excluded, except specific agreements.
The guarantee is subjected to the following conditions:
- Claims must happen before the manufacture to complement or assignment to a third party.
- Installation of water-heating must be made from qualified firm/installer, furthermore the plant has to be equipped with safety valve and suitable expansion vessel. The points listed in the Installation,Commissioning and Maintenance Instructions must be observed.
- Water-heaters by Smalglass or Smalver are subjected to use and maintenance as normally required, temperature and pressure working must be strictly observed, examination and replacement of magnesium anode (best every 6 months), Langelier water index between 0 and +0,4, hardness within 10°F and 20°F, maximum concentration of chlorides 70 mg/l, minimum conductivity 150 microS/cm.
From the guarantee are excluded damages due through:
- Faulty montage, making ready for use out of specification or improper use of water-heater.
- Defects caused from no force majeure (impact in case of montage or in building site or by conveyance).
- Intake of parcels, that are rest of material of montage, or damages caused from no controlled and no closed gaskets.
- The carbon steel tanks are supplied externally painted for aesthetic purposes only, any irregularities, cracks or detachment of parts of the paint are not to be attributed to processing defects but are caused by surface alterations due to the high temperature processing of the tanks themselves (enamelling in the oven, pickling, welding, etc.). These superficial aspects in no way affect the duration and functionality of the tank which remains fully guaranteed by the manufacturer. Therefore, requests for replacement or compensation relating to this aspect are not accepted.
- Insulation damage detected after boiler installation.
- Rust or humidity on the threads of the connections are natural phenomena that do not alter the functionality of the same, it will be the installer who, if he deems it appropriate, will be able to clean the threads before making the joints.
- The complaints don’t entitle deduction of purchase price or a part of it or for compensation with other requires.
We exercise the right to reject requires of guarantees if buyer doesn’t respect the obligation of current payments. Further requires of compensation, in special way for directs and indirect damages to people or things, can’t be acknowledged.
DIRECTIVE PARAMETERS 2009/125/CE , Reg. UE 2017-1369 – EN 12897
Lamborghini Caloreclima – www.lamborghinicalor.it – è un marchio commerciale di
FERROLI S.p.A. – Via Ritonda 78/a – 37047 San Bonifacio (Verona) Italy – tel. +39.045.6139411 – fax. +39.045.6100933 – www.ferroli.com
