Contents
HAFELE 538.66.507 Built-In Gas Hob
Product Information
Built-in Gas Hob
Products Applied: 538.66.507, 538.66.477
Contents
- Important Notes and Precautions for Use
- Description of the Appliance
- Instructions for the User: Use Presentation Notes on Safety Gas Burners
- Instructions for the User: Cleaning and Maintenance
- What to Do If
- Instructions for the Installer Technical Information Installation Gas Connection Maintenance
Important Notes and Precautions for Use
To use any kind of electrical appliance, there are a few basic rules that must be followed:
- Do not tamper with the appliance. Qualified personnel must do all repairs or settings.
- If the appliance is out of order or is not going to be used anymore, it must be rendered useless by eliminating hazardous parts.
Description of the Appliance

- Burner
- Glass top
- Control knob
- Pan support
Instructions for the User: Use Presentation
The burners are graduated in their size and rating to provide the exact heat required for every style of cooking. The burners can be equipped with Flame Safety Device (FSD = Thermocouple). On the top of each knob, there is a printed diagram showing to which burner or heating element it refers.
GENERAL NOTES ON SAFETY
- When the burners or plates are in use do not leave them unattended and make sure there are no small children in the vicinity. Check that panhandles are positioned correctly and always keep an eye on the pan whenever oils or fats are used as they are easily inflammable.
- Do not use spray cans near the appliance when it is in use.
- If the built-in hob has a lid, before opening the lid remove any food deposits from its surface.
- If the built-in hob has a crystal glass lid, it can explode if heated. Turn in “Off” position all the burners (full disk symbol on the control panel) and switch off all plates; let the hob become cool before closing the lid.
- If you see any cracks on the surface of the plate, disconnect the appliance from the mains immediately.
- After you have used the appliance make sure that all the controls are in “Off” position (full disk symbol on the control panel)

General Notes on Safety
- When the burners or plates are in use, do not leave them unattended and make sure there are no small children in the vicinity.
- Check that panhandles are positioned correctly and always keep an eye on the pan whenever oils or fats are used as they are easily inflammable.
- Do not use spray cans near the appliance when it is in use.
- If the built-in hob has a lid, before opening the lid, remove any food deposits from its surface.
- If you see any cracks on the surface of the plate, disconnect the appliance from the mains immediately.
Gas Burners
Manual Ignition
- Turn the control knob to the position corresponding to the big flame.
- Place a lighted match close to the burner.
- After ignition, turn the control knob to the desired flame size.
Automatic Electrical Ignition (only certain versions)
The command of lighting is integrated into the control knob.
- Press and turn anticlockwise the control knob to ignite the burner.
The lighting of Burners Equipped with Safety Thermocouples (only certain versions)
In case burners are fitted with Flame Safety Device (FSD = Thermocouple), repeat the following steps:
- Turn the control knob to the position corresponding to the big flame.
- Press and hold the control knob for about 10 seconds to allow the Flame Safety Device (FSD = Thermocouple) to warm up.
- If, at the end of this time, the burner fails to ignite, repeat the operation.
Optimum Use of the Burners
To get the maximum yield with the minimum consumption of gas, keep the following points in mind:
- Use the appropriate burner size for your cooking needs.
- Ensure proper pan positioning on the burner.
- Keep the burners and pan supports clean and free from food debris.

INSTRUCTIONS FOR THE USER: CLEANING AND MAINTENANCE
Prior to any maintenance work or cleaning, disconnect the appliance from the electricity mains. HOB
The surface of the hob, pan supports, enameled burner caps (C) and burner heads (T) (see fig. 1) need to be cleaned after each time
they are used with warm soapy water, rinsed and then dried well to keep them in good condition.
Never clean when the top and components are still warm. Do not use metal or abrasive pads, abrasive powders or corrosive spray
products. Never leave vinegar, coffee, milk, salty water, lemon or tomato juice for any length of time on the surfaces.
WARNING: Accessible parts may be hot, when the pan support is in use. Young children should be kept away. Comply with the following instructions, before remounting the parts:
- Check that the heads burners and the relative burner caps, are correctly positioned in their housings (see fig. 1).
- Check that burner head slots have not become clogged by foreign bodies.
- If to happened installation or after a few times, you find a tap is difficult to open or close do not force it but call for technical assistance urgently.
- After use, to keep them in good condition, the plates should be treated with specific products, easily found in the shops, to keep the surfaces clean and shining. This will also prevent rust from forming.
- if any liquid spills over it must always be removed with a sponge.
WHAT TO DO IF
Some of the problems can be caused by simple maintenance operations or something that was forgotten and can easily be resolved without having to call for technical assistance.
If your appliance is not working efficiently:
- Make sure the gas cock is open.
- Check that the knobs are set correctly for cooking and then repeat the operations given in the Instruction Manual.
- Check the electrical system safety switches (RCD). If there is failure in the system call an electrician.
INSTRUCTIONS FOR THE INSTALLER
TECHNICAL INFORMATION
- The installation, adjustments, conversions and maintenance listed in this part must only be carried out by qualified. The manufacturer cannot be held responsible for any damage to persons or things deriving from an incorrect installation of the appliance.
- The safety and adjustment devices of the appliances may, during their life, only be modified by the manufacturer or duly authorized supplier.
- All-gas appliances can be installed as “Class 3” (fitted) in compliance with gas Standards only.
- Any side walls (one only left or right) that overcome in height the worktop, have to be 50 mm far at least.
- The adhesive used to join the laminated plastic to the piece of furniture must be able to with- stand a temperature of at least 150°C, so the laminated plastic will not come unstuck.
- The installation of all-gas appliances must comply with the National Rules in force.
- This appliance is not connected to a flue for the discharge of the combustion products; therefore, it must be connected in compliance with the above-mentioned installation rules. Particular atten- tion must be paid to the instructions given below for ventilation and aeration
INSTALLATION OF VENTILATING THE ROOMS
The room where the appliance is installed must be permanently ventilated so as to guarantee correct functioning according to the National Rules in force. The quantity of air needed is re-quired for regular combustion of the gas and for the ventilation of the room and whose volume must be no less than 20 m3. The natural flow of air must be direct through permanent openings in the walls (that go through to the outside) of the room to be ventilated with a minimum cross free section of 100cm2 for appliances fitted with the Flame Safety Device (FSD) on each burner (see fig. 4). These openings must be positioned so they cannot be never obstructed. If the appliance is not fitted with the Flame Safety Device (FSD) on each burner, the cross-free section shall be not less than 200cm2 Indirect ventilation is also allowed by taking air from rooms adjacent to the one to be ventilated, strictly complying with the prescriptions of the National Rules in force.
VENTILATING THE CABINET DOOR
- The total area of cabinet holes shall not be less than 80 square centimeters.
- The gas appliance should have a distance of more than 150 mm away from surrounding combustible materials.
- If another appliance (e.g. dishwasher, washer) is to be installed under the gas appliance, keep a clearance of at least 100 mm rom the bottom of the gas appliance. f the installation instruction of the appliance underneath requires a different distance, adopt the larger value.
- Reserve a distance of not less than 650 mm between the gas appliance and rangehood.
- Gas hob product will be installed in cabinet door with grille for air circulation. Pls kindly take noted can not use solid door for avoiding gas hob cannot operate properly due to lack of air for combustion.

LOCATION AND AERATION
Gas appliances must always discharge the products of combustion through extractors connected to flues or directly to the outside (see fig. 5). If it iS impossible to use an extractor, a fan installed on the window or on a wall facing the outside is allowed and should be switched on each time the appliance is used (see fig. 6), provided the rules and regulations in force relating to ventilation 
UNPACKING THE APPLIANCE
Once the outer wrapping and the inner wrappings of the various parts have been removed, check and make sure that the appliance is in perfect condition. If you have any doubts do not use the appliance and call your nearest Assistance Centre. Some parts are mounted on the appliance and protected by a plastic film. This protective film must be removed before ever the appliance is used. We recommend slitting the plastic film along the edges with a sharp knife or pin
The packaging materials used (cardboard, bags, polystyrene foam, nails …) should not be left anywhere within easy reach of children as the are a potential hazard source.
INSTALLING AND FIXING THE HOB
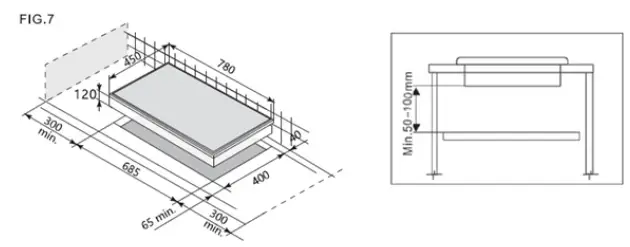
The measurements of the cavity made in the top of the modular cabinet and into which the hob will be recessed are indicated in fig. 7. Cupboards or hoods have to maintain at least a distance of 750 mm from the top 
Under the hob it is necessary to always apply a panel of separation in wood, positioned to a least distance of 50-1000 mm by the bottom of the same, which has to easily be removable to allow possible operations of maintenance (see fig. 8).
The hob has a special seal that prevents liquid from infiltrating into the cabinet. Strictly comply with the following instructions in order to correctly apply this seal:.
- Evenly and securely fix the seal to the hob, pressing it in place with the fingers.
- Remove the strip of protective paper from the seal, and set this onto the glass edge

GAS CONNECTION
Before to connect the appliance to the gas network, check that the adjustment sticker data plate, put on the bottom of the appliance, corresponds to the available one in the gas network.
The adjustment sticker data plate, gives all the appliance’s setting conditions as: gas type and gas operating pressures. Once installed, check there are no leaks using a soapy solution only. Never use a flame! It is forbidden!
The appliance’s gas inlet fitting is a G ½ male threaded cylindrical gas type in accordance with the Standard ISO 228-1. When gas is distributed through ducts the appliance must be connected- ed to the gas mains with:
- Flexible stainless steel, seamless pipe in accordance with the National Rules in force, with a maximum 2 meters extension and seals in accordance with the National Rules in force. N.B.:
Make sure that the pipe, once the appliance is installed, does not come into contact with the mobile parts of the unit in which the hob is built-in (like drawers for instance), get squashed or is too ben - A copper pipe in accordance with the National Rules in force, whose joints must be made using sealed fittings in accordance with the National Rules in force
When gas is supplied directly from a gas cylinder, the appliance, supplied by a pressure regulator in accordance with Standard EN 12864, must be connected: - With flexible stainless steel, seamless pipes in accordance with the National Rules in force with a maximum 2 meters extension and seals in accordance with National Rules in force. N.B.:
Make sure that the pipe does not come into contact with the mobile parts of the unit in which the hob is built-in (like drawers for instance), get squashed or is too bent. We recommend at-teaching the special adapter to the flexible pipe, easily found on the market, to facilitate connection to the pressure regulator’s hose fitting on the cylinder.
Anyway, the pipe connecting the appliance with the gas mains should lie with smooth bends and the rubber gasket prevents leakage added by user between the appliance’s gas inlet fitting and the pipe connection must comply with Standard EN 549 (get it in proper Technical
Assistance Centres or authorized dealers).
MAINTENANCE
REPLACING COMPONENTS
To replace other gas and electrical components, that are lodged inside the hob, it is enough to remove the worktop and unscrew the fixing screws of the burners
Replace the seal each time you change a tap in order to guarantee a perfect tightness be- tween body and rail.

