F-ROOF
SLATE ROOF MOUNTING SYSTEM
INSTALLATION GUIDE
Contents
F-ROOF Slate Roof Mounting System

Natural & Aitificial Slate
INSTALLATION GUIDE
Allow a maximum of 1.2m between tile brackets depending on site conditions.
6.3*100mm wooden screw with the washer
Top:
Bottom:
EDPM Washer CT! Sealant
RAFTER PSN CENTRAL
Sealed with CT1. See above

Pre drill the base plate with a 7mm drill.
Pre drill the slate covering with a 10mm drill.
Apply CT1 Sealant to the 7mm holes, bottom of the base.
Ensure slate surface is clean of dirt, dust, alge and moss etc.
Apply CT! Sealant. po Not USE ANY OTHER SEALANT
SCREW/ COLLAR SPACER INSTALLATION
Prevents pressure being applied by the screw fixing to the tile/slate covering 
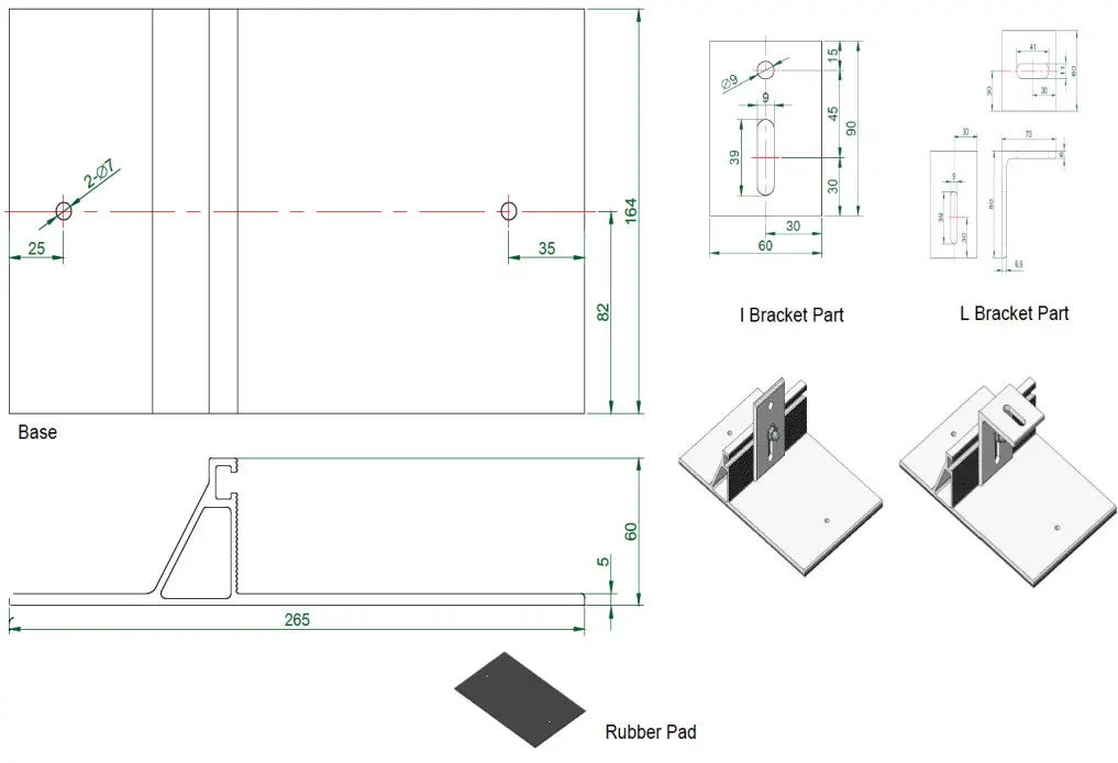
DRAWING AND BOM OF A-SLATE AS FOLLOW:

| BOM | |||
| Name | Spec | Material | QtY |
| Base | 164*265*60mm | Material Aluminum 6005-15 | 1 pcs |
| L- Bracket | 60*70*80mm | Aluminum 6005-15 | 1 pcs |
| Rubber Pad | 164*265mm | EPDM | 1 pcs |
| Screw | St6.3*100 | Steel 10B21 | 2 pcs |
THE INFORMATION OF SPACER AS FOLLOWS:
10mm X 8.2mm X 20mm Spacers – Black Nylon Technical Specification

| Finish | Black |
| Inside diameter (B) | 8.2mm |
| Length (1.) | 20mm |
| Manufacturing Standard | Not Standardised |
| Material | Nylon |
| Material Specification | UL94 HB Nylon 6,25% Glass Filled PMS-173 |
| Metric or Imperial? | Metric |
| Outside Diameter (D) | 10mm |

PROCEED WITH INSTALL OF A-SLATE AS FOLLOWS:
After locating the battens, B1 & B2 and rafter R positions. Mark the test hole position X as shown, away from the battens B1 and B2
- Drill out a 7mm test ho Using a screw driver, gently. confirm the rafters central position.

- Place aluminum bases in the fixing position as shown. Hold and drill through the 2 marked fixing points X using a 7mm tile drill enough to mark the slate surfaces.

- Drill out the two marked fixing hole positions with a 7 mm drill.

- Drill out the 7mm fixing holes to 10mm. Not the test hole.

- Apply CT1 sealant into and around the fixing holes and test hole

- Insert spacers supplied intoboth fixing holes to be the level with the slates surface.

- Apply CT1 sealant around the bottom of two fixing holes of thealuminum bases.

- Put the rubber pad under the aluminum bases and fix the aluminum brackets into place using 2 x 6.3*100mm wooden screw, then Apply CT1 sealant around the top of 2 wooden screws again.
