CHAPTER 500 Installation of Stormwater Facilities
Contents
Storm Sewer Pipe and Open Culvert Installation
- Introduction
Storm sewer pipes and open culverts shall be laid to the lines and grade shown on the approved construction drawings, unless otherwise approved by the Department.
The design plans and specifications submitted to the BNS for issuance of a stormwater permit shall include a detailed trench drawing showing placement of the storm sewer pipe or open culvert within the trench, trench walls, type and depth of bedding and backfill materials, and compaction levels in conformance with those guidelines set forth herein.
The standard proctor density referenced herein is intended to mean the maximum dry density of a backfill material as determined by those methods set forth within ASTM D 698. The percent standard proctor density refers to a ratio of the in-place dry density of a backfill material, determined by those methods set forth within ASTM D 1556, to the maximum dry density, determined by Test Method 698. The resulting quotient must be multiplied by one hundred (100), and the value obtained must meet or exceed those minimum values specified herein. - Point of Commencement and Direction of Laying
The point of commencement for laying of storm sewer pipe, open culverts, and subsurface drainage tiles should be the lowest point in the proposed line. Provisions for beginning construction at other than the lowest point in the proposed line shall be approved by the design consultant. All bell and spigot pipe shall be laid with the bell end, or with the receiving groove end of tongue and groove pipe pointing upgrade.
Each pipe shall be laid on an even firm bed throughout its length, so that no uneven strain will come to any single portion of the conduit. All bells of bell and spigot pipes shall be carefully placed into a receiving hole excavated into the pipe bedding material to prevent the total load from bearing on the pipe sockets.
All pipes shall be properly joined, utilizing the manufacturer’s assembly marks, if provided. Adequate pressure shall be applied to the center of each bell and spigot pipe to ensure the proper joint seal is achieved. - Establishment of Line and Grade
A professional engineer or land surveyor registered in the State of Indiana will be required to set, or oversee the setting of, all bench mark stakes necessary for storm sewer pipe, open culvert, manhole, and subsurface drainage tile installation. Bench marks shall be set in strategic locations within the project to facilitate the installation of grade stakes. Horizontal and vertical control of storm sewer pipe structures, open culverts, manholes, and precast box inlets will be required to be provided with record drawings to be submitted to BNS (private projects) or DPW (public projects) upon completion of the project.
The accepted method of establishing and following line and grade in conformance with the approved construction plans may be determined by the Contractor. - Jetting or Flooding of Backfill
Jetting or flooding of the backfill shall not be used without the approval of the DPW, or the INDOT, as jurisdiction allows. - Multiple Pipe Installations and Skewed Culverts
When two or more conduits are to be installed in parallel lines, the following minimum spacings for pipe, pipe-arch, and arches must be provided between the outer most portion of the pipe walls:Pipe Pipe-Arches Arches Diameter (inches) Spacing (inches) Span (inches) Spacing (inches) Spacing (feet) Up to 24 12 Up to 36 12 2 24 to 72 1/2 Pipe O.D. 36 to 108 1/3 Span Over 72 36 108 to 189 36 Open culverts of seventy-two (72) inch diameter and larger placed at a skew of greater than fifteen (15) degrees must have the surrounding embankment contoured to provide side support along the total length of the pipe structure.
- Steep Slope Applications
Use of flange bolted ductile iron pipe, reinforced concrete pipe with poured-in-place concrete anchors (1 per pipe section), or banded corrugated metal pipe with poured-in-place concrete anchors (1 per pipe section) shall be required on those slopes greater than fifteen (15) percent to prevent joint separations and consequent system failures. Due to the potential abrasive forces of flow within systems possessing fifteen (15) percent or greater slopes, corrugated metal pipes and pipe-arches used in these applications shall possess a minimum metal thickness of one hundred and nine thousandths (0.109) inches (12 gage), in addition to the required bituminous coating and invert paving specified within Chapter 400 of this Manual. - Material Handling
Suitable tools and equipment shall be used for the safe and convenient handling and installation of all stormwater facilities. All pipe shall be unloaded with care. Corrugated metal pipe shall not be rolled or dragged over gravel or rock and shall be prevented from striking or resting upon rock or other hard objects during installation. Great care must be taken to prevent pipe coatings or wrappings from being damaged. Each section of pipe shall be carefully examined for cracks and other defects prior to installation. Pipe or fittings found to be cracked, broken, or otherwise defective either before, during, or after installation, shall be removed and replaced with sound material.
All pipes, gaskets, and other fittings shall be thoroughly cleaned prior to installation. Failure to properly clean construction materials and appurtenances during all phases of installation and acceptance may result in a faulty completed system which will require replacement.
No portion of a storm sewer pipe, open culvert, manhole, inlet, or subsurface tile system may be installed indirectly onto frozen ground or with frozen backfill material. - Minimum Construction Cover
The minimum pipe cover shall be in compliance with Section 700 of the Indiana Department of Transportation Standard Specifications or the manufacturer’s minimum cover requirements. The more stringent requirement shall apply. - Trench Box Pulling and Sheeting
Until a minimum of four (4) feet of compacted fill material has been placed over installed storm sewer pipe or open culvert sections, the contractor shall not use heavy equipment in such a way as to cause damage to these structures.
When required by the Occupational Safety and Health Act (OSHA) to protect life, property, or the work, sufficient protective measures shall be utilized in accordance with CFR 1926. Upon completion of the work, all temporary forms, shores, and bracing, other than as specified herein, shall be removed. The minimum required density of structural backfill shall not be reduced during trench box pulling. All voids left by the removal of sheeting shall be carefully filled with properly compacted bedding material.
Any damage to pavement or other structures due to sheeting, shoring, or bracing shall be repaired by the Contractor at their own expense. Neither the City of Indianapolis, nor any agent thereof, shall assume any liability for the actions of the developer, or their agent(s), in the performance of the required sheeting, shoring and bracing operations.
Sheeting and bracing, which is to remain in place, shall be cut off at an elevation of one and one half (1.5) feet above the top of the storm sewer pipe or open culvert. - Trench Dewatering
Where groundwater is encountered, the Contractor shall make every effort necessary to secure a dry trench bottom prior to installation of the stormwater facility in conformance with Section 715 of the Indiana Department of Transportation Standard Specifications. The Contractor shall provide, install, and operate sufficient trenches, sumps, pumps, hoses, piping, wellpoints or other means necessary to depress and maintain the groundwater level below the base of the excavation.
The Contractor shall be responsible for diverting or removing surface runoff and other accumulations of surface water from excavations. The City will not assume any liability for the actions of the developer, or his agent(s), in the performance of the required dewatering operations. If pipe structures cannot be installed under trench conditions as outlined herein, all installation activities shall be terminated until acceptable conditions can be achieved. BNS shall reserve the right to terminate installation activities under those trench conditions which are not in conformance with this Manual.
Under no circumstances shall surface water and/or groundwater be discharged to, disposed of, or allowed to flow into the sanitary sewer system without approval from CEG. Discharges of excavation groundwater or incident surface water shall be in compliance with all federal, state and local requirements - Abandoned Sewers
Stormwater conduits that are to be abandoned shall be bulkheaded with mortar and an eight (8) inch thick solid concrete brick wall. Stormwater conduits and appurtenant structures that are to be abandoned in place shall also be filled with sand or Cellular Concrete and plugged, unless otherwise indicated on the approved construction plans. Abandonment of sanitary and combined sewer conduits shall be in compliance with CEG standards.
No timber bulkheads shall be allowed. Unless otherwise specified, all abandoned manholes, catch basins and inlets shall be removed to a depth of three (3) feet below the proposed or established ground elevation, or existing street grade, whichever is lower. - Trench Installations
For trench installations, the supporting soil beneath the pipe structure shall be defined as the foundation material. The pipe bedding is that portion of the backfill material which is shaped to contact the sides and bottom of the conduit, to prevent lateral displacement, and for establishment of design grades. Initial backfill shall be defined as that material placed from the pipe springline (one half (½) the outside vertical pipe height) to twelve (12) inches over the crown of the pipe. Regular backfill shall be that material placed from the initial backfill to the ground or road surface.
Bedding and backfill material classes referenced within this Chapter shall be defined as follows: Class I Angular, six to forty (6-40) millimeters (1/4 to 1 ½ inch) graded stone such as Indiana Department of Transportation (INDOT) Classification #5, #8, #9, and #53 Stone. A No. 8 gravel possessing a minimum fifty percent (50%) mechanical crush count, and meeting the following nominal sizes and percentages will be considered an equivalent Class I material: one hundred percent (100%) passing one (1) inch sieve; seventy-five to ninety-five percent (75-95%) passing three quarters (3/4) inch sieve; forty to seventy percent (40-70%) passing one half (½) of an inch sieve; and zero to fifteen percent (0-15%) passing No. 4 sieve.
Class II Coarse sands and gravel-sand mixtures with a maximum particle size of forty (40) millimeters (one and one half (1-1/2) inches), including variously graded sands and gravels containing small percentages of fines, generally granular and non-cohesive, either wet or dry. Soil types GW, GP, SW and SP are included in this class. Indiana Department of Transportation (INDOT) Classification for “B” borrow material.
Class III Fine sand and clay gravels, including fine sands, sand-clay mixtures and gravel-clay mixtures. Soil types GM, GC, SM and SC (as defined in ASTM D 2487) are included in this class. These materials will not be accepted as pipe bedding.
Class IV Silt, silty clays and clays, including organic clays and silts of medium to high plasticity and liquid limits. Soil types MH, ML, CH and CL (as defined in ASTM D 2487) are included in this class. These materials will not be accepted as pipe bedding.
These materials shall be utilized for installation of stormwater facilities in accordance with and in the manner specified by this Chapter.
Whenever pipe trenches are inadvertently excavated below the designed bedding bottom, the Contractor shall fill the over-excavated area with Class I or Class II granular bedding material, compacted and shaped to form a firm, uniform trench base. In those cases, where a firm foundation is not encountered at the required grade, the unstable material shall be removed to such depth that when replaced with suitable Class I or Class II material, compacted, and properly shaped, a uniform and stable foundation along the entire length of the pipe is established.
Bell holes shall be properly excavated for bell and spigot pipe, so that the entire barrel of the pipe rests directly upon the bedding material.
All rocks, boulders and stones six (6) inches in diameter and larger encountered in trenches shall be removed.
Boulders or rocks are not to be used for any portion of the trench backfill.
All PVC, PP and HDPE pipes to be installed with perforations that are meant to infiltrate or exfiltrate must use INDOT #8 Stone as bedding and backfill material. All approved storm systems can use Class I bedding and backfill materials with the following compaction requirements: INDOT Classification No. 5, No. 8, and No. 9 must be at least hand tamped or walked into place for pipes except PVC, PP and HDPE; the bedding for these pipes must be mechanically compacted; And INDOT Classification No. 53 must be mechanically compacted to ninety-five percent (95%) Proctor. - Minimum Trench Width
Except as provided herein, the minimum trench width for storm sewers of forty-two (42) inch or equivalent diameter and smaller shall be one and one quarter (1.25) times the outside diameter (Bc) of the pipe plus twelve (12) inches, and in no case shall provide less than nine (9) inches between the edge of the pipes and the trench wall.
The minimum trench width for storm sewers larger than forty-two (42) inch or equivalent diameter shall be one and one quarter (1.25) Bc plus twenty-four (24) inches, and in no case shall provide less than twelve (12) inches between the edge of the pipe and trench wall.
For flexible conduits, the lateral resistance of in-situ soils shall be of sufficient stiffness to provide the required pipe support. Where unstable trench sidewall conditions exist, or where trench depth dictates the use of a moveable trench box, the design consultant must determine the width of compacted bedding and backfill material necessary to provide adequate pipe or culvert side support.
The trench widths derived by these equations provide a minimum only. Exceptions to these minimums apply only to concrete pipes located at least five (5) feet outside of the edge of pavement. Under these conditions, the design consultant must assume responsibility for determining the appropriate minimum trench width based upon a structural evaluation of the pipe material. - Bedding and Backfill Materials
Figures 501-01 through 501-11, found in Appendix 500: Standard Details of this Manual, should be referenced for an illustration of storm sewer pipe and open culvert bedding and backfill materials required by the Department for each pipe material class. For the purpose of these specifications, the pavement zone shall be defined as that area within five (5) feet of any edge of pavement, curb, gutter, sidewalk, or similar structure in the public right-of-way.
Bedding and backfill requirements for each type of pipe material are summarized as follows:
1. Corrugated Metal Pipe (CMP) (Figures 501-03 and 501-04 in Appendix 500: Standard Details)
Bedding
CMP conduits shall be provided with Class I or Class II granular bedding material from three to six (3-6) inches (based upon pipe diameter) below the pipe barrel, to twelve (12) inches above the crown of the pipe.
Class I material shall be shovel sliced or otherwise carefully placed and mechanically compacted to ensure proper compaction and complete filling of all voids. Class II material shall be compacted to 40 percent (40%) Standard Proctor Density as a minimum, except where the edge of the pipe trench is located within the pavement zone as specified herein, where Class II material shall be compacted to ninety-five percent (95%) Standard Proctor Density.
Bedding shall be placed in six to twelve (6-12) inches balanced lifts.
Initial Backfill
From the pipe springline, corrugated metal pipe conduits shall be backfilled with Class I or Class II material as shown in the in Appendix 500: Standard Details.
Initial backfill shall be placed in six to twelve (6-12) inches balanced lifts.
Regular Backfill
Corrugated metal pipes located outside the applicable pavement zone may be backfilled from twelve (12) inches above the crown with clean material, as shown in Appendix 500: Standard Details of this Manual. Reinforced Concrete Pipe (RCP) (Figures 501-05, 501-06, and 501-07 in Appendix 500: Standard Details)
Bedding
RCP conduits shall be provided with Class I or granular bedding material. Class II material shall be shovel sliced or otherwise carefully placed and mechanically compacted from three to six (3-6) inches (based upon pipe diameter) below the pipe barrel, to one sixth (1/6 th ) the outside pipe diameter (Bc). Class II material shall be compacted to ninety percent (90%) Standard Proctor Density, as a minimum, except where the edge of the pipe trench is located within the pavement zone as specified herein, where Class II material shall be compacted to ninety-five percent (95%) Standard Proctor Density.
Initial and Regular Backfill RCP conduits located within the applicable pavement zone shall be backfilled from the haunch area with “B” Borrow backfill compacted to ninety-five percent (95%) Standard Proctor Density.
RCP’s located outside of the pavement zone shall be backfilled from the haunch area with clean material as shown on the standard details in Appendix 500.
2. Plastic (PVC, HDPE, PP) Pipe (Figures 501-08 and 501-09 in Appendix 500: Standard Details)
Bedding and Initial Backfill
Plastic Pipe conduits (PVC and HDPE and PP) shall be provided with INDOT #8 Stone or approved Class I granular bedding material shovel sliced or otherwise carefully placed and mechanically compacted from four to six (4-6) inches (based upon pipe diameter) below the pipe barrel, to a minimum of twelve (12) inches above the crown of the pipe.
Bedding and initial backfill material shall be hand placed around the haunch and sides of the plastic pipe, to ensure proper compaction and complete filling of all voids.
All bedding and initial backfill shall be placed in six to twelve (6-12) inches balanced lifts.
Regular Backfill
Plastic pipe conduits located within the pavement zone shall be backfilled from twelve (12) inches above the crown of the pipe with “B” Borrow backfill compacted to ninety-five percent (95%) Standard Proctor Density.
Plastic pipes located outside of the pavement zone shall be backfilled from twelve (12) inches above the crown of the pipe with clean material as shown on the approved construction drawings.
3. Reinforced Concrete Box Sections (Figure 501-10 in Appendix 500: Standard Details) Reinforced concrete box sections shall be placed on a minimum of six (6) inches of INDOT #8 Stone, or other approved equivalent Class I granular bedding material, “walked” or hand tamped into place.
The regular backfill of reinforced concrete box sections located within the applicable pavement zone shall be with “B” Borrow backfill compacted to ninety-five percent (95%) Standard Proctor Density.
Reinforced concrete box sections located outside of the pavement zone shall be backfilled with clean material as shown on the approved construction drawings.
The trench width for box sections shall be only as wide as is necessary to facilitate proper compaction of backfill material, provided the adjacent embankment material is structurally adequate to provide the necessary side support.
Verification of sufficient bearing strength of underlying soil foundation material, based upon manufacturer’s recommendations, shall be required by the Department for all reinforced concrete box section installations.
Soil boring report and bearing strength analysis shall be submitted with the drainage permit application.
4. Structural Plates (Figure 501-11 in Appendix 500: Standard Details)
The installation of structural plate pipe, pipe-arches and arches shall be in full conformance with ASTM A 807. Structural plates located within the applicable pavement zone shall be backfilled with “B” Borrow backfill compacted to ninety-five percent (95%) Standard Proctor Density. Structural plates located outside of the pavement zone shall be backfilled with clean material as shown on the standard details in Appendix 500. A concrete footing that is either slotted to receive the corrugated shell or mounted with aluminum receiving angles will be the only accepted method for placement of aluminum arches and box culverts. The size of footing pads and steel reinforcement shall be established by a professional engineer registered in the state of Indiana, based upon anticipated loading and soil-bearing capacity. The depth of the bottom of the footing shall be established a minimum of eighteen (18) inches below the anticipated scour depth. Additional requirements may be made by the Department based upon an evaluation of the individual site conditions.
Verification of sufficient bearing strength of underlying soil foundation material, based upon manufacturer’s recommendations, shall be required by the Department for all multi-plate drainage structures possessing a span of greater than fifteen (15) feet. Soil boring report and bearing strength analysis shall be submitted with the drainage permit application. - Height of Cover Tables
Minimum and maximum height of cover tables for flexible pipe conduits shall be in conformance with INDOT Pipe Height of Cover Limits. The structural design of rigid pipe materials shall also be in accordance with the most restrictive of either manufacturers’ recommendations, or current AASHTO standards.
Structural design computations used to determine cover depths other than those specified herein shall be submitted to the Department for review and approval and shall be certified by professional engineer registered in the State of Indiana prior to submittal.
Installation of Precast Manholes and Box Inlets
- Introduction
The following information provides a summary of construction and installation procedures required by the Department for installation of storm sewer manholes and concrete box inlets. - Preparation of Base and Backfilling
The bottom of the excavation/trench for the manhole or box inlet shall be filled with a minimum of six (6) inches stone bedding to form a stable base. Where poor or unstable soil conditions exist, or over excavation has occurred, additional INDOT #2 Stone or Class B concrete shall be used to form a stable base.
Manhole and box inlet backfilling and compaction levels shall comply with the minimum requirements and specifications as outlined herein for the adjacent storm sewer pipe structure. - Placement of Manhole Sections
Precast manhole sections shall be placed and aligned to provide vertical sides. The completed manhole shall be rigid, true to dimensions and soiltight.
The joints between manhole sections shall be properly sealed utilizing an approved rubber gasket in accordance with ASTM C 443, non-asphaltic mastic, or butyl rubber plaster material as specified within Chapter 400 of this Manual. - Placement of Adjusting Rings and Spacers
Precast concrete manhole and box inlet adjusting rings and spacers shall be installed as specified within Chapter 400 of this Manual. All adjusting ring and spacer joints shall be sealed utilizing one half (½) inch diameter cords of extrudable preformed gasket material, non-asphaltic mastic, or butyl rubber plaster. This material shall be placed in joints and keyways and be of sufficient quantity to completely fill the joint cavity. - Connections to Manholes
All storm sewer pipe connections to new or existing manholes and precast concrete box inlets shall be installed as outlined within Chapter 400 of this Manual. Connections of subsurface drainage tiles, or other subsurface drainage lines, to manholes and box inlets shall be accomplished using either precast, or drilled holes, properly sealed with non-shrink cement grout or trowelable grade butyl rubber plaster.
Where connections are made to existing manholes or box inlets, that structure shall be rehabilitated or replaced to those minimum standards outlined herein. This rehabilitation shall include the installation of bench walls, as well as prescribed measures to eliminate the potential for migration of backfill materials into the stormwater system.
Where connections of subsurface tiles to the storm sewer system cannot be made at a manhole or box inlet structure, blind “T” connections to storm sewer pipe structures will be allowed on a case-by-case basis by the Department, provided the connection holes are properly cut or core-drilled, and a minimum six (6) inch inside diameter cleanout connection is also provided.
Installation of Subsurface Tiles
- Introduction
The information outlined below is intended to summarize backfill materials and construction procedures accepted by the Department for the installation of subsurface drainage tiles. All subsurface tiles must be laid to the lines and grade shown on the approved construction drawings, unless otherwise approved by the Department. - Trench Construction
The following trench construction requirements shall be adhered to as a part of the installation of all subsurface drainage tiles.
1. Trench Bottom
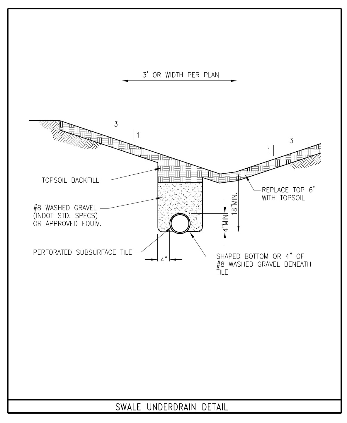
The trench bottom shall be smooth and free of large (greater than three (3) inches in diameter) exposed rock. Where an unstable trench bottom is encountered, such as with silty or fine sandy soils, a firm trench bottom must be provided. Care must be taken to prevent silt or fine sand material from entering the tile system. This may be accomplished through the use of an envelope of No. 8 gravel or comparable sized washed stone and a filter cloth barrier when silty or fine sandy soils are present. Unstable soil material shall be removed and replaced with a foundation and bedding of processed stone or gravel.
2. Trench Width
The trench width below the top of the tile must be sufficient to provide adequate clearance for joining of tile ends with standard fittings, and for placement of required bedding materials. For placement of a gravel or washed stone envelope or filter as required, a minimum trench width of four (4) inches on both sides of the tile will be required.
3. Tile Grade
Subsurface drainage tiles shall be designed and installed at a minimum grade of one tenth (0.1) percent, unless otherwise approved by the Department. - Gravel Envelopes and Backfilling
In order to improve the flow of ground water into the subsurface drainage tile, washed stone or gravel envelopes will be required for all subsurface drainage tile installations.
Subsurface tile gravel envelopes shall be of #8 gravel (INDOT Standard Specifications), or an approved washed stone equivalent. Gravel envelope material shall be clean, hard, and durable, with less than five percent (5%) passing the No. 200 sieve, not more than thirty percent (30%) passing the No. 60 sieve and having a maximum size of one and one half (1 ½) inches. Figures 503-1 and 503-2 in Appendix 500: Standard Details should be referenced for the required methods of installation and backfilling of subsurface drainage tile. - Minimum Cover Requirements
A minimum cover depth of eighteen (18) inches of earth or equivalent cover over the top of the tile will be required, except as allowed by Chapter 400 of this Manual. A temporary earth fill may be required over the subsurface drainage tile in order to provide adequate protection of this system during construction. - Minimum Levels of Workmanship
The following minimum levels of workmanship shall be adhered to as a part of the installation of all subsurface drainage tiles.
1. Handling of Subsurface Tiles
Suitable tools and equipment must be used for the safe and convenient handling and placement of subsurface drainage tiles. Plastic tile and fittings must be protected from deformation or structural deterioration due to extreme temperatures or ultraviolet radiation. Each section of tile must be carefully examined for cracks or other defects prior to installation. Tile or fittings known to be defective must not be installed.
Each section of subsurface drainage tile must be laid on an even firm bed throughout its length, as specified herein, so that no uneven strain will come to any single portion of the tile. Suitable bedding material must be provided so that side walls are continuously and uniformly supported, and sufficient lateral restraint is provided to protect the tile against deflection and collapse during backfilling.
3. Joints and Fittings
All drainage tile fittings shall be installed in accordance with those instructions furnished by the manufacturer. Coupling bands shall be used at all joints and fittings, at all changes in direction, changes in diameter, junctions with other tile lines, and at the ends of tile lines. Hand-cutting of holes for tile connections shall be considered permissible, provided care is taken when making the connection not to create a means of obstructing flow, catching debris, or allowing soil to enter the tile line. - Outlet Protection
A minimum length of twenty (20) feet of polyvinyl chloride (PVC) or double walled high-density polyethylene (HDPE) pipe meeting the material specifications of this Manual shall be used at the surface outlet end of all subsurface drainage tiles, with at least two thirds (2/3) of the pipe length embedded in the bank to provide adequate support. - Rodent Protection
The outlet end of the subsurface drain tile must be equipped with an animal guard to protect the system from entry and damage by rodents or other animals. Where tiles are connected to old existing tile lines that may serve as animal runs, an animal guard must be installed within the newly constructed line to restrict animal travel. The guard opening shall be a minimum of fifteen one hundredths (0.15) square inch and a maximum of one quarter (0.25) square inch. - Location of Existing Tiles
All plans and specifications submitted to the Department for review and approval shall delineate the approximate location of existing agricultural or other subsurface drainage tiles. All existing subsurface drainage tiles shall be perpetuated across the construction site. Extreme care must be taken to prevent damage to these existing lines. Any existing tile lines that are inadvertently damaged or cut during construction shall be repaired or replaced.
Open Channel Construction
- Introduction
The cross-sectional configuration of stormwater conveyance channels may be V-shaped, parabolic or trapezoidal.
Typical open channel cross-sections and linings are illustrated within Figure 504-1 in Appendix 500: Standard Details.
Open channels shall be constructed to the line, grade, and cross-section shown on the approved construction plans.
Earthen fills beneath rock rip-rap lined channels shall be compacted to nine-five percent (95%) Standard Proctor Density.
For relatively large open channels and perennial streams, minimum channel slopes and the provision of subsurface drainage shall be approved on a case-by-case basis by the Department. - Open Channel Stabilization
The types of treatments used to stabilize open channels may vary with flow velocities and individual site conditions within the following guidelines:
1. Grass-lined Channels
The grass mixture chosen for stabilization of open conveyance channels shall be based upon specific site conditions, such as but not limited to: drainage tolerance; shade tolerance; and maintenance requirements.
Grass-lined stormwater conveyance channels shall be permanently seeded within seven (7) days after finish grading.
To facilitate vegetative establishment, the flowline of grass lined stormwater conveyance channels shall be protected utilizing an approved erosion control blanket designed and installed according to the applicable manufacturer’s specifications. The blanket shall extend from top of bank to top of bank or one (1) foot above the ten (10) year (10% AEP) water surface elevation along each bank, whichever is less.
Appendix 500: Standard Details
FIGURE 501-01: Maximum Trench Width Detail for Excavations – greater than five feet from edge of pavement
FIGURE 501-02: Maximum Trench Width Detail for Excavations – within five feet of edge of pavement

FIGURE 501-03: Corrugated Metal Pipe (CMP) Trench Detail – within five feet of edge of pavement

FIGURE 501-04: Corrugated Metal Pipe (CMP) Trench Detail – greater than five feet from edge of pavement

FIGURE 501-05: Reinforced Concrete Pipe (RCP) Trench Detail – within five feet of edge of pavement

FIGURE 501-06: Reinforced Concrete Vertical Elliptical Pipe Bedding Detail

FIGURE 501-07: Reinforced Concrete Horizontal Elliptical Pipe Bedding Detail

FIGURE 501-08: Plastic Pipe (PVC & HDPE) Trench Detail –greater than five feet from edge of pavement

FIGURE 501-09: Plastic Pipe (PVC & HDPE) Trench Detail – within five feet of edge of pavement

FIGURE 501-10: Reinforced Concrete Box Section Bedding Detail

FIGURE 501-11: Structural Plate Metal Pipe-Arch Bedding Detail

FIGURE 503-01: Swale Underdrain Detail

FIGURE 503-02: Curb Underdrain Detail

FIGURE 504-01: Typical Waterway Cross-Sections
City of Indianapolis
Storm Water Specifications Manual
May 2022 Effective – FINAL