Contents
BEGA 50559.1 Ceiling Luminaire For Indoor

Product Information
- Product Description: Luminaire made of aluminium, steel, and
stainless steel - Finish Colour: White
- Installation Frame: Made of aluminium and steel, galvanised and
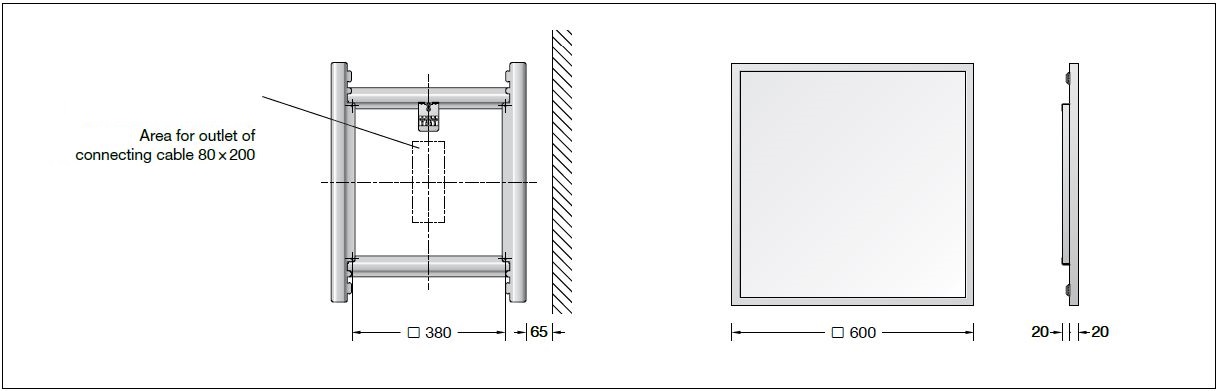
painted - Distance: 380 x 380 mm
- Connecting Terminal: 2.5@ with plug connection
- Earth Conductor Connection
- LED Power Supply Unit: 220-240 V x 0/50-60 Hz DC 176-276 V
- During DC Operation, LED Power is Reduced to 15%
- DALI-Controllable
- Basic Insulation Provided Between the Mains
- Temporary Thermal Regulation to Protect Temperature-Sensitive
Components Without Switching Off the Luminaire - Safety Class: I
- Impact Strength: IK08
- Weight: 10.0 kg
- Energy Efficiency Class(es): D
Product Usage Instructions
The installation and operation of this luminaire are subject to national safety regulations. Installation and commissioning should only be carried out by a qualified electrician. The manufacturer does not accept liability for any damage caused by improper use or installation. If modifications are made to the luminaire, the person responsible for these modifications will be considered the manufacturer. The electronic components installed in the luminaire are protected against overvoltage in accordance with DIN EN 61547. For additional protection against transients and other issues, separate overvoltage protection components are recommended. You can find these components on the manufacturer’s website at www.bega.com.
Lamp Module Specifications
- Module Designation: LED-0940/930
- Colour Temperature: 3000 K
- Colour Rendering Index (CRI): > 90
- Module Luminous Flux: 7320 lm
- Luminaire Luminous Flux: 5082 lm
- Luminaire Luminous Efficiency: 90.8 lm / W
Connected Wattage
- Lamp Module: 48.2 W
- Luminaire: 56 W
Rated and Ambient Temperature
- Rated Temperature
- Ambient Temperature
DIMENSIONS

Instructions for use
Application
- Large-area luminaire · Indoor luminaire with high light output for installation on ceilings.
- An optical system with a layer structure exactly matching our LED modules, consisting of micro-structured and light-directing levels to ensure glare-free light and a high degree of visual comfort.
- A luminaire specially for glare-free office light in accordance with DIN EN 12464-1.
Product Description
- Luminaire made of aluminium, steel and stainless steel
- Finish Colour white
- Installation frame made of aluminium and steel, galvanised and painted Safety glass
- 4 mounting holes ø 6.5 mm
- Distance 380 x 380 mm
- Connecting terminal 2.5@ with plug connection
- Earth conductor connection
- LED power supply unit 220-240 V
0/50-60 Hz - DC 176-276 V
- During DC operation the LED power is reduced to 15 %
- DALI-controllable
- Basic insulation is provided between the mains and control cables
- BEGA Thermal Control®
- Temporary thermal regulation to protect temperature-sensitive components without switching off the luminaire
- Safety class I
- Impact strength IK08
- Protection against mechanical impacts < 5 joule
– Safety mark
– Conformity mark- Weight: 10.0 kg
- This product contains light sources of energy efficiency class(es) D
Safety
- The installation and operation of this luminaire are subject to national safety regulations.
- Installation and commissioning may only be carried out by a qualified electrician.
- The manufacturer accepts no liability for damage caused by improper use or installation.
- If subsequent modifications are made to the luminaire, the person responsible for these modifications shall be considered the manufacturer.
Overvoltage protection
- The electronic components installed in the luminaire are protected against overvoltage in accordance with DIN EN 61547.
- To achieve an additional protection against e. g. transients, etc. we recommend separate overvoltage protection components.
- You can find them on our website at Overvoltage protection
- The electronic components installed in the luminaire are protected against overvoltage in accordance with DIN EN 61547.
- To achieve an additional protection against e. g. transients, etc. we recommend separate overvoltage protection components.
- You can find them on our website at www.bega.com..
Lamp
- Module connected wattage 48.2 W
- Luminaire connected wattage 56 W
- Rated temperature ta = 25 °C
- Ambient temperature ta max = 50 °C
50 559.1 K3
- Module designation LED-0940/930
- Colour temperature 3000 K
- Colour rendering index CRI > 90
- Module luminous flux 7320 lm
- Luminaire luminous flux 5082 lm
- Luminaire luminous efficiency 90,8 lm / W
50 559.1 K4
- Module designation LED-0940/940
- Colour temperature 4000 K
- Colour rendering index CRI > 90
- Module luminous flux 7610 lm
- Luminaire luminous flux 5282 lm
- Luminaire luminous efficiency 94,3 lm / W
Notice prior to installation
The installation of the luminaire must be carried out by 2 persons!
- Clearance of 65 mm is required for pushing the luminaire into and out of the installation frame.
- Ensure that the mounting surfaces have sufficient load-bearing capability.
- The installation frame can be used as a template for marking the mounting points.
- Drill holes in the mounting surface.
- General fastener types are not suitable for all applications. Make sure that approval has been obtained from the building supervision authorities.
Installation
- Place the luminaire on an even, clean surface with the glass side facing downwards.
- Dismantling the installation frame:
- To take the installation frame out of the luminaire housing, press the retaining springs on the bottom side of the luminaire downwards until they audibly engage. Push the installation frame out of the retaining springs and remove it.
- Mount the installation frame on the installation surface as described above.
Please note
If the luminaire is to be mounted onto a metallic, electroconductive surface, it is mandatory to make sure that the mounting surface is connected conductive to the earth conductor of the luminaire!
- Make earth conductor connection.
- Make electrical connection to the connecting terminal L and N – plug connection.
- For digital control please use the connecting terminal DA, DA.
- In case this terminal is not used the luminaire will be operated at full light output.

- Push the plug part into the plug-in device as far as it will go.
- Insert the luminaire housing into the mounting rail as shown in the sketch, press the installation frame downwards and push it into the two retaining springs until it audibly engages.
Replacing the LED module · Maintenance
- The designation of the LED module is noted on a label in the luminaire.
- The light colour and light output of BEGA replacement modules correspond to those of the modules originally fitted.
- The module can be replaced by qualified persons using standard tools.
- Disconnect the electrical installation.
- To take the luminaire housing out of the installation frame, press the retaining springs on the bottom side of the luminaire downwards until they audibly engage.
- Push the luminaire housing out of the retaining springs and remove it.
- Disconnect plug connection.
- Place the luminaire on an even, clean surface with the glass side facing downwards.
- LED are high-quality electronic components!
- Please avoid touching the light output surface of the LED directly during relamping.
- To exchange the LED modules, clip open the two long black cover strips and remove them.
- Replace LED-Module.
- Ensure that the LED modules are positioned correctly in the housing.
- Insert the cover profile starting from one side and press it firmly into the housing.
- Please ensure that the LED connecting cables do not get caught between the cover strip and the profile.
- Push the plug part into the plug-in device as far as it will go.
- Insert the luminaire housing into the mounting rail as shown in the sketch, press the installation frame downwards and push it into the two retaining springs until it audibly engages.
Spares
- LED power supply unit DEV-0214/2100
- LED module 3000 K LED-0940/930
- LED module 4000 K LED-0940/940
BEGA Gantenbrink-Leuchten KG
- Postfach 31 60
- 58689 Menden
- [email protected]
- www.bega.com